Büros
ID S0747Provisionsfrei
Büroimmobilie - Stuttgart, Vaihingen - S0747
Vaihingen, 70565, Stuttgart, Baden-Württemberg
Kontaktieren Sie uns für den Preis
- Fläche424 - 2.562 m²
- VerfügbarkeitAuf Anfrage
- Objekt
- Ausstattung
- Lage und Verkehrsanbindung
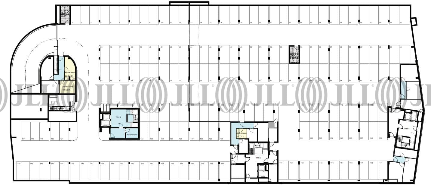
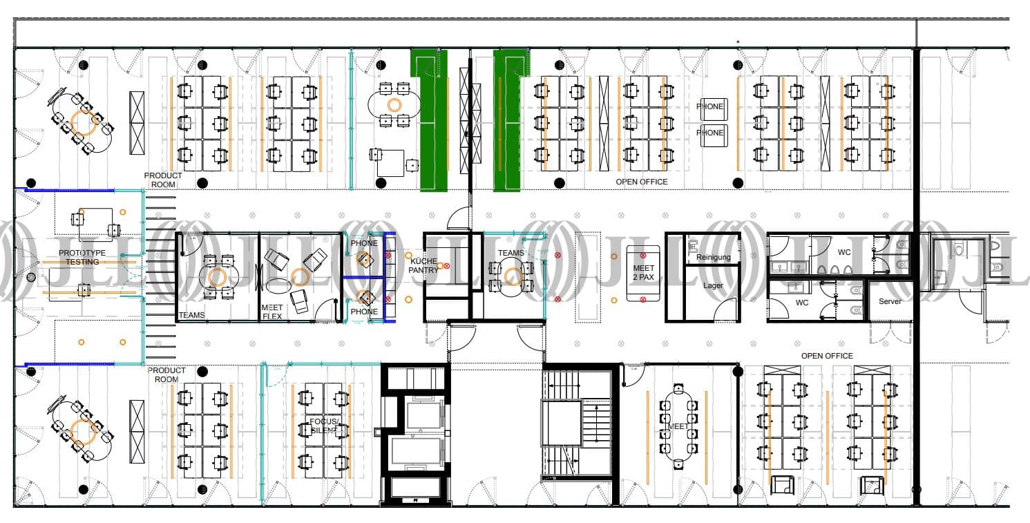
- Grundrisse
- Exposé herunterladen
- Ihr Kontakt
- Anfrage senden
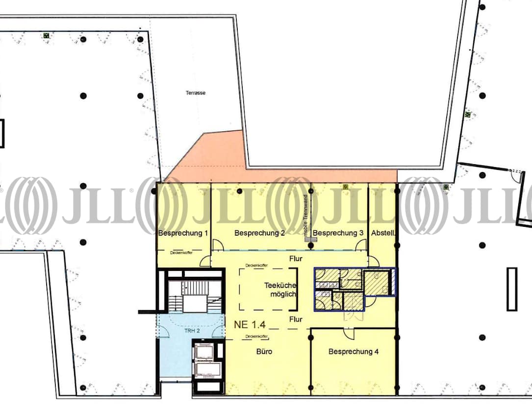
Objekt
Hierbei handelt es sich um ein modernes, zeitlos gestaltetes siebengeschossiges Büro-und Geschäftshaus. Die Flächen können flexibel gestaltet werden und bieten Platz zum entfalten. In diesen Räumlichkeiten lassen sich alle Bürokonzepte realisieren: Einzel-und Gruppenbüros, Kombizonen oder Open Space sind hier möglich. Für ein angenehmes Arbeitsfeld sorgen rundum angeordnete, raumhohe Fensterflächen, die die Büros mit Licht durchfluten. Im Gebäude gibt es dazu noch ein Fitnessstudio, welches den idealen Workout ermöglicht.
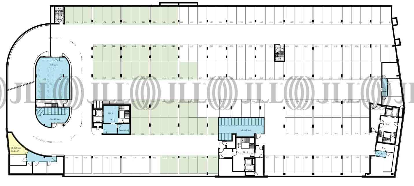
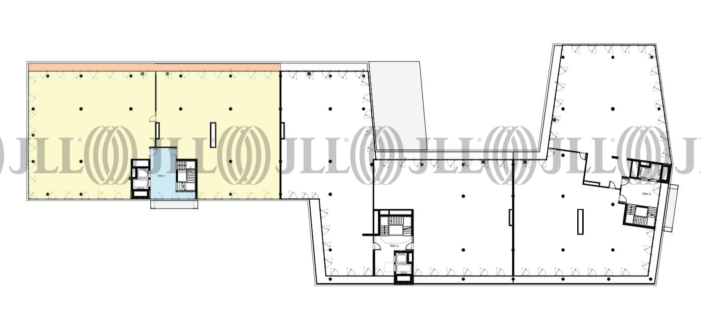
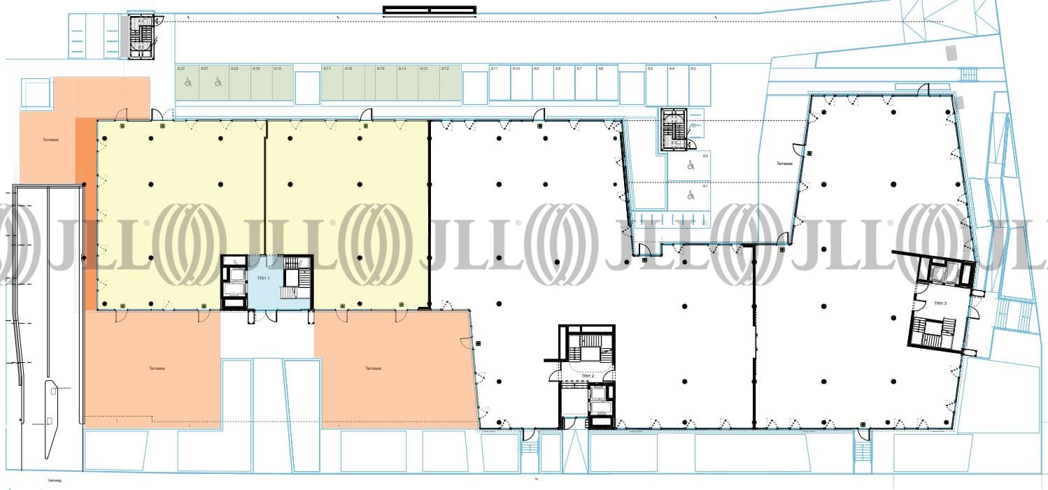
Verfügbare Fläche
Lage und Verkehrsanbindung
Das Neubauobjekt Neo befindet sich in der Ruppmannstraße, in fußläufiger Lage zum S-Bahnhof Vaihingen. Der Stadtbezirk Vaihingen liegt südwestlich der Landeshauptstadt Stuttgart und besteht aus insgesamt zwölf Stadtteilen. Vaihingen ist der flächengrößte Stadtbezirk in Stuttgart und mit direkter Anbindung an die Bundesstraße B 14 und die Autobahnen A 8 und A 81 optimal zu erreichen. Den Stuttgarter Flughafen erreicht man in nur 14 Minuten mit dem PKW und in die Innenstadt benötigt man ebenfalls nur 20 Minuten. Mit der S- und U-Bahn gelangt man in kürzester Zeit in Richtung Stuttgarter Innenstadt oder Richtung Böblingen. Der Bezirk ist durch die optimale Anbindung für Unternehmen sehr beliebt und ist vor allem für mehrere Forschungs- und Technologieunternehmen bekannt. Auch die Universität Stuttgart hat in Vaihingen einen großen Campus. Vaihingen ist durch die vielen Freizeitmöglichkeiten, Einzelhändler und Gastronomen ein Standort mit hoher Lebensqualität. Dienstleister des täglichen Bedarfs befinden sich in der Nähe.
- Flughafen, Stuttgart, Fahrzeit: 10 min
- Bundesautobahn, A 8, Fahrzeit: 5 min
- Bundesautobahn, A 81, Fahrzeit: 8 min
- Bus, Ruppmannstraße (Linie: 80), Gehzeit: 4 min
- Bahnhof, Stuttgart-Vaihingen (S1-S3,S11, U1,U3,U8) , Gehzeit: 7 min
- Hauptbahnhof, Stuttgart (ICE, RE, IRE, IC, RB, S-Bahn, U-Bahn, Bus etc.), Fahrzeit: 20 min
Ihr Kontakt

Marvin Gnaase
Ihr Kontakt
Marktinformationen
Mietmarkt
Vaihingen, Stuttgart
siehe 18 passende MietobjekteErfahren Sie mehr
* Durchschnittspreis auf Grundlage historischer Transaktionen.























