Büros
ID S0744Provisionsfrei
Büroimmobilie - Stuttgart, Möhringen - S0744
Möhringen, 70565, Stuttgart, Baden-Württemberg
21 € / m²
- Fläche400 - 14.800 m²
- VerfügbarkeitIII quartal 2028
- Objekt
- Ausstattung
- Lage und Verkehrsanbindung
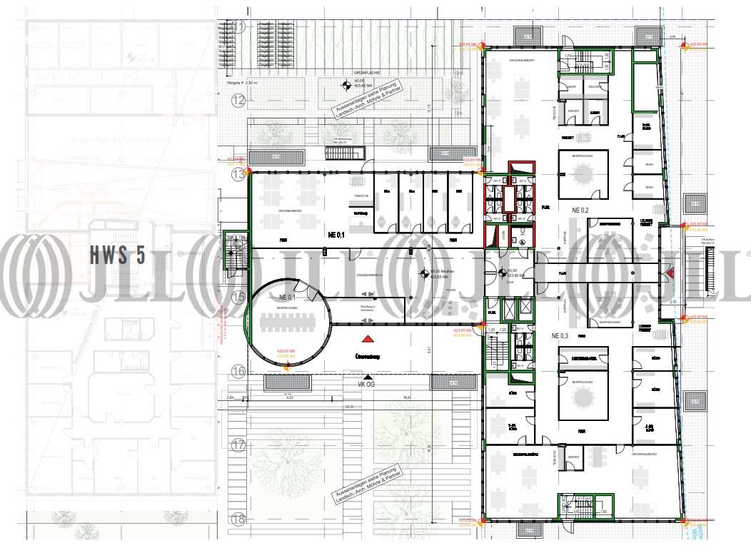
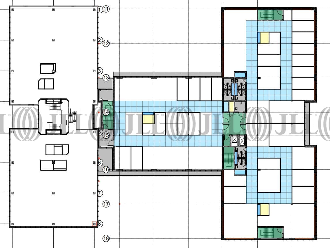
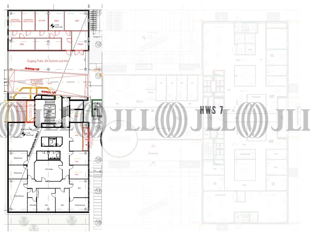
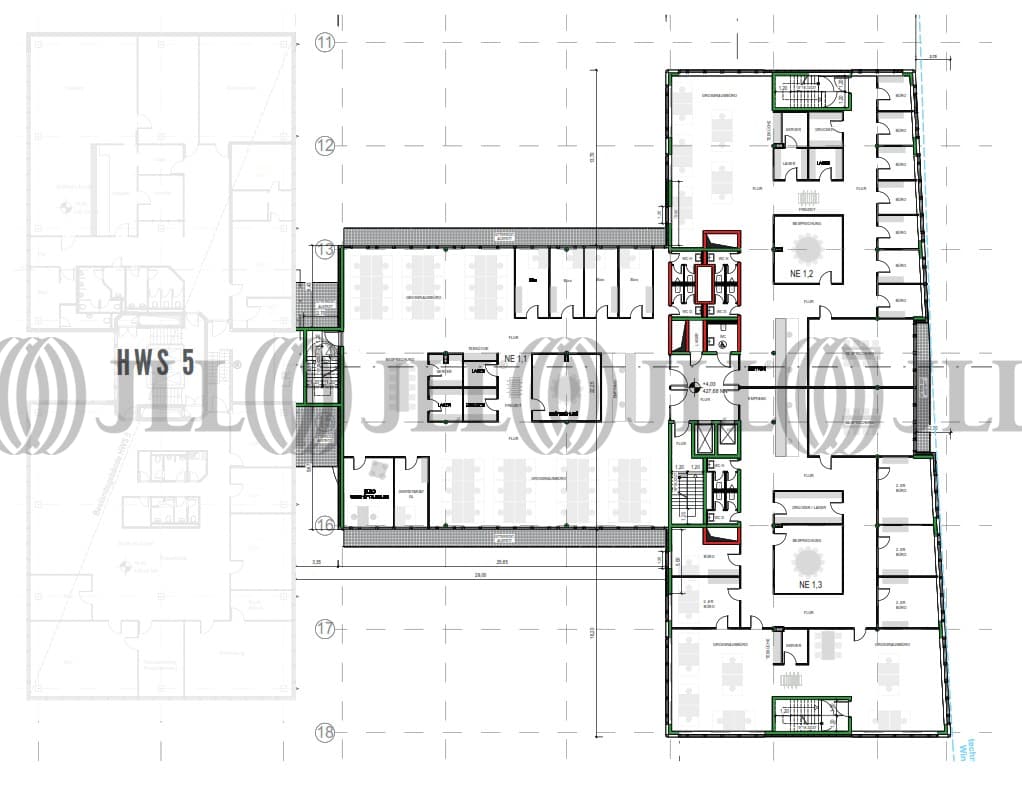
- Grundrisse
- Exposé herunterladen
- Ihr Kontakt
- Anfrage senden
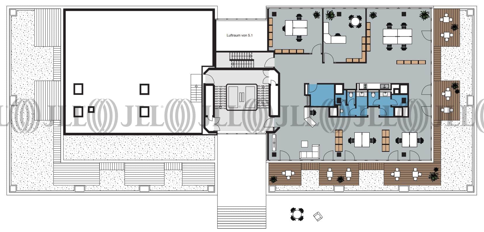
Objekt
Das Gebäudeensemble eignet sich dank seiner Strahlkraft und Werbewirksamkeit hervorragend als Head Quarter, das nicht nur durch seine Sichtbarkeit sondern auch aufgrund seiner sehr guten Erreichbarkeit überzeugt. Direkt an der Nord-Süd-Straße gelegen, sind alle wichtigen Hotspots in nur wenigen Minuten mit dem Auto zu erreichen. Weiterhin fasziniert das Bürogebäude durch seine vielfältigen Möglichkeiten im Bereich der Raumaufteilung. Dabei können die Flächen flexibel gestaltet werden und bieten Platz zum entfalten. Es verfügt über Meetingräume für alle Mitarbeiter, einen Fahrradraum, Umkleiden und Duschen sowie eine Lounge mit integriertem Coffee-Point. Ein weiteres Highlight ist die im obersten Geschoss befindliche Dachterrasse, die sich einmal um das Gebäude schmiegt. Sie sorgt neben vielen anderen Annehmlichkeiten für eine willkommene Erholung und eine behagliche Arbeitsatmosphäre.
Zertifizierungen
Energieausweis
DGNB: GoldVerfügbare Fläche
Lage und Verkehrsanbindung
Das Gebäude liegt im Industriegebiet Vaihingen-Möhringen, das für viele weitere namenhafte Unternehmen als Dienstleistungsstandort dient. Unternehmen wie Daimler, Dekra, Züblin und das Regierungspräsidium haben sich bereits für diesen Standort entschieden. Dabei besticht die Lage mit einer Bushaltestelle direkt vor der Tür durch seine sehr gute Anbindung an den öffentlichen Personennahverkehr. In Kürze erreicht man vom Bahnhof Vaihingen den Stuttgarter Hauptbahnhof sowie die Stuttgarter Innenstadt. Auch der Stuttgarter Flughafen kann in nur wenigen Autominuten über die nahegelegene A8 erreicht werden. Eine Tankstelle befindet sich in der Nähe.
- Flughafen, Stuttgart, Fahrzeit: 20 min
- Bundesautobahn, A 8, Fahrzeit: 5 min
- Bundesautobahn, A 81, Fahrzeit: 20 min
- Bus, Handwerkstraße (Linie: 80), Gehzeit: 1 min
- U-Bahn, SSB-Zentrum (U3, U8, U12), Gehzeit: 10 min
- Hauptbahnhof, Stuttgart (ICE, RE, IRE, IC, RB, S-Bahn, U-Bahn, Bus etc.), Fahrzeit: 24 min
Ihr Kontakt

Marvin Gnaase
Ihr Kontakt






