Büros
ID S0742Provisionsfrei
Büroimmobilie - Stuttgart, Bad Cannstatt - S0742
Bad Cannstatt, 70372, Stuttgart, Baden-Württemberg
21,80 € - 22,80 € / m²
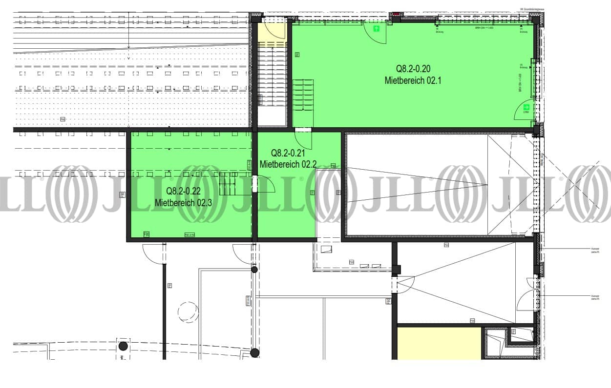
- Fläche164 - 1.014 m²
- Verfügbarkeit5 Monate ab Vertragsunterzeichnung
- Objekt
- Ausstattung
- Lage und Verkehrsanbindung
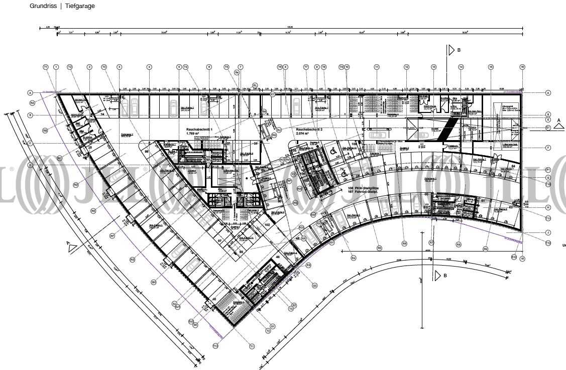
- Grundrisse
- Exposé herunterladen
- Ihr Kontakt
- Anfrage senden
Objekt
Der Neubau besticht nicht nur durch seine optimale Lage! Auch aufgrund seiner architektonisch gestalteten Fassaden mit einem Wechsel aus geschlossenen Flächen und großflächig verglasten Elementen überzeugt das Objekt auf ganzer Linie. Zeitlos moderne Architektur setzt sich auch im inneren des Gebäudes durch: Hochwertige Materialien schaffen hier eine angenehme Arbeitsatmosphäre, welche durch das eindringende Licht auf Grund der Fensterfronten unterstützt wird. Weiterhin ist eine flexible Raumaufteilung nach Mieterwunsch möglich.
Verfügbare Fläche
Lage und Verkehrsanbindung
Das Objekt ist im Herzen Bad Cannstatts verortet. Bad Cannstatt ist der größte und einwohnerstärkste Stadtbezirk der Landeshauptstadt Stuttgart, mit insgesamt 18 Stadtteilen. Der Stadtbezirk ist vor allem für die Mineralbäder, Sport- und Kulturveranstaltungen und für namhafte Unternehmen bekannt. Mit direkter Anbindung an die Bundesstraßen B 10, B 27 und B 14 ist Bad Cannstatt optimal zu erreichen. Die Stuttgarter Innenstadt ist mit mehreren S- Bahn, U-Bahn und Bushaltestellen in wenigen Minuten erreichbar. Durch Regionalbahnanschlüssen gelangt man in weitere Städte wie beispielsweise Tübingen und Ulm. Außerdem bietet Bad Cannstatt ein breitgefächertes Angebot an Einzelhändlern, Nahversorger und Restaurants. Mehrere Parks und Grünflächen laden zur Erholung und Entspannung ein. Dienstleister des täglichen Bedarfs befinden sich in der Nähe.
- Flughafen, Stuttgart, Fahrzeit: 20 min
- Bundesautobahn, A 8, Fahrzeit: 15 min
- Bundesstraße, B 10, Fahrzeit: 2 min
- Bundesstraße, B 14, Fahrzeit: 2 min
- Bus, Vielbrunnenweg (Linie: 45, 56), Gehzeit: 1 min
- Bahnhof, Stuttgart Bad Cannstatt (RE, RB, S1, S2, S3, S11, S13, S21), Gehzeit: 7 min
- Hauptbahnhof, Stuttgart (ICE, RE, IRE, IC, RB, S-Bahn, U-Bahn, Bus etc.), Fahrzeit: 10 min
Ihr Kontakt

Marvin Gnaase
Ihr Kontakt




