
Büros
ID S0657Provisionsfrei
Büroimmobilie - Stuttgart, Feuerbach - S0657
Feuerbach, 70469, Stuttgart, Baden-Württemberg
18 € - 19,50 € / m²
- Fläche166 - 4.736 m²
- VerfügbarkeitII quartal 2027
- Objekt
- Ausstattung
- Lage und Verkehrsanbindung
- Grundrisse
- Exposé herunterladen
- Ihr Kontakt
- Anfrage senden
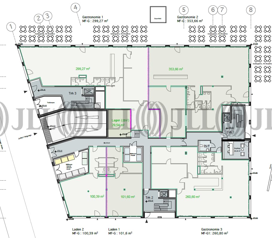
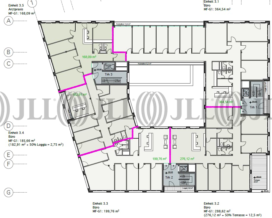
Objekt
EXKLUSIV BEI JLL!
In dieser Liegenschaft finden Sie den perfekten Mix aus Work, Lifestyle und Fashion - neben einladenden Büroflächen entstehen in diesem Gebäude moderne Wohnungen sowie Ladenflächen. Das Neubauprojekt wird mit einer hauseigenen Tiefgarage mit 72 Stellplätzen erstellt. Ab circa Anfang 2027 wird dieses Schmuckstück bezugsfertig sein. Eine Anmietung der Gesamtfläche pro Etage ist neben einer kleinteiligen Anmietung ebenfalls realisierbar.
1. Obergeschoss: 1.201 m²
2. Obergeschoss: 1.318 m²
3. Obergeschoss: 1.291 m²
4. Obergeschoss: 1.233 m²
In dieser Liegenschaft finden Sie den perfekten Mix aus Work, Lifestyle und Fashion - neben einladenden Büroflächen entstehen in diesem Gebäude moderne Wohnungen sowie Ladenflächen. Das Neubauprojekt wird mit einer hauseigenen Tiefgarage mit 72 Stellplätzen erstellt. Ab circa Anfang 2027 wird dieses Schmuckstück bezugsfertig sein. Eine Anmietung der Gesamtfläche pro Etage ist neben einer kleinteiligen Anmietung ebenfalls realisierbar.
1. Obergeschoss: 1.201 m²
2. Obergeschoss: 1.318 m²
3. Obergeschoss: 1.291 m²
4. Obergeschoss: 1.233 m²
Verfügbare Fläche
Lage und Verkehrsanbindung
Der hier beschriebene Neubau mit gemischter Nutzung für Handel, Büro und Wohnen ist nahe des Wiener Platzes im Zentrum von S-Feuerbach gelegen. Die Nahversorgung ist entsprechend sehr gut. In dieser Lage besteht ein gesunder Mix aus Wirtschafts- Gewerbe- und Bürohäusern. In wenigen Fahrminuten erreicht man die Bundesstraße B27 und B295. Eine Tankstelle befindet sich in der Nähe. Dienstleister des täglichen Bedarfs befinden sich in der Nähe.
- Flughafen, Stuttgart, Fahrzeit: 30 min
- Bundesautobahn, A 8, Fahrzeit: 25 min
- Bundesautobahn, A 81, Fahrzeit: 20 min
- Bus, Feuerbach Bahnhof (Linie: 91, 401, 501, 502, 503, 591), Gehzeit: 2 min
- S-Bahn, Feuerbach Bahnhof (S 4, S5, S6, S60), Gehzeit: 1 min
- Hauptbahnhof, Stuttgart (ICE, RE, IRE, IC, RB, S-Bahn, U-Bahn, Bus etc.), Gehzeit: 50 min
- Hauptbahnhof, Stuttgart (ICE, RE, IRE, IC, RB, S-Bahn, U-Bahn, Bus etc.), Fahrzeit: 12 min
Ihr Kontakt

Marvin Gnaase
Ihr Kontakt