Büros
ID S0638Provisionsfrei
Büroimmobilie - Filderstadt - S0638
70794, Filderstadt, Baden-Württemberg
9 € / m²
- Fläche212 - 682 m²
- VerfügbarkeitSofort
- Objekt
- Ausstattung
- Lage und Verkehrsanbindung
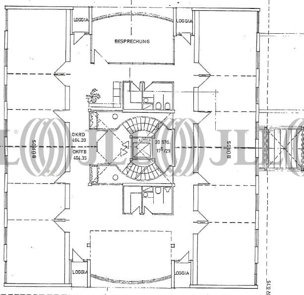
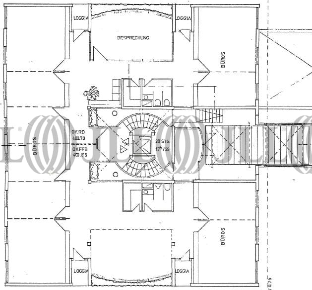
- Grundrisse
- Exposé herunterladen
- Ihr Kontakt
- Anfrage senden
Objekt
Freie Flächen befinden sich sowohl im 1. als auch im 2. Obergeschoss des Gebäudes. Die Aufteilung der Flächen sowie deren Ausbau können individuell nach Mieterwunsch erfolgen. Aufgrund der flexiblen Aufteilung können die Flächen sowohl als Großraumvariante als auch als kleinteilige Variante genutzt werden.
Zertifizierungen
Energieausweis
Für diese Liegenschaft liegt ein Verbrauchsausweis vom 21.11.2013 vom Eigentümer/Vermieter vor. Der wesentliche Energieträger der Liegenschaft ist Erdgas schwer. Der Endenergieverbrauch Strom beträgt 30.00 kWh/(m²*a). Der Endenergieverbrauch Wärme beträgt 62.30 kWh/(m²*a).Verfügbare Fläche
Lage und Verkehrsanbindung
Die Stadt Filderstadt gehört zur Metropolregion Stuttgart und ist etwa 17 km von der Landeshauptstadt entfernt. Bekannt ist Filderstadt vor allem für die Nähe zum Flughafen und der Stuttgarter Messe. Filderstadt ist ebenfalls ein starker Wirtschaftsstandort mit namhaften Unternehmen wie Modine GmbH, der Hugo Boss AG und Herma GmbH. Filderstadt liegt direkt an der Bundesstraße B 27 und der Autobahn A 8, somit kann der Flughafen Stuttgart in nur 5 Minuten und die Stuttgarter City in 25 Minuten erreicht werden. Mit der S-Bahn S2 kann man die Stuttgarter Innenstadt in wenigen Minuten erreichen. Eine Tankstelle befindet sich in der Nähe.
- Flughafen, Stuttgart, Fahrzeit: 10 min
- Bundesautobahn, A 8, Fahrzeit: 7 min
- Bundesautobahn, A 81, Fahrzeit: 30 min
- Bus, Plieninger Straße (Linie: 73, 120, 122), Gehzeit: 1 min
- Hauptbahnhof, Stuttgart (ICE, RE, IRE, IC, RB, S-Bahn, U-Bahn, Bus etc.), Fahrzeit: 15 min
Ihr Kontakt

Marvin Gnaase
Ihr Kontakt



