Büros
ID S0623Provisionsfrei
Büroimmobilie - Leinfelden-Echterdingen - S0623
70771, Leinfelden-Echterdingen, Baden-Württemberg
17,20 € / m²
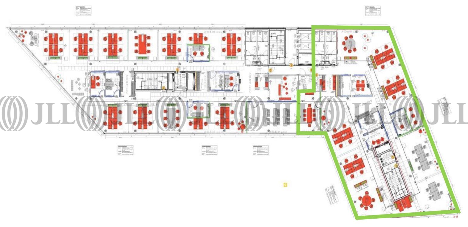
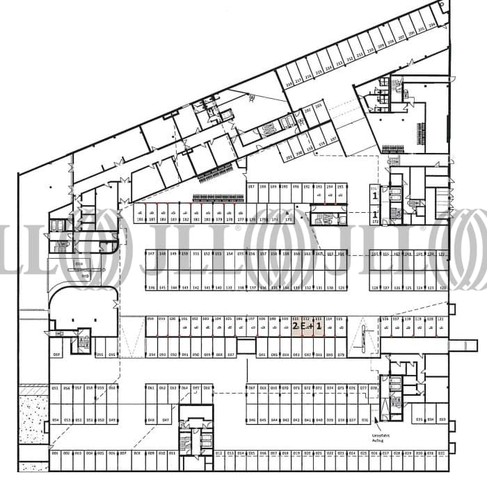
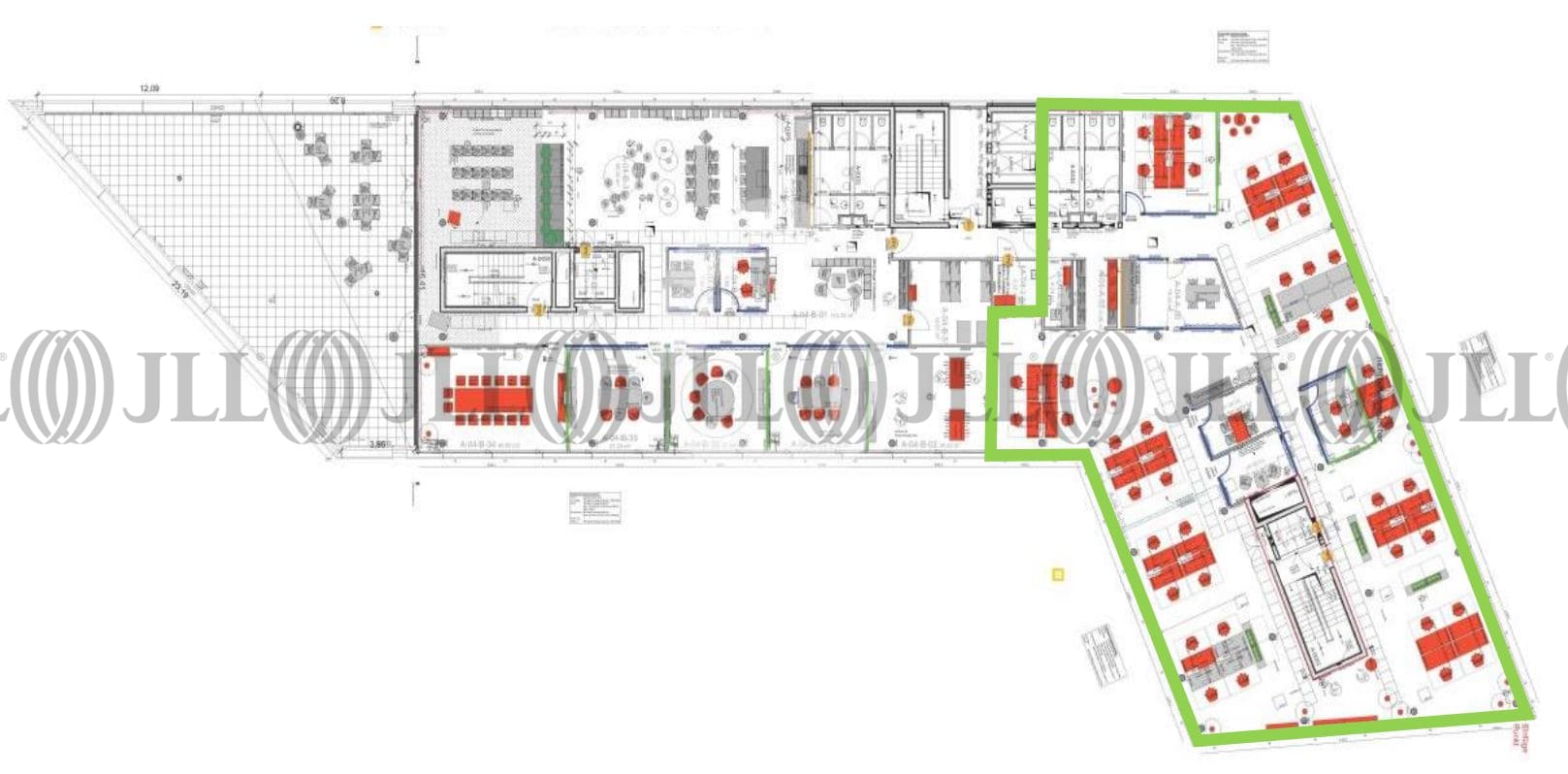
- Fläche500 - 2.997 m²
- VerfügbarkeitSofort
- Objekt
- Ausstattung
- Lage und Verkehrsanbindung
- Grundrisse
- Exposé herunterladen
- Ihr Kontakt
- Anfrage senden
Objekt
Das Vision One schafft Raum für alle Bürokonzepte. Es erwartet Sie hervorragenden Komfort in modernen, flexiblen und effizienten Büros mit einem besonderen Highlight - den großzügigen Terrassenflächen. Neben Umkleiden mit Sanitäranlagen wird Ihnen ein Fahrradraum mit Steckdosen für E-Bikes, sowie Elektroladestationen für PKWs in der Tiefgarage zur Verfügung stehen. Die Mieten für die Büroflächen liegen zwischen € 16,95 und € 18,40 zzgl. der gesetzlich Mehrwertsteuer je nach Gebäude, Flächengröße und Lage der Büroflächen. In Bauteil A stehen künftig 2 Flächen zur Untermiete zu Verfügung, die der künftige Mieter komplett eingerichtet übernehmen kann.
Zertifizierungen
Energieausweis
DGNB: GoldVerfügbare Fläche
Lage und Verkehrsanbindung
Leinfelden-Echterdingen, liegt südlich der Landeshauptstadt Stuttgart und gehört zur Metropolregion Stuttgart. Die Stadt Leinfelden-Echterdingen ist in vier Stadtteile gegliedert: Leinfelden, Echterdingen, Musberg und Stetten. Sie ist als Flughafen- und Messestadt bekannt und viele kleine, mittelständische Unternehmen und Global Player haben hier ihren Sitz. Wegen der starken Wirtschaftsstruktur, hat Leinfelden-Echterdingen einer der niedrigsten Arbeitslosenraten in Deutschland. Mit direkter Anbindung an die Bundesstraße B 27 und an die Autobahn A 8 ist Leinfelden-Echterdingen optimal zu erreichen. In 20 Minuten erreicht man mit dem PKW die Landeshauptstadt und mit der S-Bahn kommt man in bloß 7 Minuten in die Stuttgarter Innenstadt. Der Neubau Campus Vision One entsteht an einem Standort, der nicht nur eine schnelle Verkehrsanbindung an die Bundesstraße B27 sowie die Autobahnen A 8 und A 81 bietet, sondern auch eine hervorragende Infrastruktur sowie die Nähe zum öffentlichen Personennahverkehr gewährleistet. Eine Tankstelle befindet sich in der Nähe. Dienstleister des täglichen Bedarfs befinden sich in der Nähe.
- Flughafen, Stuttgart, Fahrzeit: 7 min
- Bundesautobahn, A 8, Fahrzeit: 8 min
- Bundesautobahn, A 81, Fahrzeit: 13 min
- Bus, Echterdingen Industriegebiet (Linie 77), Gehzeit: 1 min
- Bahnhof, Echterdingen (Linie S2, S3), Gehzeit: 13 min
- Hauptbahnhof, Stuttgart (ICE, RE, IRE, RB, U-Bahn, Bus etc.), Fahrzeit: 25 min
Ihr Kontakt

Marvin Gnaase
Ihr Kontakt


















