Büros
ID S0562Provisionsfrei
Büroimmobilie - Stuttgart, Mitte - S0562
Mitte, 70174, Stuttgart, Baden-Württemberg
14 € / m²
- Fläche278 - 713 m²
- VerfügbarkeitSofort
- Objekt
- Ausstattung
- Lage und Verkehrsanbindung
- Grundrisse
- Exposé herunterladen
- Ihr Kontakt
- Anfrage senden
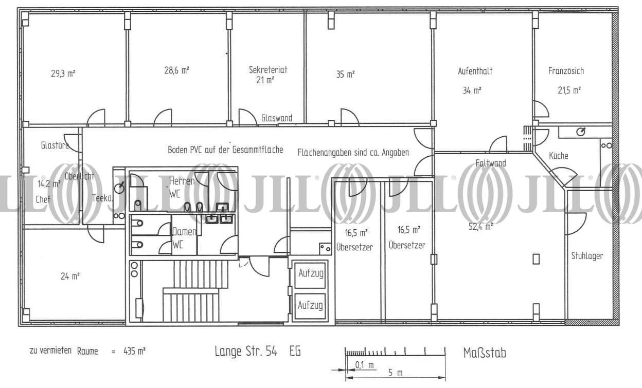
Objekt
Die lichtdurchfluteten Flächen sind großzügig geschnitten. Neben großen Besprechungsräumen, stehen Ihnen Teeküchen sowie mögliche Einzelbüros zur Verfügung. Die Flächen sind modern eingerichtet und verfügen teilweise über eingebaute Glastrennwände.
Zertifizierungen
Energieausweis
Für diese Liegenschaft liegt ein Verbrauchsausweis vom 2021-03-05 vom Eigentümer/Vermieter vor. Die wesentlichen Energieträger der Liegenschaft sind Strom,Nahwärme,Fernwärme,Heizwerk, fossil. Der Endenergieverbrauch Strom beträgt 55.00 kWh/(m²*a). Der Endenergieverbrauch Wärme beträgt 117.00 kWh/(m²*a).Verfügbare Fläche
Lage und Verkehrsanbindung
Zwischen dem bekannten Kultur -und Kongresszentrum Liederhalle und der Stadtmitte befindet sich dieses Objekt in hervorragender Lage. Stuttgart City, bzw. Stuttgart-Mitte ist der innere Stadtbezirk und das Herz der Landeshauptstadt Stuttgart. In der City werden Kultur, Politik und Wirtschaft perfekt kombiniert. Mittelpunkt des Bezirks ist die Königstraße, eine der längsten Fußgängerzonen Deutschlands, in welcher namhafte Geschäfte vertreten sind. Am Ende der Königstraße befindet sich der Stuttgart Hauptbahnhof, von dem aus regionale-, überregionale-, und internationale Ziele erreicht werden können. Mit einem breitgefächerten kulturellen Angebot, vielen Einzelhändlern und einer kulinarischen Vielfalt, ist Stuttgart eine sehr attraktive Stadt. Der Schlossplatz und die Schlossgartenanlage, lädt zu Entspannung und Erholung ein. Dienstleister des täglichen Bedarfs befinden sich in der Nähe.
- Hauptbahnhof, (ICE, IC, RE, S-Bahn, etc.), Fahrzeit: 6 min
- Hauptbahnhof, (ICE, IC, RE, S-Bahn, etc.), Gehzeit: 14 min
- S-Bahn, Stadtmitte (S1, S2, S3, S4, S5, S6, S60, S11), Gehzeit: 4 min
- U-Bahn, Stadtmitte (U2, U4, U14, U34) , Gehzeit: 4 min
- Bus, Berliner Platz (Buslinien 41,43), Gehzeit: 3 min
- Bundesautobahn, A 8, Fahrzeit: 20 min
- Bundesautobahn, A 81, Fahrzeit: 25 min
- Flughafen, Stuttgart, Fahrzeit: 22 min
Ihr Kontakt

Peter Gent
Ihr Kontakt




