Büros
ID S0482Provisionsfrei
Büroimmobilie - Stuttgart, Möhringen - S0482
Möhringen, 70567, Stuttgart, Baden-Württemberg
13 € / m²
- Fläche450 - 1.911 m²
- VerfügbarkeitAuf Anfrage
- Objekt
- Ausstattung
- Lage und Verkehrsanbindung
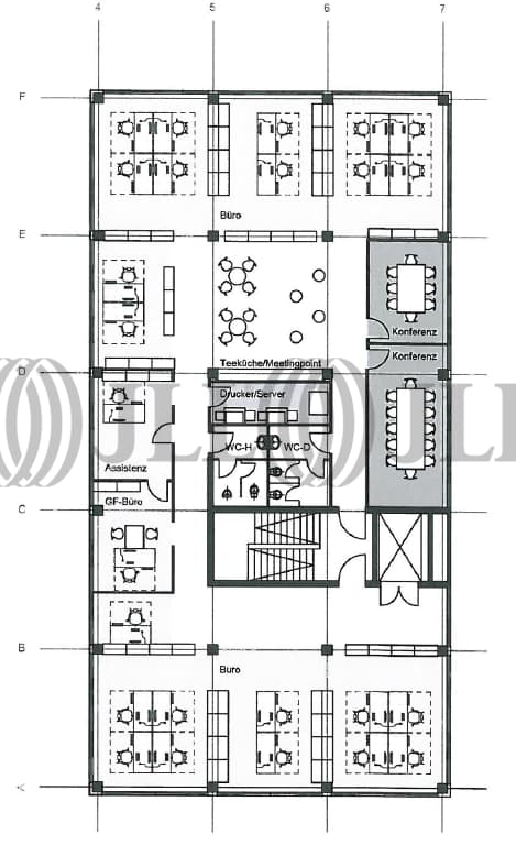
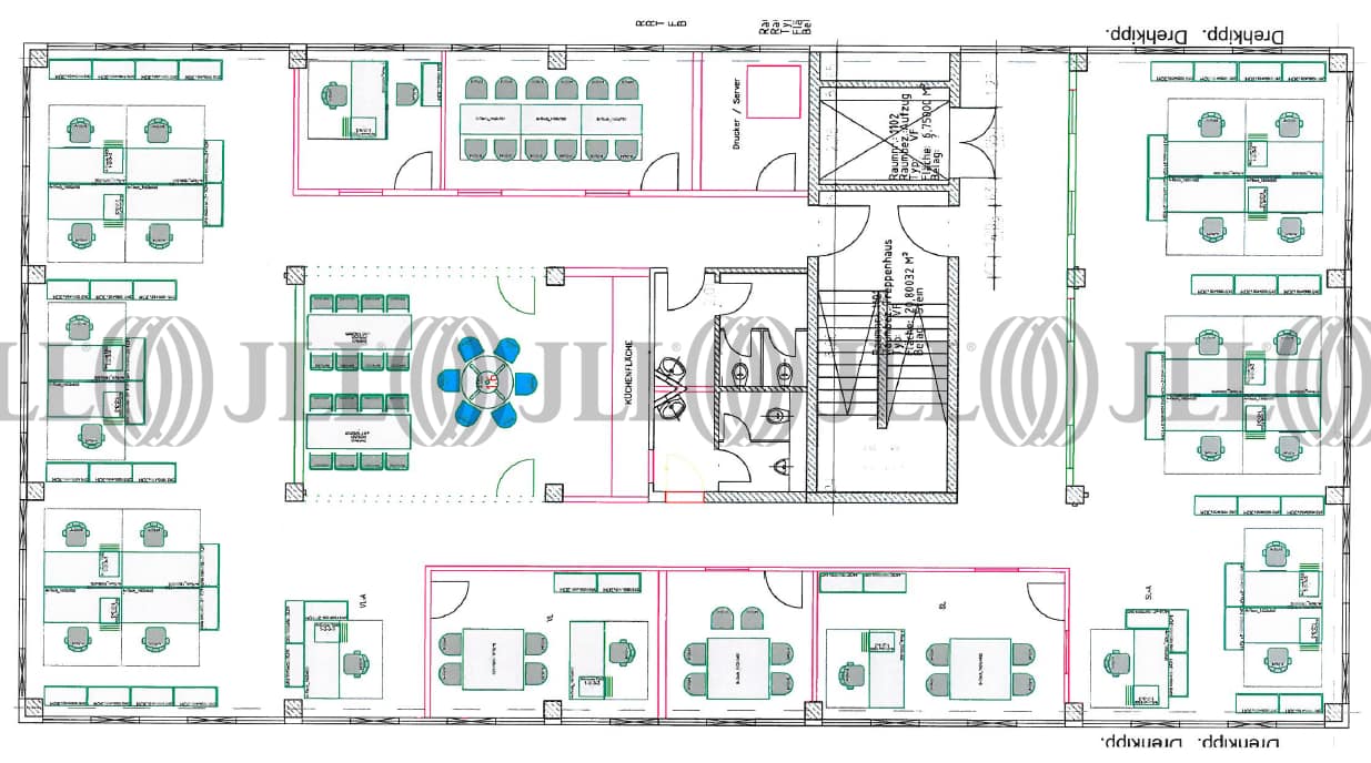
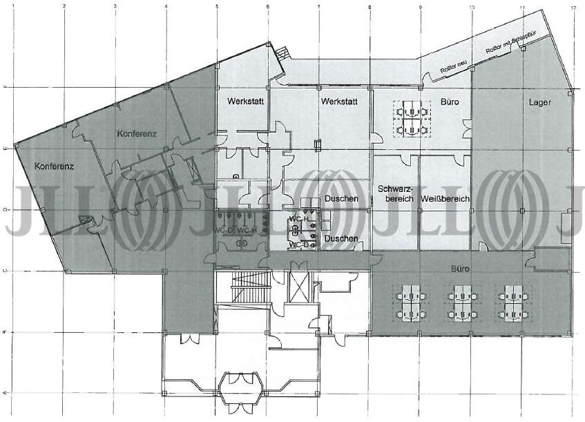
- Grundrisse
- Exposé herunterladen
- Ihr Kontakt
- Anfrage senden
Objekt
Das Bürohaus wurde einer aufwendigen Sanierung unterzogen. Somit verfügen die Flächen über einen hochwertigen Ausbau sowie über eine flexible Raumaufteilung. Durch die großzügigen Fenster gelangt ausreichend Tageslicht in die Büroräume.
Zertifizierungen
Energieausweis
Für diese Liegenschaft liegt ein Bedarfsausweis vom 2016-04-24 vom Eigentümer/Vermieter vor. Die wesentlichen Energieträger der Liegenschaft sind Strom,Erdgas schwer,Erdgas leicht. Der Endenergiebedarf Strom beträgt 18.40 kWh/(m²*a). Der Endenergiebedarf Wärme beträgt 64.70 kWh/(m²*a).Verfügbare Fläche
Lage und Verkehrsanbindung
Das Bürogebäude liegt im Industriegebiet von Stuttgart-Fasanenhof. In unmittelbarer Nähe befinden sich namhafte Software- und Großhandelsunternehmen. In wenigen Fahrminuten erreicht man die Bundesstraße B27. Eine Tankstelle befindet sich in der Nähe. Dienstleister des täglichen Bedarfs befinden sich in der Nähe.
- Flughafen, Stuttgart, Fahrzeit: 7 min
- Bundesautobahn, A 8, Fahrzeit: 3 min
- Bundesautobahn, A 81, Fahrzeit: 15 min
- Bus, Bushaltestelle EnBW City Buslinien 77, 806, Gehzeit: 4 min
- U-Bahn, Schelmenwasen (Linie: U6), Gehzeit: 2 min
- Hauptbahnhof, Stuttgart (Linie: ICE, IC, RE, RB, IRE, MEX, S-Bahn, U-Bahn, Bus, etc.), Fahrzeit: 19 min
Ihr Kontakt

Marvin Gnaase
Ihr Kontakt






