Büros
ID S0457Provisionsfrei
Büroimmobilie - Stuttgart, Mitte - S0457
Theodor-Heuss-Straße 10
Mitte, 70174, Stuttgart, Baden-Württemberg
28,50 € - 29 € / m²
- Fläche211 - 630 m²
- VerfügbarkeitSofort
- Objekt
- Ausstattung
- Lage und Verkehrsanbindung
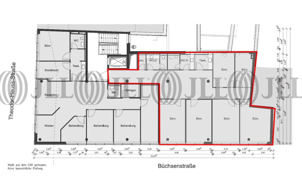
- Grundrisse
- Exposé herunterladen
- Ihr Kontakt
- Anfrage senden
Objekt
Das 6 stöckige Büro- und Geschäftshaus „Theo 10“ bildet einen markanten Eckpunkt zwischen dem Geschäftsboulevard Theodor-Heuss-Straße und der Büchsenstraße. Der prominenten Lage entsprechend, wurde in der Planung großen Wert auf eine anspruchsvolle, puristische Ästhetik und hochwertige Ausstattung gelegt. Das Büro- und Geschäftshaus „Theo 10“ verfolgt ein ressourcenschonendes Energiekonzept im Sinne des Green Buildings. Die angebotenen Flächen sind hochwertig ausgebaut.
Zertifizierungen
Energieausweis
Für diese Liegenschaft liegt ein Bedarfsausweis vom 16.10.2023 vom Eigentümer/Vermieter vor. Die wesentlichen Energieträger der Liegenschaft sind Fernwärme, Nahwärme. Der Endenergiebedarf Strom beträgt 25.8 kWh/(m²*a). Der Endenergiebedarf Wärme beträgt 186.4 kWh/(m²*a).Verfügbare Fläche
Lage und Verkehrsanbindung
Stuttgart City, bzw. Stuttgart-Mitte ist der innere Stadtbezirk und das Herz der Landeshauptstadt Stuttgart. In der City werden Kultur, Politik und Wirtschaft perfekt kombiniert. Mittelpunkt des Bezirks ist die Königstraße, eine der längsten Fußgängerzonen Deutschlands, in welcher namhafte Geschäfte vertreten sind. Am Ende der Königstraße befindet sich der Stuttgarter Hauptbahnhof, von dem aus regionale-, überregionale-, und internationale Ziele erreicht werden können. Mit einem breitgefächerten kulturellen Angebot, vielen Einzelhändlern und einer kulinarischen Vielfalt, ist Stuttgart eine sehr attraktive Stadt. Der Schlossplatz und die Schlossgartenanlage, laden zur Entspannung und Erholung ein. Die Theodor-Heuss-Straße 10 in Stuttgart bietet eine zentrale und gut erreichbare Lage im Geschäftsviertel. Das moderne Gebäude verfügt über hochwertige Büroflächen mit viel Tageslicht. In der Umgebung finden Büronutzer zahlreiche Annehmlichkeiten wie Restaurants und Geschäfte. Die Verkehrsanbindung ist ausgezeichnet mit einer Bushaltestelle vor der Tür und dem Hauptbahnhof in der Nähe. Ein attraktiver Standort für Büronutzer, die eine erstklassige Lage und moderne Räumlichkeiten suchen. Dienstleister des täglichen Bedarfs befinden sich in der Nähe.
- Flughafen, Stuttgart, Fahrzeit: 20 min
- Bundesautobahn, A 8, Fahrzeit: 15 min
- Bundesautobahn, A 81, Fahrzeit: 15 min
- Bundesstraße, B 14, Fahrzeit: 5 min
- Bundesstraße, B 27, Fahrzeit: 2 min
- Bus, Bushaltestelle Stuttgart Stadtmitte Buslinien 42, 43, 44, 92, Gehzeit: 2 min
- Hauptbahnhof, Stuttgart (Linie: ICE, IC, RE, RB, IRE, MEX, S-Bahn, U-Bahn, Bus, etc.), Gehzeit: 10 min
Ihr Kontakt

Marvin Gnaase
Ihr Kontakt









