Büros
ID S0432Provisionsfrei
Büroimmobilie - Stuttgart, Mitte - S0432
Mitte, 70174, Stuttgart, Baden-Württemberg
15 € / m²
- Fläche272 - 1.920 m²
- VerfügbarkeitSofort
- Objekt
- Ausstattung
- Lage und Verkehrsanbindung
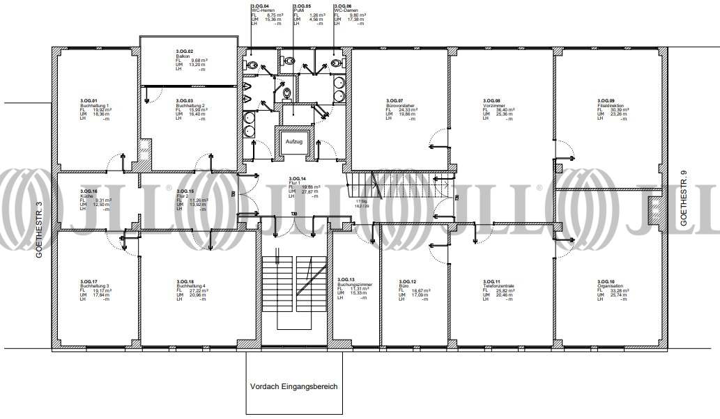
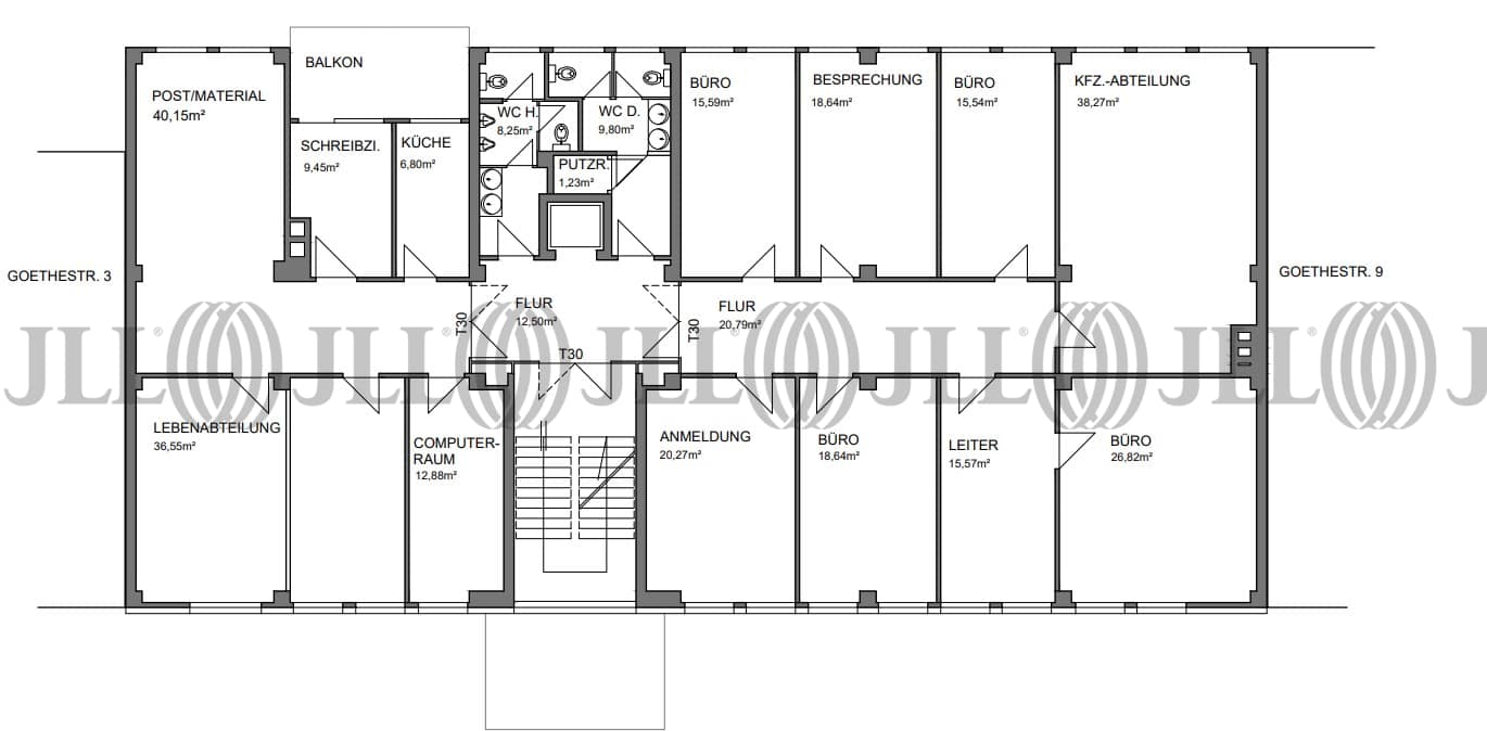
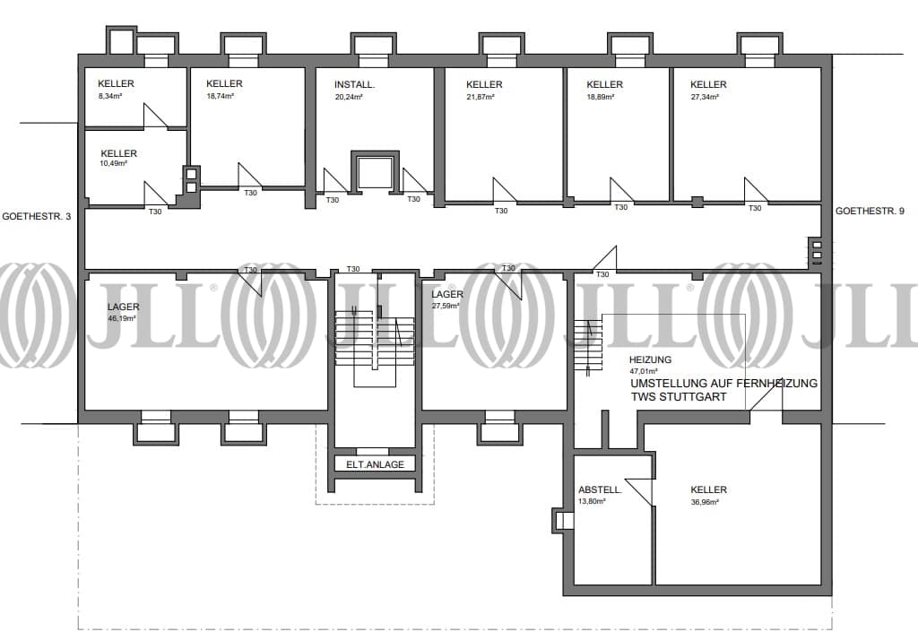
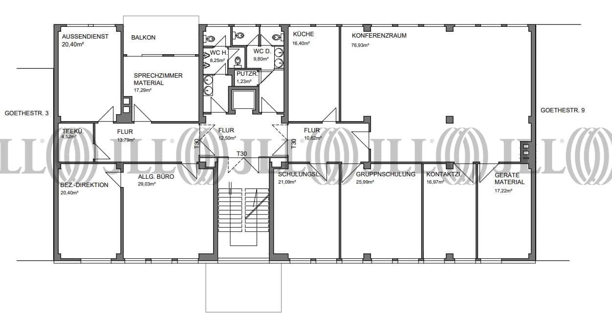
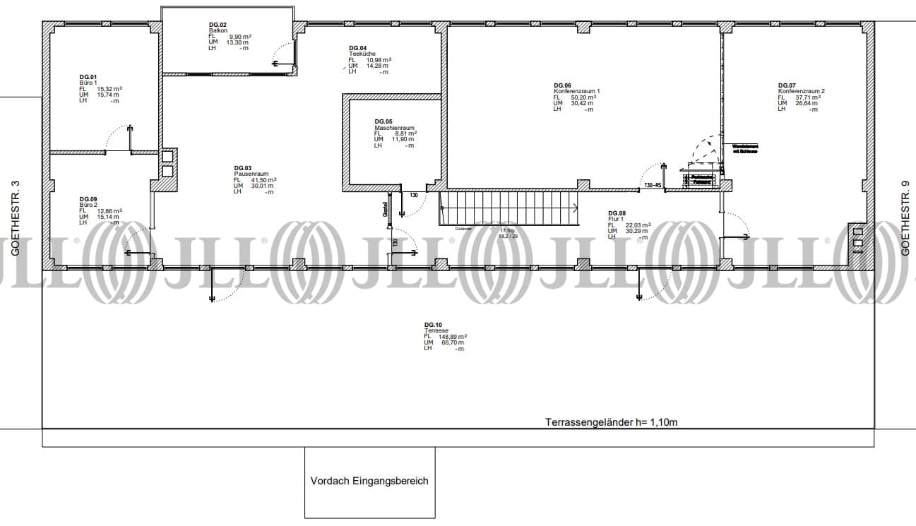
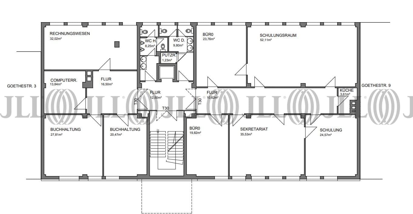
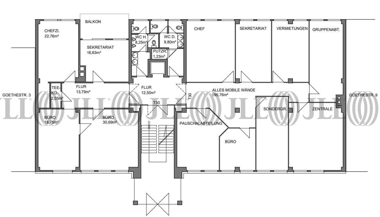
- Grundrisse
- Exposé herunterladen
- Ihr Kontakt
- Anfrage senden
Objekt
Das klassische Bürogebäude in der Stuttgarter Innenstadt befindet sich in unmittelbarer Nähe zum Stuttgarter Hauptbahnhof (3 Gehminuten) sowie zur Königsstraße ( 6 Gehminuten). Dadurch ist eine ausgezeichnete Anbindung an den öffentlichen Personennah- und Fernverkehr sowie gastronomischer Infrastruktur gegeben. Das Gebäude verfügt über 7 Geschosse und einen zentralen Eingang. Zur Straßenseite ist das Objekt mit Naturstein verkleidet und wird ausschließlich als Bürohaus genutzt. Rückwärtig grenzt es an den ruhigen Parkhof des Nachbarobjektes. Die Übernahme der Büroflächen erfolgen wie sie stehen und liegen.
Zertifizierungen
Energieausweis
Für diese Liegenschaft liegt ein Bedarfsausweis vom 2015-06-29 vom Eigentümer/Vermieter vor. Die wesentlichen Energieträger der Liegenschaft sind Strom,Fernwärme. Der Endenergiebedarf Strom beträgt 25.00 kWh/(m²*a). Der Endenergiebedarf Wärme beträgt 166.00 kWh/(m²*a).Verfügbare Fläche
Lage und Verkehrsanbindung
Stuttgart City, bzw. Stuttgart-Mitte ist der innere Stadtbezirk und das Herz der Landeshauptstadt Stuttgart. In der City werden Kultur, Politik und Wirtschaft perfekt kombiniert. Mittelpunkt des Bezirks ist die Königstraße, eine der längsten Fußgängerzonen Deutschlands, in welcher namhafte Geschäfte vertreten sind. Am Ende der Königstraße befindet sich der Stuttgart Hauptbahnhof, von dem aus regionale-, überregionale-, und internationale Ziele erreicht werden können. Mit einem breitgefächerten kulturellen Angebot, vielen Einzelhändlern und einer kulinarischen Vielfalt, ist Stuttgart eine sehr attraktive Stadt. Der Schlossplatz und die Schlossgartenanlage, lädt zu Entspannung und Erholung ein. Eine Tankstelle befindet sich in der Nähe. Dienstleister des täglichen Bedarfs befinden sich in der Nähe.
- Flughafen, Stuttgart, Fahrzeit: 15 min
- Bundesautobahn, A 8, Fahrzeit: 15 min
- Bundesautobahn, A 81, Fahrzeit: 20 min
- Bundesstraße, B 27, Fahrzeit: 15 min
- Bus, Bushaltestelle Hauptbahnhof Buslinien 40,42,44, Gehzeit: 2 min
- Hauptbahnhof, (ICE, IC, RE, S-Bahn, etc.), Gehzeit: 2 min
- Hauptbahnhof, (ICE, IC, RE, S-Bahn, etc.), Fahrzeit: 2 min
Ihr Kontakt

Marvin Gnaase
Ihr Kontakt



