Büros
ID S0332Provisionsfrei
Büroimmobilie - Böblingen - S0332
71034, Böblingen, Baden-Württemberg
11,50 € / m²
- Fläche288 - 591 m²
- VerfügbarkeitSofort
- Objekt
- Ausstattung
- Lage und Verkehrsanbindung
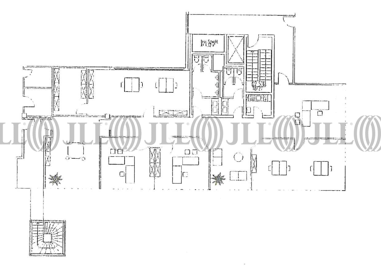
- Grundrisse
- Exposé herunterladen
- Ihr Kontakt
- Anfrage senden
Objekt
Die Raumaufteilung des Objekts kann je nach Mieterwunsch individuell gestaltet werden.
Zertifizierungen
Energieausweis
Für diese Liegenschaft liegt ein Verbrauchsausweis vom 07.04.2019 vom Eigentümer/Vermieter vor. Die wesentlichen Energieträger der Liegenschaft sind Erdgas leicht, Strom. Der Endenergieverbrauch Strom beträgt 49.30 kWh/(m²*a). Der Endenergieverbrauch Wärme beträgt 150.40 kWh/(m²*a).Verfügbare Fläche
Lage und Verkehrsanbindung
Die Kreisstadt Böblingen gehört zur Metropolregion Stuttgart und ist etwa 20 km von der Landeshauptstadt entfernt. Böblingen gehört zu den wirtschaftsstärksten Standorten in Deutschland, in welcher namhafte Konzerne und mittelständische Unternehmen angesiedelt sind. Geprägt ist die Stadt vor allem von Automobil und IT-Unternehmen, wie beispielsweise Daimler, Bosch, HP und IBM. Böblingen liegt direkt an der Autobahn A81 und an der Bundesstraße B24, somit kann der Flughafen Stuttgart in 25 Minuten erreicht werden. Mit der S-Bahn S1 kann man Stuttgart City in 20 Minuten erreichen. Eine Tankstelle befindet sich in der Nähe.
- Flughafen, Stuttgart, Fahrzeit: 17 min
- Bundesautobahn, A 8, Fahrzeit: 13 min
- Bundesautobahn, A 81, Fahrzeit: 5 min
- Bus, Bushaltestelle Böblinger Talstraße Buslinien 705,728,731,732,763,766, Gehzeit: 3 min
- S-Bahn, Böblingen (S1, S11, S60), Gehzeit: 8 min
- Hauptbahnhof, Stuttgart (ICE, RE, IRE, RB, U-Bahn, Bus etc.), Fahrzeit: 28 min
Ihr Kontakt

Marvin Gnaase
Ihr Kontakt

