Büros
ID S0273Provisionsfrei
Aktualisiert
Büroimmobilie - Leinfelden-Echterdingen - S0273
70771, Leinfelden-Echterdingen, Baden-Württemberg
14,95 € / m²
- Fläche256 - 3.409 m²
- VerfügbarkeitSofort
- Objekt
- Ausstattung
- Lage und Verkehrsanbindung
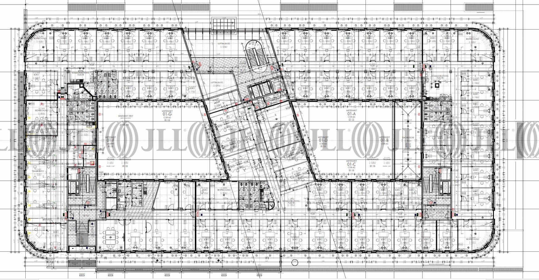
- Grundrisse
- Exposé herunterladen
- Ihr Kontakt
- Anfrage senden
Objekt
Die Flächen der jeweiligen Etage können sowohl als Gesamtfläche als auch als Teilflächen angemietet werden. Weiterhin stehen dem künftigen Mieter in der Tiefgarage mit 2 Untergeschossen Stellplätze zur Verfügung.
Heizung und Kühlung:
Für die Heizung bzw. Grundtemperierung des Gebäudes ist eine Betonkerntemperierung für Büro und Besprechungsräume vorgesehen. Auf mechanische Lüftungsanlagen in den Büroräumen wurde bewusst verzichtet. Die Betonkerntemperierung mit der Möglichkeit der Fenster Lüftung ergibt ein Wohlfühlklima im Büro, welches sowohl umwelt- als auch mitarbeiterfreundlich ist. Die Grundkühlung mittels Erdwärme bzw. –kälte ist eine der ressourcenschonensten Möglichkeiten der Raumklimatisierung.
Heizung und Kühlung:
Für die Heizung bzw. Grundtemperierung des Gebäudes ist eine Betonkerntemperierung für Büro und Besprechungsräume vorgesehen. Auf mechanische Lüftungsanlagen in den Büroräumen wurde bewusst verzichtet. Die Betonkerntemperierung mit der Möglichkeit der Fenster Lüftung ergibt ein Wohlfühlklima im Büro, welches sowohl umwelt- als auch mitarbeiterfreundlich ist. Die Grundkühlung mittels Erdwärme bzw. –kälte ist eine der ressourcenschonensten Möglichkeiten der Raumklimatisierung.
Zertifizierungen
Energieausweis
DGNB: SilverFür diese Liegenschaft liegt ein Verbrauchsausweis vom 13.05.2019 vom Eigentümer/Vermieter vor. Die wesentlichen Energieträger der Liegenschaft sind Erdgas leicht, Strom. Der Endenergieverbrauch Strom beträgt 93.10 kWh/(m²*a). Der Endenergieverbrauch Wärme beträgt 42.70 kWh/(m²*a).
Verfügbare Fläche
Lage und Verkehrsanbindung
Der Standort ist in unmittelbarer Nähe zur B27 bzw. A8 und von der Anschlussstelle Leinfelden-Echterdingen Nord oder Leinfelden-Echterdingen Mitte in ca. 5 Minuten erreichbar. Mit dem Auto beträgt die Fahrzeit zum Flughafen ca. 10 Minuten, zum Stuttgarter Hauptbahnhof bzw. zur Stuttgarter City ca. 20 Minuten.
- Flughafen, Stuttgart, Fahrzeit: 7 min
- Bundesautobahn, A 8, Fahrzeit: 4 min
- Bundesautobahn, A 81, Fahrzeit: 10 min
- Bundesstraße, B 27, Fahrzeit: 2 min
- Bundesstraße, B 10, Fahrzeit: 26 min
- Bundesstraße, B 14, Fahrzeit: 9 min
- Bus, Echterdingen Magellanstr. (Linie: 818), Gehzeit: 1 min
- Bahnhof, Echterdingen (S2, S3), Gehzeit: 12 min
- Bahnhof, Echterdingen (S2, S3), Fahrzeit: 2 min
Ihr Kontakt

Peter Gent
Ihr Kontakt








