Büros
ID S0266Provisionsfrei
Büroimmobilie - Filderstadt - S0266
70794, Filderstadt, Baden-Württemberg
11,50 € / m²
- Fläche150 - 2.072 m²
- VerfügbarkeitSofort
- Objekt
- Ausstattung
- Lage und Verkehrsanbindung
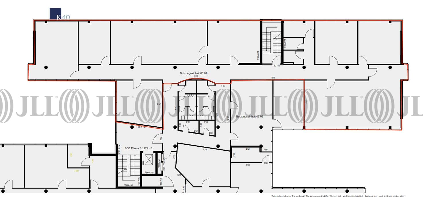
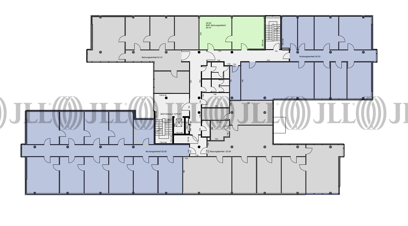
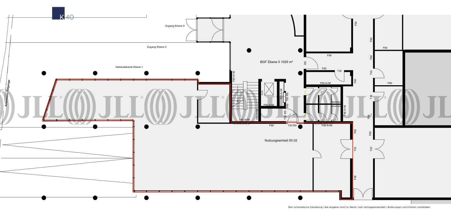
- Grundrisse
- Exposé herunterladen
- Ihr Kontakt
- Anfrage senden
Objekt
Die moderne Architektur mit klaren Linien ermöglicht eine flexible und effiziente Raumaufteilung. Großzügige Fensterfronten sorgen für eine lichtdurchflutete und angenehme Arbeitsatmosphäre. Auch die Ausstattung weist einen gehobenen Standard vor.
Zertifizierungen
Energieausweis
Für diese Liegenschaft liegt ein Verbrauchsausweis vom 2020-04-27 vom Eigentümer/Vermieter vor. Der wesentliche Energieträger der Liegenschaft ist Erdgas schwer. Der Endenergieverbrauch Strom beträgt 20.20 kWh/(m²*a). Der Endenergieverbrauch Wärme beträgt 118.20 kWh/(m²*a).Verfügbare Fläche
Lage und Verkehrsanbindung
Das Objekt befindet sich südlich von Stuttgart im Gewerbegebiet von Filderstadt-Bonlanden. Die Stadt Filderstadt gehört zur Metropolregion Stuttgart und ist etwa 17 km von der Landeshauptstadt entfernt. Bekannt ist Filderstadt vor allem für die Nähe zum Flughafen und der Stuttgarter Messe. Filderstadt ist ebenfalls ein starker Wirtschaftsstandort mit namhaften Unternehmen wie Modine GmbH, der Hugo Boss AG und Herma GmbH. Filderstadt liegt direkt an der Bundesstraße B 27 und der Autobahn A 8, somit kann der Flughafen Stuttgart in nur 5 Minuten und die Stuttgarter City in 25 Minuten erreicht werden. Mit der S-Bahn S2 kann man die Stuttgarter Innenstadt in wenigen Minuten erreichen. Eine Tankstelle befindet sich in der Nähe. Dienstleister des täglichen Bedarfs befinden sich in der Nähe.
- Flughafen, Stuttgart, Fahrzeit: 7 min
- Bundesautobahn, A 8, Fahrzeit: 10 min
- Bundesautobahn, A 81, Fahrzeit: 15 min
- Bundesstraße, B 10, Fahrzeit: 26 min
- Bundesstraße, B 14, Fahrzeit: 20 min
- Bundesstraße, B 27, Fahrzeit: 3 min
- Bundesstraße, B 295, Fahrzeit: 37 min
- Bus, Bonlanden Nord (Buslinien 35, 76), Gehzeit: 5 min
- Bahnhof, Filderstadt, Gehzeit: 35 min
- Hauptbahnhof, (ICE, IC, RE, S-Bahn, etc.), Fahrzeit: 25 min
Ihr Kontakt

Marvin Gnaase
Ihr Kontakt


























