Büros
ID S0179Provisionsfrei
Büroimmobilie - Stuttgart, Mitte - S0179
Mitte, 70173, Stuttgart, Baden-Württemberg
22 € / m²
- Fläche162 - 555 m²
- VerfügbarkeitSofort
- Objekt
- Ausstattung
- Lage und Verkehrsanbindung
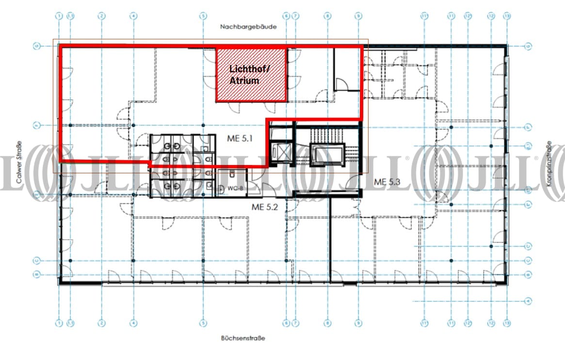
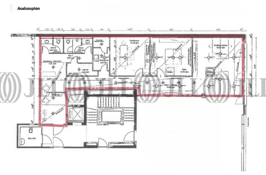
- Grundrisse
- Exposé herunterladen
- Ihr Kontakt
- Anfrage senden
Objekt
Das 7-geschossige Objekt ist generalsaniert und teilweise neu erbaut. Die Büroausstattung ist sehr hochwertig ausgeführt und eine Kühlung der Flächen ist möglich. Weitere Glaselemente im Gebäude, Hohlraumboden und Klimaanlage sind in diesem Objekt genauso zu finden wie sehr exklusive Nasszellen. Ein hochwertiger Aufzug mit Aluminium- und Spiegelelementen unterstreicht nochmals das sehr hochwertige Erscheinungsbild.
Verfügbare Fläche
Lage und Verkehrsanbindung
Das Objekt befindet sich in zentraler und hoch frequentierter Geschäftslage der Stuttgarter Innenstadt. Die Büchsenstraße dient als Fußgängerverbindung zwischen dem S-Bahn-Knotenpunkt “Stadtmitte“ und der Königstraße, die als Haupteinkaufsstraße in Stuttgart angesehen wird. Drei Straßen (Calwerstraße/ Büchsenstraße/ Kronprinzstraße) grenzen an die Liegenschaft. Im unmittelbaren Umfeld befinden sich sowohl Gastronomie als auch namhafte Filialisten. Aufgrund der sehr guten Infrastruktur können alle Ansprüche des täglichen Bedarfs erfüllt werden. Der Zugang zur S-Bahn-Station „Stadtmitte“, die von allen sechs S-Bahn-Linien angefahren wird, ist nur ca. 100 m entfernt. Eine Tankstelle befindet sich in der Nähe. Dienstleister des täglichen Bedarfs befinden sich in der Nähe.
- Flughafen, Stuttgart, Fahrzeit: 17 min
- Bundesautobahn, A 8, Fahrzeit: 15 min
- Bundesautobahn, A 81, Fahrzeit: 20 min
- Bus, Bushaltestelle Schlossplatz Buslinien 42, 44 , Gehzeit: 7 min
- Hauptbahnhof, Stuttgart (Linie: S1, S2, S3, S4, S5, S6, S11, S60, U5, U6, U7, U12, U14, U15, U29), Gehzeit: 10 min
- S-Bahn, Stadtmitte (Linie: S1-S6), Gehzeit: 2 min
Ihr Kontakt

Marvin Gnaase
Ihr Kontakt











