
Büros
ID S0146Provisionsfrei
Aktualisiert
Büroimmobilie - Stuttgart, Feuerbach - S0146
Feuerbach, 70469, Stuttgart, Baden-Württemberg
14,50 € / m²
- Fläche327 - 1.100 m²
- VerfügbarkeitSofort
- Objekt
- Ausstattung
- Lage und Verkehrsanbindung
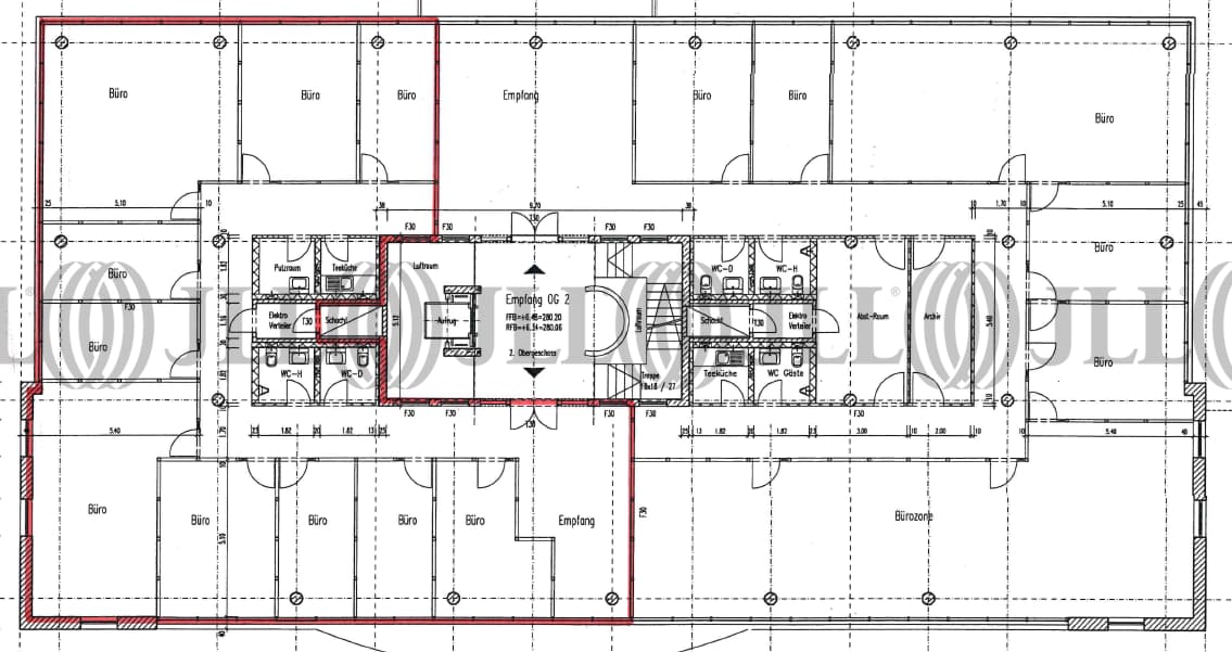
- Grundrisse
- Exposé herunterladen
- Ihr Kontakt
- Anfrage senden
Objekt
Das Objekt verfügt über einen großzügigen Eingangsbereich. Im Erdgeschoss gibt es zudem einen großen und einen kleinen Konferenzräum zur gemeinschaftlichen Nutzung, sowie einen Aufzug und Zugang zur Tiefgarage. Im Dachgeschoss gibt es einen gemeinsamen Aufenthaltsbereich mit einem weitläufigen Blick über die Dächer der Stadt - Die Bürofläche ist flexibel aufteilbar und besonders hell.
Zertifizierungen
Energieausweis
Für diese Liegenschaft liegt ein Bedarfsausweis vom 21.10.2020 vom Eigentümer/Vermieter vor. Die wesentlichen Energieträger der Liegenschaft sind Erdgas leicht, Strom. Der Endenergiebedarf Strom beträgt 25.00 kWh/(m²*a). Der Endenergiebedarf Wärme beträgt 144.00 kWh/(m²*a).Verfügbare Fläche
Lage und Verkehrsanbindung
Das Geschäfts- und Bürogebäude mit Tiefgarage liegt im Roser-Areal und hat eine umfassende Infrastruktur. Das Roser-Areal liegt im Zentrum von Stuttgart-Feuerbach mit guter Nahversorgung und hat einem gesunden Mix aus Wirtschafts-, Gewerbe- und Bürohäusern. In wenigen Fahrminuten erreicht man die Bundesstraßen B27 und B295. Eine Tankstelle befindet sich in der Nähe. Dienstleister des täglichen Bedarfs befinden sich in der Nähe.
- Flughafen, Stuttgart, Fahrzeit: 30 min
- Bundesautobahn, A 8, Fahrzeit: 17 min
- Bundesautobahn, A 81, Fahrzeit: 12 min
- Bus, Feuerbach (Linie: 91,401,501,502,591), Gehzeit: 5 min
- S-Bahn, Feuerbach (Linie: S4, S5, S6, S60), Gehzeit: 5 min
- Hauptbahnhof, Stuttgart (Linie: ICE, IC, RE, RB, IRE, MEX, S-Bahn, U-Bahn, Bus, etc.), Fahrzeit: 10 min
Ihr Kontakt

Peter Gent
Ihr Kontakt