Büros
ID S0092Provisionsfrei
Büroimmobilie - Stuttgart, Mitte - S0092
Mitte, 70174, Stuttgart, Baden-Württemberg
21 € / m²
- Fläche149 m²
- VerfügbarkeitAuf Anfrage
- Objekt
- Ausstattung
- Lage und Verkehrsanbindung
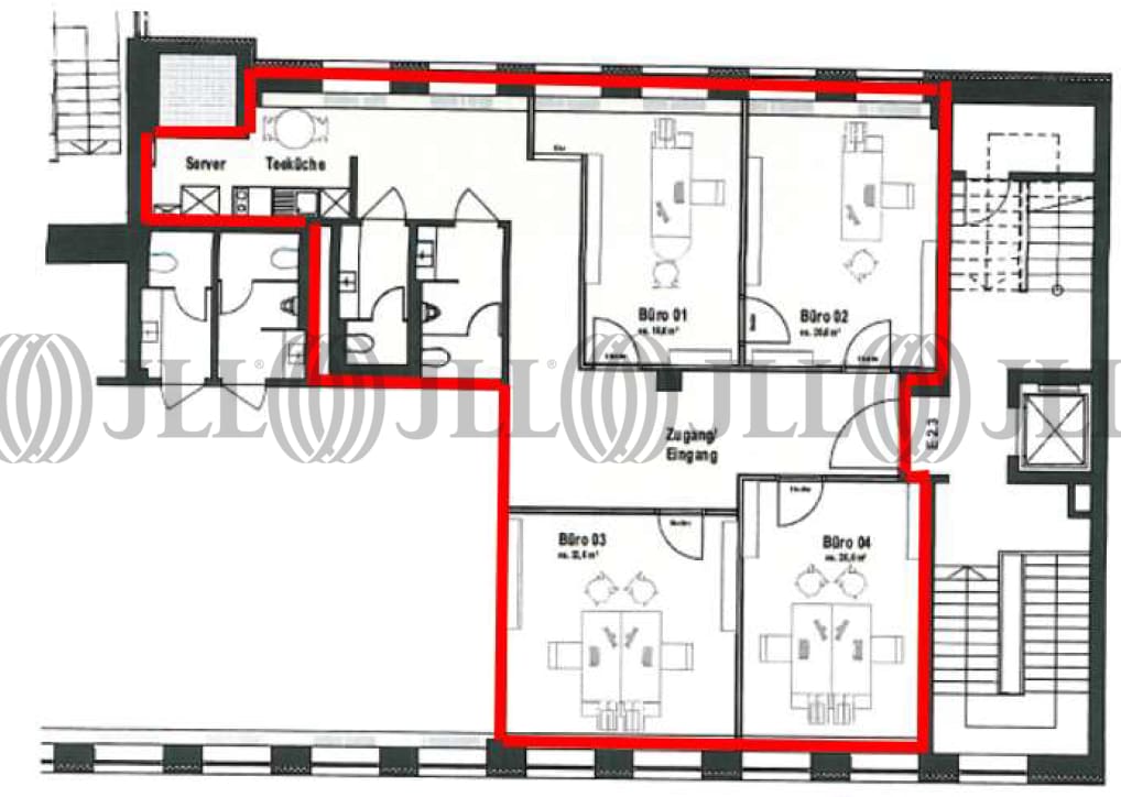
- Grundriss
- Exposé herunterladen
- Ihr Kontakt
- Anfrage senden
Objekt
Das hochwertige Büro- und Geschäftshaus „Gallion“ kennzeichnet in exklusiver Innenstadtlage die Ecke Theodor-Heuss-Straße und Büchsenstraße und bietet damit den idealen Standort für Ihr Business. Das Gebäude wurde 2010 kernsaniert. Die Büroflächen verfügen über eine strukturierte EDV-Verkabelung (Cat.7).
Zertifizierungen
Energieausweis
Für diese Liegenschaft liegt ein Bedarfsausweis vom 02.04.2013 vom Eigentümer/Vermieter vor. Die wesentlichen Energieträger der Liegenschaft sind Fernwärme, Strom. Endenergiebedarf: 201.50000 kWh/(m²*a)Verfügbare Fläche
Lage und Verkehrsanbindung
Das Büro- und Geschäftshaus liegt in zentraler Lage der Stuttgarter Innenstadt zwischen diversen Bankfilialen und gastronomischen Einrichtungen. Das Objekt ist perfekt an den öffentlichen Personenverkehr angebunden. Die Bundesstraßen B14 und B27 sind in wenigen Fahrminuten erreichbar. Dienstleister des täglichen Bedarfs befinden sich in der Nähe.
- Flughafen, Stuttgart, Fahrzeit: 25 min
- Bundesautobahn, A 8, Fahrzeit: 25 min
- Bundesautobahn, A 81, Fahrzeit: 18 min
- Bundesstraße, B 27, Fahrzeit: 10 min
- Bus, Rotebühlplatz (Linie: 43, 92), Gehzeit: 7 min
- S-Bahn, Stadtmitte (S1-S6), Gehzeit: 5 min
- U-Bahn, Rotebühlplatz (U2/U4/U14), Gehzeit: 5 min
- U-Bahn, Börsenplatz (U9/U14), Gehzeit: 5 min
- Hauptbahnhof, Stuttgart (ICE, RE, IRE, IC, RB, S-Bahn, U-Bahn, Bus etc.), Gehzeit: 10 min
- U-Bahn, Schlossplatz (U5-U7/U12/U15) , Gehzeit: 5 min
- Hauptbahnhof, Stuttgart (ICE, RE, IRE, IC, RB, S-Bahn, U-Bahn, Bus etc.), Fahrzeit: 2 min
Ihr Kontakt

Marvin Gnaase
Ihr Kontakt


