Büros
ID S0085Provisionsfrei
Büroimmobilie - Filderstadt - S0085
70794, Filderstadt, Baden-Württemberg
15,50 € / m²
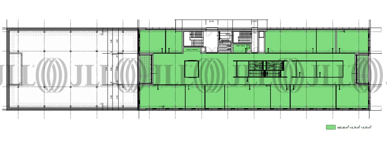
- Fläche645 - 1.302 m²
- VerfügbarkeitSofort
- Objekt
- Ausstattung
- Lage und Verkehrsanbindung
- Grundrisse
- Exposé herunterladen
- Ihr Kontakt
- Anfrage senden
Objekt
Die ansprechende Architektur und die hellen Räume mit modernster Technik sowie die flexible Aufteilung, welche nach Mieterwunsch realisiert wird, sind nur einige Vorteile für diese herausragende Fläche.
Verfügbare Fläche
Lage und Verkehrsanbindung
Filderstadt liegt unmittelbar südlich der baden-württembergischen Landeshauptstadt Stuttgart. Die große Kreisstadt zählt aktuell ca. 44.000 Einwohner und ist damit hinter Esslingen die zweitgrößte Stadt im Landkreis Esslingen. Die größten Arbeitgeber der Stadt sind neben dem Etikettenhersteller Herma, der TÜV Süd und das Klimatechnikunternehmen Modine. Das Objekt befindet sich in unmittelbarer Nähe zum Flughafen Stuttgart und zur Messe Stuttgart. Dank der unweit entfernten Bundesautobahnen A8 bzw. A81 ist der Standort optimal an den überregionalen Straßenverkehr angebunden. Des Weiteren verlaufen die Bundesstraßen B27 und B312 durch das Stadtgebiet. Dienstleister des täglichen Bedarfs befinden sich in der Nähe.
- Flughafen, Stuttgart, Fahrzeit: 7 min
- Bundesautobahn, A 8, Fahrzeit: 8 min
- Bundesautobahn, A 81, Fahrzeit: 11 min
- Bus, Bernhausen Nord-West-Ring (Linie: 74, 76), Gehzeit: 7 min
- S-Bahn, Filderstadt (S2), Gehzeit: 14 min
- Hauptbahnhof, Stuttgart (ICE, RE, IRE, IC, RB, S-Bahn, U-Bahn, Bus etc.), Fahrzeit: 24 min
Ihr Kontakt

Marvin Gnaase
Ihr Kontakt

































