Büros
ID S0079Provisionsfrei
Büroimmobilie - Stuttgart, Vaihingen - S0079
Vaihingen, 70565, Stuttgart, Baden-Württemberg
13,80 € / m²
- Fläche273 - 2.292 m²
- VerfügbarkeitSofort
- Objekt
- Ausstattung
- Lage und Verkehrsanbindung
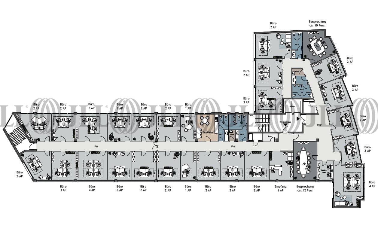
- Grundrisse
- Exposé herunterladen
- Ihr Kontakt
- Anfrage senden
Objekt
Das Bürogebäude befindet sich am Rande des Industriegebietes Stuttgart-Vaihingen und besticht durch seine hervorragende Anbindung an den ÖPNV.
Zertifizierungen
Energieausweis
Für diese Liegenschaft liegt ein Verbrauchsausweis vom 2014-04-30 vom Eigentümer/Vermieter vor. Der wesentliche Energieträger der Liegenschaft ist Erdgas schwer. Der Endenergieverbrauch Strom beträgt 11.30 kWh/(m²*a). Der Endenergieverbrauch Wärme beträgt 85.50 kWh/(m²*a).Verfügbare Fläche
Lage und Verkehrsanbindung
Das Objekt befindet sich im Industriegebiet „Am Wallgraben“ in Stuttgart Möhringen, ca. 10 km von Stuttgart entfernt. Der Stadtbezirk Möhringen liegt südlich der Landeshauptstadt Stuttgart und ist untergliedert in die Stadtteile Möhringen, Fasanenhof und Sonnenberg. Mit direkter Anbindung an die Bundesstraße B 27 und an die Autobahn A 8 ist Möhringen optimal zu erreichen. Mit mehreren S- und U-Bahn-Haltestellen kann man schnell in die Stuttgarter Innenstadt gelangen. Der Stadtbezirk ist Sitz vieler mittelständischen und großen Unternehmen wie der Ed. Züblin AG, EnBW und EvoBus. Bekannt ist Möhringen vor allem für das SI-Centrum, welches ein großes Freizeit- und Musicalprojekt ist. Wegen der modernen Sozial- und Infrastruktur besitzt der Stadtbezirk Möhringen einen hohen Freizeitwert und ist für Unternehmen sehr beliebt. Eine Tankstelle befindet sich in der Nähe. Dienstleister des täglichen Bedarfs befinden sich in der Nähe.
- Flughafen, Stuttgart, Fahrzeit: 17 min
- Bundesautobahn, A 8, Fahrzeit: 9 min
- Bundesautobahn, A 81, Fahrzeit: 9 min
- Bundesstraße, B 10, Fahrzeit: 23 min
- Bundesstraße, B 14, Fahrzeit: 6 min
- Bundesstraße, B 27, Fahrzeit: 10 min
- Bundesstraße, B 295, Fahrzeit: 28 min
- Bus, Jurastraße Buslinien (81, 82), Gehzeit: 5 min
- U-Bahn, Wallgraben, Gehzeit: 2 min
- Hauptbahnhof, (ICE, IC, RE, S-Bahn, etc.), Fahrzeit: 25 min
Ihr Kontakt

Marvin Gnaase
Ihr Kontakt
Marktinformationen
Mietmarkt
Vaihingen, Stuttgart
siehe 18 passende MietobjekteErfahren Sie mehr
* Durchschnittspreis auf Grundlage historischer Transaktionen.




