Büros
ID S0026Provisionsfrei
Aktualisiert
Büroimmobilie - Stuttgart, Wangen - S0026
Wangen, 70327, Stuttgart, Baden-Württemberg
Kontaktieren Sie uns für den Preis
- Fläche227 - 14.442 m²
- VerfügbarkeitSofort
- Objekt
- Ausstattung
- Lage und Verkehrsanbindung
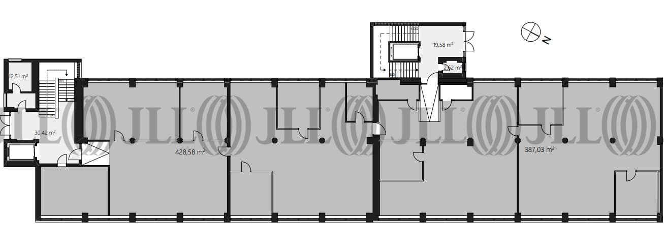
- Grundrisse
- Exposé herunterladen
- Ihr Kontakt
- Anfrage senden
Objekt
Der Bürocampus bietet mit seinem schönen Blick auf die Weinberge und das Landschaftsschutzgebiet einen einzigartigen Standort für Unternehmen. Viele namhafte Unternehmen, wie Bosch, Porsche und Mahle, befinden sich bereits in der Nachbarschaft.
Die Flächen können flexibel genutzt werden und bieten auch im Bezug auf die Grundrissgestaltung maximale Individualisierungsmöglichkeiten. Diese großen, zusammenhängenden Flächen können insbesondere für Großgesuche interessant und geeignet sein.
Zudem verfügt der BCW über viele, gut zugängliche Lager- und Sondernutzungsflächen, die sich im Erdgeschoss befinden oder praktisch via Lastenaufzug erreichbar sind.
Die Flächen können flexibel genutzt werden und bieten auch im Bezug auf die Grundrissgestaltung maximale Individualisierungsmöglichkeiten. Diese großen, zusammenhängenden Flächen können insbesondere für Großgesuche interessant und geeignet sein.
Zudem verfügt der BCW über viele, gut zugängliche Lager- und Sondernutzungsflächen, die sich im Erdgeschoss befinden oder praktisch via Lastenaufzug erreichbar sind.
Zertifizierungen
Energieausweis
Für diese Liegenschaft liegt ein Bedarfsausweis vom 2010-10-08 vom Eigentümer/Vermieter vor. Die wesentlichen Energieträger der Liegenschaft sind Strom,Holzpellets. Endenergiebedarf: 392.80000 kWh/(m²*a).Verfügbare Fläche
Lage und Verkehrsanbindung
Der Bürocampus Wangen befindet sich auf dem ehemaligen Kodak-Areal in der Hedelfinger Straße und ist Teil des traditionellen Gewerbestandorts Wangen. Der Stadtbezirk Wangen liegt östlich der Landeshauptstadt Stuttgart direkt an der Bundesstraße B 10. In die Stuttgarter Innenstadt gelangt man in nur 15 Minuten mit dem PKW. Auch mit der U-Bahn ist man in kürzester Zeit im Herzen Stuttgarts. Früher war der Stadtbezirk vor allem als Industrievorort bekannt, heute sind jedoch mehrere Unternehmen aus Handel, Dienstleistung und Hochtechnologie angesiedelt. Es gibt mehrere Geschäfte zur Deckung des täglichen Bedarfs. Eine Tankstelle befindet sich in der Nähe. Dienstleister des täglichen Bedarfs befinden sich in der Nähe.
- Flughafen, Stuttgart, Fahrzeit: 20 min
- Bundesautobahn, A 8, Fahrzeit: 17 min
- Bundesautobahn, A 81, Fahrzeit: 25 min
- Bundesstraße, B 10, Fahrzeit: 1 min
- Bundesstraße, B 14, Fahrzeit: 10 min
- Hauptbahnhof, Stuttgart (ICE, RE, IRE, IC, RB, S-Bahn, U-Bahn, Bus etc.), Fahrzeit: 12 min
- U-Bahn, Hedelfinger Straße (U9, U13), Gehzeit: 2 min
Ihr Kontakt

Peter Gent
Ihr Kontakt



















