Büros
ID M2677Büroimmobilie - Haar - M2677
85540, Haar, Bayern
Provisionspflichtig: bei Anmietung 3 Netto-Monatsmieten zzgl. gesetzlicher Umsatzsteuer.** der Wert kann je nach Vertragslaufzeit variieren.
17,36 € / m²
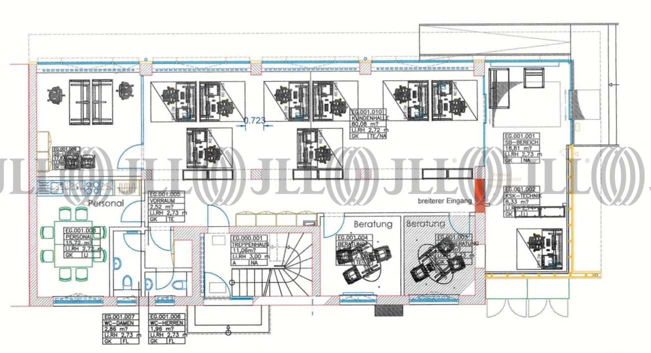
- Fläche162 m²
- VerfügbarkeitSofort
- Ausstattung
- Lage und Verkehrsanbindung
- Grundriss
- Exposé herunterladen
- Ihr Kontakt
- Anfrage senden
Verfügbare Fläche
Lage und Verkehrsanbindung
Das Bürogebäude am Jagdfeldring 1 befindet sich in einer erstklassigen Lage im Gewerbegebiet Haar, einer der attraktivsten Bürostandorte im Münchener Osten. Die Immobilie profitiert von der strategisch günstigen Position mit hoher Sichtbarkeit an einer der Hauptverkehrsadern Haars.. Über die nahegelegene Ausfahrt besteht direkter Anschluss an die A99 (Münchener Ring), während die A94 Richtung Passau in wenigen Minuten erreichbar ist. Der S-Bahn-Anschluss mit den Linien S4 und S6 am Bahnhof Haar ist in etwa fünf Gehminuten zu erreichen, zusätzlich sorgen regelmäßige Busverbindungen für eine optimale Anbindung an die Münchener Innenstadt. Der Flughafen München ist bequem in circa 25 Minuten erreichbar. Das Umfeld des Standorts bietet eine ausgezeichnete Infrastruktur mit vielfältigen Einkaufsmöglichkeiten und Restaurants in unmittelbarer Nähe. Das Zentrum Haars mit seinem umfangreichen Einzelhandels- und Dienstleistungsangebot ist fußläufig erreichbar, ebenso wie medizinische Versorgungseinrichtungen und Apotheken. Mehrere Hotels in der näheren Umgebung sowie direkt am Gebäude verfügbare Parkplätze runden das Angebot ab. Haar gilt als etablierter Bürostandort mit hoher Standortqualität und zählt zu den bevorzugten Unternehmensstandorten im Münchener Speckgürtel, der eine perfekte Balance zwischen urbaner Anbindung und ruhiger Arbeitsatmosphäre bietet.
- Flughafen, München, Fahrzeit: 30 min
- Bundesautobahn, A99, Fahrzeit: 5 min
- Bundesautobahn, A94, Fahrzeit: 8 min
- Bundesautobahn, A8, Fahrzeit: 12 min
- Bus, Ludwig-Moser-Straße, Linien 193, 243, Gehzeit: 2 min
Ihr Kontakt

Tobias Schneider
Ihr Kontakt






