Büros
ID M2535Büroimmobilie - München, Maxvorstadt - M2535
Maxvorstadt, 80335, München, Bayern
Provisionspflichtig: bei Anmietung 3 Netto-Monatsmieten zzgl. gesetzlicher Umsatzsteuer.** der Wert kann je nach Vertragslaufzeit variieren.
28 € / m²
- Fläche298 m²
- VerfügbarkeitSofort
- Objekt
- Ausstattung
- Lage und Verkehrsanbindung
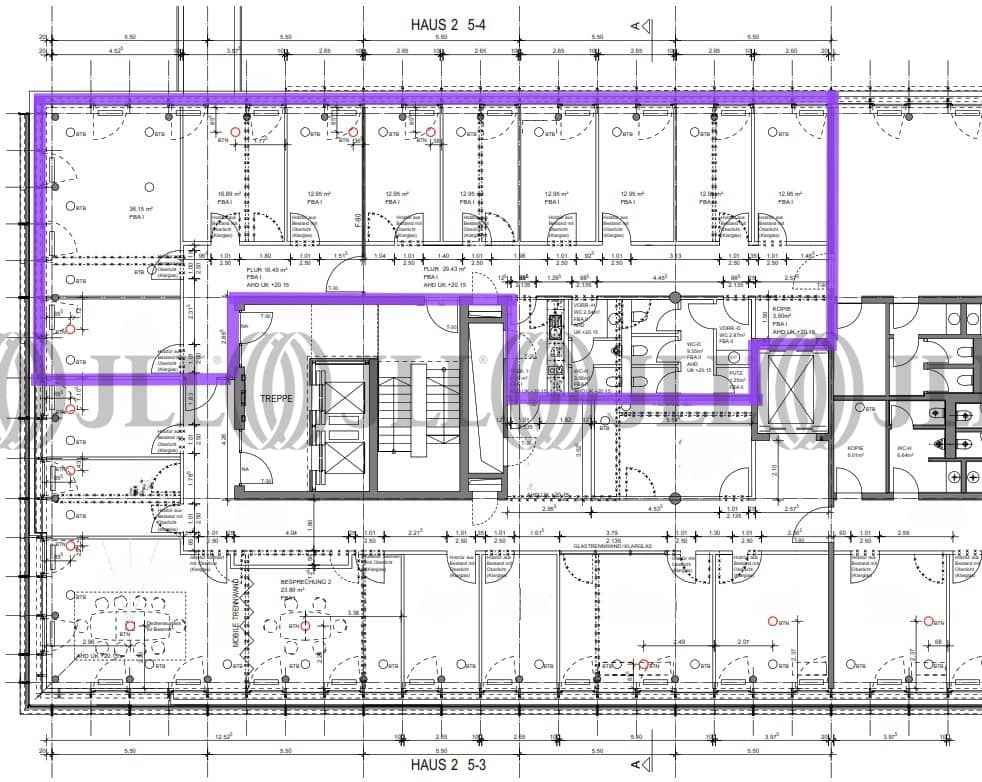
- Grundriss
- Exposé herunterladen
- Ihr Kontakt
- Anfrage senden
Objekt
Der attraktive Bürohausneubau mit Metallfassade ist ein 6-geschossiger Komplex mit zahlreichen Gestaltungsmöglichkeiten. 4 eigenständige Gebäude mit separaten Eingangsbereichen und Hausnummern sowie Innenhöfe als Grünzonen, die durch Passagen miteinander verbunden sind. Jeweils 2 Personenaufzüge pro Haus und ein zentraler Lastenaufzug in Haus 2 stehen dem Mieter zur Verfügung.
Verfügbare Fläche
Lage und Verkehrsanbindung
Das Objekt liegt direkt am Stiglmaierplatz, westlich der Innenstadt.
Ihr Kontakt

Tobias Schneider
Ihr Kontakt
Marktinformationen
Mietmarkt
Maxvorstadt, München
Gew. Ø-Miete
28 € / m²
siehe 27 passende MietobjekteErfahren Sie mehr* Durchschnittspreis auf Grundlage historischer Transaktionen.










