Büros
ID M2514Provisionsfrei
Büroimmobilie - Stockdorf - M2514
82131, Stockdorf, Bayern
16 € - 18 € / m²
- Fläche716 - 5.076 m²
- VerfügbarkeitSofort
- Objekt
- Ausstattung
- Lage und Verkehrsanbindung
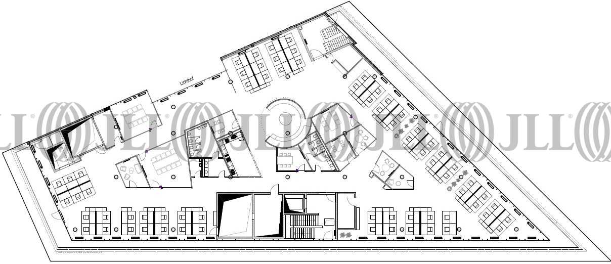
- Grundrisse
- Exposé herunterladen
- Ihr Kontakt
- Anfrage senden
Objekt
Das Objekt in der Kraillinger Straße 5 in Stockdorf ist ein modernes, nachhaltiges Bürogebäude, das Funktionalität und Umweltfreundlichkeit vereint. Es bietet flexible Büroflächen, ein integriertes Bistro und gut ausgestattete Konferenzräume. Das Herzstück des Nachhaltigkeitskonzepts ist eine Photovoltaikanlage auf dem Dach, die einen beträchtlichen Teil des Energiebedarfs deckt. Das Gebäude wurde nach neuesten Energieeffizienzstandards errichtet und verwendet nachhaltige Materialien. Die Lage in Gauting bietet eine gute Anbindung an München bei gleichzeitiger Nähe zur Natur. Dieses zukunftsorientierte Bürogebäude ist besonders für umweltbewusste Unternehmen attraktiv.
Verfügbare Fläche
Lage und Verkehrsanbindung
- Zentrale Lage in Stockdorf („Baier Platz“) - Sehr gute Anbindung durch S-Bahn Nähe - Umliegende Infrastruktur (Edeka, Cafés und Restaurants) - Landschaftlich schöne Lage im Würmtal
- Flughafen, München, Fahrzeit: 45 min
- Bundesautobahn, A 96, Fahrzeit: 8 min
- Bundesautobahn, A 95, Fahrzeit: 11 min
- Hauptbahnhof, München, Fahrzeit: 25 min
- Bus, Krailling, Lohfeldstr., Linien 962, 967, 968, Gehzeit: 3 min
- S-Bahn, Stockdorf, S6, Gehzeit: 10 min
Ihr Kontakt

Nicolai Reichert
Ihr Kontakt













