Büros
ID M2490Provisionsfrei
Büroimmobilie - Gräfelfing - M2490
82166, Gräfelfing, Bayern
21,90 € / m²
- Fläche157 - 1.674 m²
- VerfügbarkeitSofort
- Ausstattung
- Lage und Verkehrsanbindung
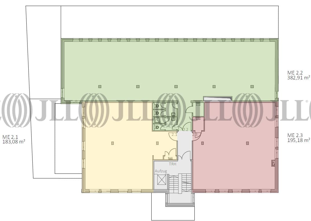
- Grundrisse
- Exposé herunterladen
- Ihr Kontakt
- Anfrage senden
Verfügbare Fläche
Lage und Verkehrsanbindung
Das Objekt liegt in Gräfelfing, einer gehobenen Gemeinde im Landkreis München, westlich der bayerischen Landeshauptstadt. Das Gebäude befindet sich im Gewerbegebiet im nördlichen Teil von Gräfelfing. Ein gut angebundener Standort mit Nähe zur A96 München-Lindau.
- Hauptbahnhof, München, Fahrzeit: 15 min
- Bus, Neuer Friedhof, Linien 160, 259, 268, Gehzeit: 1 min
- Bundesautobahn, A 96, Fahrzeit: 2 min
- Bundesautobahn, A 99, Fahrzeit: 5 min
- Flughafen, München, Fahrzeit: 34 min
Ihr Kontakt

Nicolai Reichert
Ihr Kontakt

