Büros
ID M2462Aktualisiert
Büroimmobilie - München, Bogenhausen - M2462
Bogenhausen, 81675, München, Bayern
Provisionspflichtig: bei Anmietung 3 Netto-Monatsmieten zzgl. gesetzlicher Umsatzsteuer.** der Wert kann je nach Vertragslaufzeit variieren.
33 € / m²
- Fläche353 - 801 m²
- VerfügbarkeitSofort
- Objekt
- Ausstattung
- Lage und Verkehrsanbindung
- Grundrisse
- Exposé herunterladen
- Ihr Kontakt
- Anfrage senden
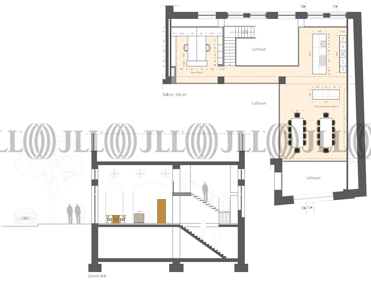
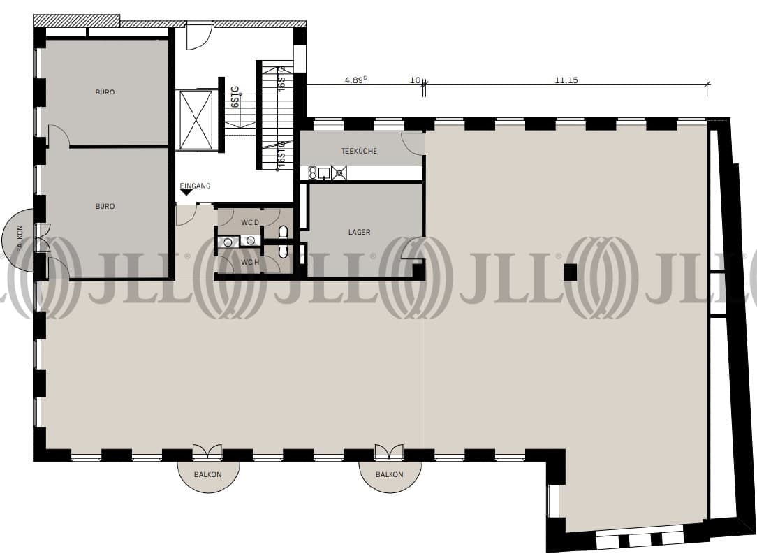
Objekt
Das Gebäude am Prinzregentenplatz 11 ist ein imposantes Wohn-und Geschäftshaus, das im Jahr 1903 erbaut wurde. Der Bau repräsentiert die typische Architektur der Gründerzeit mit einer prächtigen Fassade, die durch aufwendige Stuckarbeiten und historisierende Details hervorsticht. Trotz seines Alters wurde das Gebäude umfangreich saniert und modernisiert, sodass es heute den Ansprüchen an Komfort und Funktionalität gerecht wird, ohne dabei seinen historischen Charme zu verlieren.
Das Objekt umfasst mehrere Etagen und bietet eine Kombination aus Wohn-und Gewerbeflächen. Die Geschäftsräume im Erdgeschoss sind ideal für Einzelhandelsgeschäfte, während die Etagen 1.–4. hochwertige Büro und Praxisflächen beherbergen. Im 5.Obergeschoss (Dachgeschoss) befinden sich zwei wunderschöne Wohnungen.
Das Objekt umfasst mehrere Etagen und bietet eine Kombination aus Wohn-und Gewerbeflächen. Die Geschäftsräume im Erdgeschoss sind ideal für Einzelhandelsgeschäfte, während die Etagen 1.–4. hochwertige Büro und Praxisflächen beherbergen. Im 5.Obergeschoss (Dachgeschoss) befinden sich zwei wunderschöne Wohnungen.
Verfügbare Fläche
Lage und Verkehrsanbindung
Der Prinzregentenplatz 11 befindet sich im Herzen des Münchener Stadtteils Bogenhausen, einem der begehrtesten und angesehensten Viertel der bayerischen Landeshauptstadt. Der Prinzregentenplatz liegt direkt an der berühmten Prinzregentenstraße, einer der wichtigsten und repräsentativsten Straßen Münchens, die das Stadtzentrum mit dem östlichen Teil der Stadt verbindet. Die Anbindung an den öffentlichen Nahverkehr ist exzellent, mit der U-Bahnstation „Prinzregentenplatz“ direkt vor der Tür, sowie mehreren Bus-und Straßenbahnlinien. Die Münchener Innenstadt ist in wenigen Minuten erreichbar, ebenso wie der Englische Garten. Die Umgebung ist geprägt von prachtvollen Altbauten, gepflegten Grünanlagen und einer Vielzahl von Restaurants, Cafés und gehobenen Einzelhandelsgeschäften.
- Flughafen, München, Fahrzeit: 20 min
- Bundesautobahn, A 94, Fahrzeit: 5 min
- Bundesautobahn, A 9, Fahrzeit: 12 min
- Bundesautobahn, A 8, Fahrzeit: 12 min
- Hauptbahnhof, München, Fahrzeit: 10 min
- U-Bahn, Prinzregentenplatz, Linie U4, Gehzeit: 1 min
Ihr Kontakt

Tobias Schneider
Ihr Kontakt
Marktinformationen
Mietmarkt
Bogenhausen, München
Gew. Ø-Miete
33 € / m²
siehe 9 passende MietobjekteErfahren Sie mehr* Durchschnittspreis auf Grundlage historischer Transaktionen.




















