Büros
ID M2440Provisionsfrei
Büroimmobilie - Nürnberg, Altstadt und Engere Innenstadt - M2440
Altstadt und Engere Innenstadt, 90443, Nürnberg, Bayern
Kontaktieren Sie uns für den Preis
- Fläche60 - 1.455 m²
- VerfügbarkeitSofort
- Objekt
- Ausstattung
- Lage und Verkehrsanbindung
- Grundriss
- Exposé herunterladen
- Ihr Kontakt
- Anfrage senden
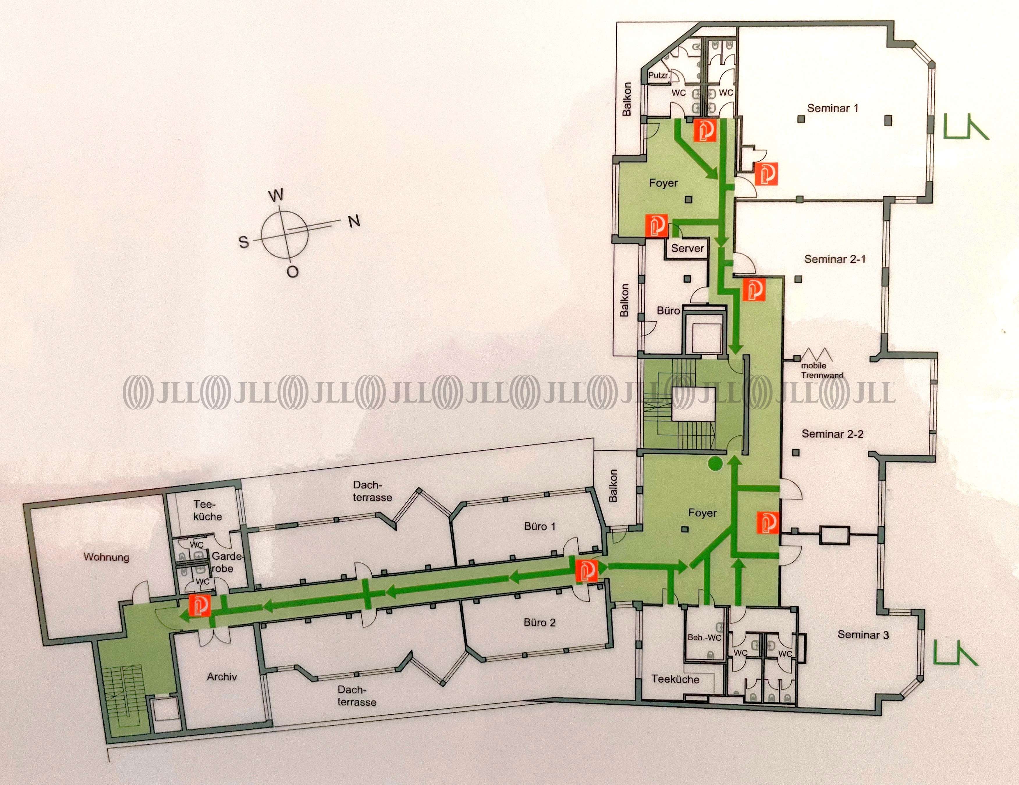
Objekt
Das Erdgeschoss ist durch eine interne Treppe mit dem 1. Obergeschoss verbunden. Dort befinden sich zwei großzügige Terrassen.
Verfügbare Fläche
Lage und Verkehrsanbindung
Die Liegenschaft befindet sich am Plärrer mit sehr guter Sichtbarkeit.
- Flughafen, Nürnberg, Fahrzeit: 20 min
- Bundesautobahn, A 73, Fahrzeit: 5 min
- Bus, Bushaltestelle Plärrer Buslinien 84, Gehzeit: 2 min
Ihr Kontakt

Frank Kraus
Ihr Kontakt


