Büros
ID M2433Provisionsfrei
Aktualisiert
Büroimmobilie - München, Berg am Laim - M2433
Berg am Laim, 81671, München, Bayern
33 € / m²
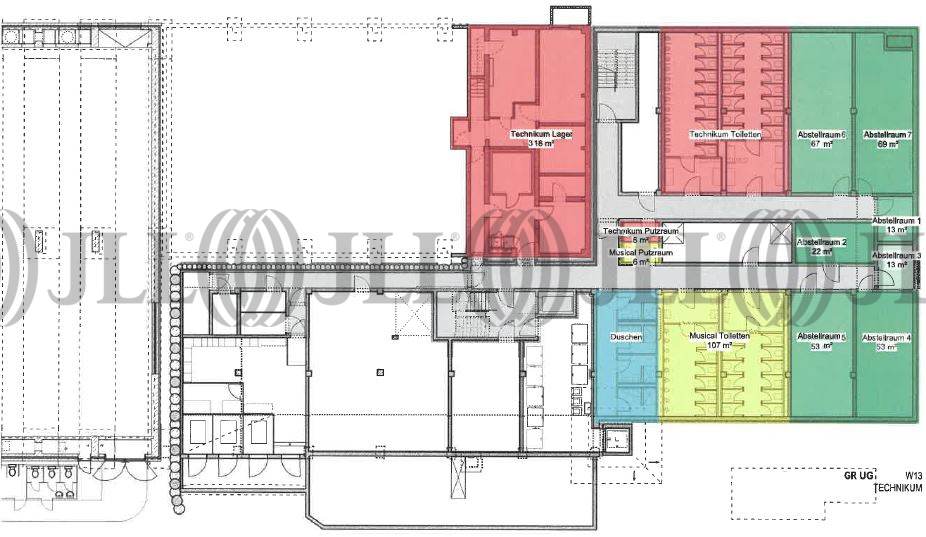
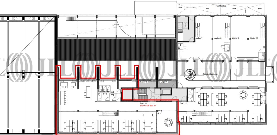
- Fläche617 - 1.509 m²
- VerfügbarkeitSofort
- Objekt
- Ausstattung
- Lage und Verkehrsanbindung
- Grundrisse
- Exposé herunterladen
- Ihr Kontakt
- Anfrage senden
Objekt
Bei der Raumgestaltung innen sind Ihnen keine Grenzen gesetzt. Jede Mieteinheit hat maximale Flexibilität in der Raumeinteilung. Hohe Decken mit eingezogenen Galerien lassen variable Anordnungen zu. Veränderbare Grundrisse und Zwischengeschosse ermöglichen sogar Raum-in-Raum-Lösungen im WERK13. Äußerlich bildet das Gebäude eine Einheit mit dem WERK7. Die Architektur des Gesamtkomplexes spiegelt die industriell geprägte Historie des umliegenden Geländes wider. Der Neubau WERK13 lehnt sich an das WERK7 an und integriert zudem gekonnt die bestehende Veranstaltungshalle Technikum in das Ensemble. Architektonisches Herzstück des Hauses ist die gemeinschaftlich genutzte Kranhalle, die den kreativen Nutzungsmix des WERK13 zusammenführt und intensiv erlebbar macht.
Zertifizierungen
Energieausweis
Für diese Liegenschaft liegt ein Bedarfsausweis vom 19.09.2019 vom Eigentümer/Vermieter vor. Die wesentlichen Energieträger der Liegenschaft sind Nah-/Fernwärme, KWK, fossiler Brennstoff, Strom-Mix, Fernkälte. Der Endenergiebedarf Strom beträgt 23.00,00 kWh/(m²*a). Der Endenergiebedarf Wärme beträgt 107.00,00 kWh/(m²*a).Verfügbare Fläche
Lage und Verkehrsanbindung
Mitten im Werksviertel verortet, zwischen den Stadtteilen Haidhausen und Berg am Laim, profitiert das WERK13 im Münchner Osten von einem lebendigen Umfeld. Arbeitswelten, Kultureinrichtungen, Wohnhäuser, Geschäfte, Grünflächen: Das stetig wachsende Werksviertel verbindet Arbeit, Wohnen und Leben in einzigartiger Weise. Dank der direkten Nähe zum Ostbahnhof und dem Mittleren Ring garantiert das Quartier eine hervorragende Verkehrsanbindung und bequeme Anfahrtsmöglichkeiten für Kunden und Besucher – ob mit Bahn, Bus, Auto, Fahrrad oder auch zu Fuß. Das historische Stadtzentrum erreicht man vom Werksviertel-Mitte aus in nur zehn Minuten. Bis zum Hauptbahnhof sind es lediglich wenige Minuten mehr. Und in nicht einmal 30 Minuten erreicht man mit der S-Bahn den Münchner Flughafen. Wobei: Wer einmal da ist, der will ohnehin nicht mehr aus dem Werksviertel-Mitte weg.
- Flughafen, München, Fahrzeit: 36 min
- Bundesautobahn, A 94, Fahrzeit: 7 min
- Bundesautobahn, A 8, Fahrzeit: 6 min
- Hauptbahnhof, München, Fahrzeit: 20 min
- U-Bahn, Ostbahnhof, U5, Gehzeit: 6 min
- Bus, Kustermannpark, Buslinien 54, 55, 145, 155, Gehzeit: 8 min
Ihr Kontakt

Tobias Schneider
Ihr Kontakt











