Büros
ID M2297Provisionsfrei
Büroimmobilie - München, Aubing - M2297
Aubing, 81249, München, Bayern
18,90 € / m²
- Fläche891 m²
- VerfügbarkeitAuf Anfrage
- Objekt
- Ausstattung
- Lage und Verkehrsanbindung
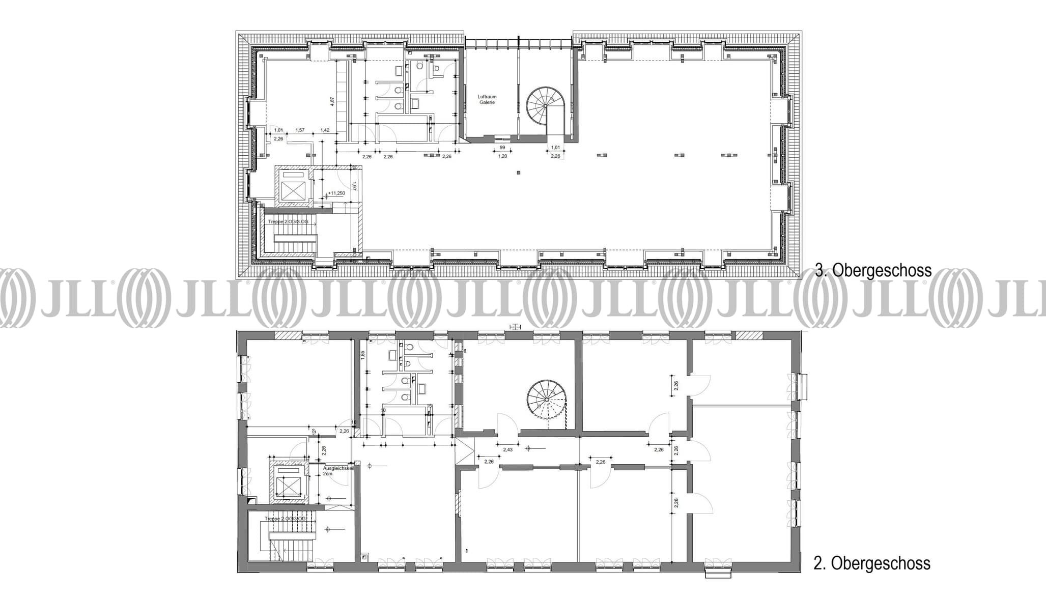
- Grundriss
- Exposé herunterladen
- Ihr Kontakt
- Anfrage senden
Objekt
Auf dem Gelände des ehemaligen Ausbesserungswerkes der Deutschen Bahn AG entsteht mit dem „TriebWerk“ ein besonderer Büro-, Gewerbe- und Dienstleistungspark mit einzigartigem Industrie-Charme. Das Areal aus denkmalgeschützten Backsteingebäuden und Hallen ist vollständig modernisiert und wird behutsam mit modernen Neubauten ergänzt. Durch die großzügigen Grünflächen unterteilt sich das Areal in zwei jeweils campusartige Cluster (Nord und Süd) in denen Nutzer unterschiedlichste Flächen, zugeschnitten auf Ihre Bedürfnisse finden.
Verfügbare Fläche
Lage und Verkehrsanbindung
Das ehemalige Ausbesserungswerk der Deutschen Bahn AG liegt im Westen von München im Stadtteil Neuaubing.
- Flughafen, München, Fahrzeit: 28 min
- Bundesautobahn, A 8, Fahrzeit: 6 min
- Bundesautobahn, A 96, Fahrzeit: 4 min
- Bundesautobahn, A 99, Fahrzeit: 2 min
- Bus, Bushaltestelle Hans-Steinkohl-Straße Buslinien 143, Gehzeit: 5 min
Ihr Kontakt

Tobias Kropp
Ihr Kontakt

