Büros
ID M2282Provisionsfrei
Aktualisiert
Büroimmobilie - München, Haidhausen - M2282
Haidhausen, 81669, München, Bayern
29 € / m²
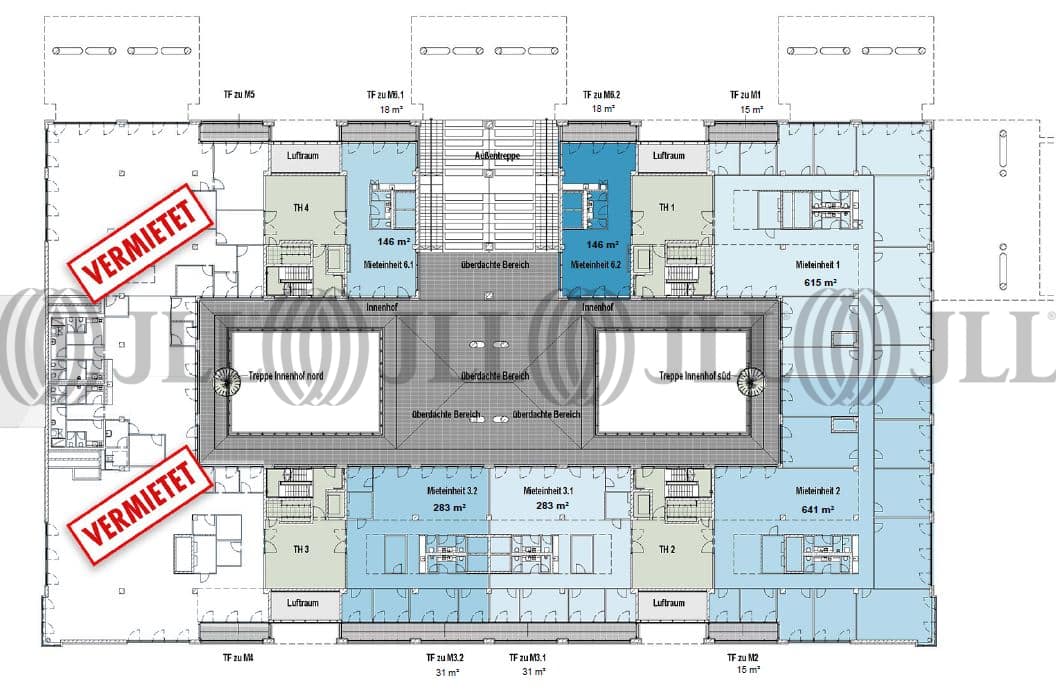
- Fläche143 - 6.065 m²
- Verfügbarkeit6 Monate ab Vertragsunterzeichnung
- Objekt
- Ausstattung
- Lage und Verkehrsanbindung
- Grundrisse
- Exposé herunterladen
- Ihr Kontakt
- Anfrage senden
Objekt
Bei dem Objekt handelt es sich um einen Neubau mit sehr moderner und loftartiger Architektur. Die Mietflächen sind flexibel gestaltbar, je nach Mieterwunsch; vom offenen Loft bis hin zu kleineren Offices.
Zertifizierungen
Energieausweis
LEED: GoldFür diese Liegenschaft liegt ein Bedarfsausweis vom 19.04.2022 vom Eigentümer/Vermieter vor. Der wesentliche Energieträger der Liegenschaft ist Strom. Endenergiebedarf: 75 kWh/(m²*a)
Verfügbare Fläche
Lage und Verkehrsanbindung
Das Objekt liegt südöstlich in der Innenstadt, direkt angrenzend an den Stadtteil Haidhausen, als Teil eines Campus-Areals. Über den Mittleren Ring sind alle umliegenden Autobahnen sowie der Flughafen München und die Neue Messe München schnell und bequem zu erreichen.
- Hauptbahnhof, München, Fahrzeit: 15 min
- S-Bahn, St.-Martin-Straße, Linien S3/S7, Gehzeit: 8 min
- U-Bahn, Karl-Preis-Platz, Linien U2/U7/U8, Gehzeit: 11 min
- Bus, Thomasiusplatz, Linien 54, 145, Gehzeit: 3 min
- Bundesautobahn, A 8, Fahrzeit: 6 min
- Bundesautobahn, A 94, Fahrzeit: 8 min
- Flughafen, München, Fahrzeit: 32 min
Ihr Kontakt

Tobias Kropp
Ihr Kontakt










