Büros
ID M2259Provisionsfrei
Büroimmobilie - Oberhaching - M2259
82041, Oberhaching, Bayern
13,50 € / m²
- Fläche168 - 1.300 m²
- VerfügbarkeitSofort
- Objekt
- Ausstattung
- Lage und Verkehrsanbindung
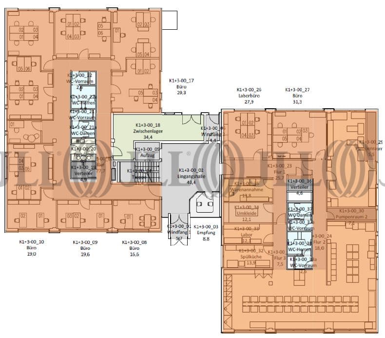
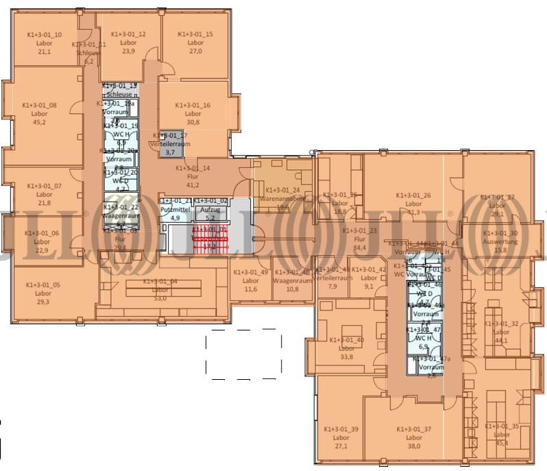
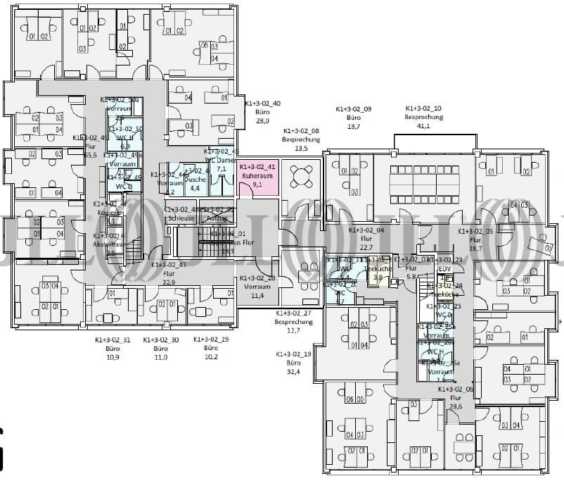
- Grundrisse
- Exposé herunterladen
- Ihr Kontakt
- Anfrage senden
Objekt
Das 5-geschossige Gebäude (UG, EG, 1. OG, 2. OG und DG) wurde im Jahre 1993 von einem lokalen Bauträger fertiggestellt. Aufgrund des geplanten und erfolgten Eigenbedarfs legte man großen Wert auf die Qualität des Gebäudes und der Flächen. Dies spiegelt sich unter anderem im Stahlbeton der Außen- und tragenden Innenwände, in der gedämmten Dachkonstruktion aus Holz und Ziegel, in der Fassade – welche partiell aus Natursteinelementen besteht und über einen Vollwärmeschutz verfügt – und in den Aluminiumelementen der Stützenverkleidungen und Fenstern wider. Nach Auszug des Bauträgers einige Jahre später wurde das Gebäude fortan von unterschiedlichen Unternehmen zur Miete genutzt und bietet mittlerweile einen spannenden Flächenmix aus Büro-, Labor- und Lagerflächen. Demnach ist es insbesondere für Life-Science-Unternehmen äußerst attraktiv, was durch die Nutzung des aktuellen Mieters unterstrichen wird. Eine anderweitige oder klassische Büronutzung ist aber auch möglich. Während sich im Erd- und 1. Obergeschoss hauptsächlich Laborflächen befinden, sind das 2. Ober- und Dachgeschoss durch Büroanteil geprägt. Im Untergeschoss befinden sich derzeit ausschließlich Lager- und Sozialflächen (u.a. eine Kantine). Alle Etagen sind über das Treppenhaus und einen Aufzug miteinander verbunden. Daher ist eine Anmietung als single tenant des ganzen Gebäudes, aber auch einzelner Geschosse oder der beiden Flügel (West und Ost) separat möglich. Die technischen Eigenschaften des Gebäudes sind entsprechend auf die laborlastige Nutzung ausgelegt:
- Bodentraglast: 5 kN/m² (500 kg/m²) in allen Geschossen
- Belüftung Laborflächen (m³/h): Zu-/Abluft 8.300; vorkonditioniert; Baujahr 2016
- Sicherheitsstufen Laborflächen: S1 und Bio2 von der Behörde für den aktuellen Mieter genehmigt
- Verfügbare Gase: Gasleitungen über 4 getrennte Leitungssysteme für Stickstoff, Kohlenstoffdioxid und ggf. Sauerstoff vorhanden
- Wasseranschlüsse: Wasserenthärtungsanlage (Salz) und 2 Reinstwasseranlagen vorhanden
- Laborinventar: festinstallierte Labormöbel, Hängeschränke und Laborabzüge können übernommen werden. Ebenso die hochwertige Laborzu- und Abluftanlage
- Nachhaltigkeitszertifikat nach BREEAM mit dem Gütesiegel „Gut“ aktuell in Planung
- Bodentraglast: 5 kN/m² (500 kg/m²) in allen Geschossen
- Belüftung Laborflächen (m³/h): Zu-/Abluft 8.300; vorkonditioniert; Baujahr 2016
- Sicherheitsstufen Laborflächen: S1 und Bio2 von der Behörde für den aktuellen Mieter genehmigt
- Verfügbare Gase: Gasleitungen über 4 getrennte Leitungssysteme für Stickstoff, Kohlenstoffdioxid und ggf. Sauerstoff vorhanden
- Wasseranschlüsse: Wasserenthärtungsanlage (Salz) und 2 Reinstwasseranlagen vorhanden
- Laborinventar: festinstallierte Labormöbel, Hängeschränke und Laborabzüge können übernommen werden. Ebenso die hochwertige Laborzu- und Abluftanlage
- Nachhaltigkeitszertifikat nach BREEAM mit dem Gütesiegel „Gut“ aktuell in Planung
Zertifizierungen
Energieausweis
BREEAM: GoodFür diese Liegenschaft liegt ein Verbrauchsausweis vom 20.10.2023 vom Eigentümer/Vermieter vor. Die wesentlichen Energieträger der Liegenschaft sind Fernwärme, Strom. Der Endenergieverbrauch Strom beträgt 292.00 kWh/(m²*a). Der Endenergieverbrauch Wärme beträgt 86.00 kWh/(m²*a).
Verfügbare Fläche
Lage und Verkehrsanbindung
Das Objekt ist in Oberhaching, ca. 10 km südlich von München, gelegen. Die Haltestelle „Furth“ der S-Bahn-Linien S3 und S7 ist nur wenige Gehminuten vom Objekt entfernt. Über die Autobahn A 995 (Ostumgehung), erreicht man zügig die Innenstadt, die Autobahnen A 8 Richtung Salzburg, A 9 Richtung Nürnberg sowie den Flughafen München und das Messegelände München Riem. Geschäfte des täglichen Bedarfs, Hotels und Restaurants befinden sich in der näheren Umgebung und sind fußläufig schnell erreichbar.
- Flughafen, München, Fahrzeit: 40 min
- Bundesautobahn, A 995, Fahrzeit: 4 min
- Bundesautobahn, A 8, Fahrzeit: 7 min
- Hauptbahnhof, München, Fahrzeit: 25 min
- U-Bahn, Furth (b. Deisenhofen), Linien S3/S7, Gehzeit: 7 min
- Bus, Furt, Linie 227, Gehzeit: 4 min
Ihr Kontakt

Nicolai Reichert
Ihr Kontakt








