Büros
ID M2257Provisionsfrei
Büroimmobilie - München, Schwabing-Nord - Alte Heide - M2257
Schwabing-Nord - Alte Heide, 80807, München, Bayern
19 € - 21 € / m²
- Fläche350 - 6.530 m²
- VerfügbarkeitAuf Anfrage
- Objekt
- Ausstattung
- Lage und Verkehrsanbindung
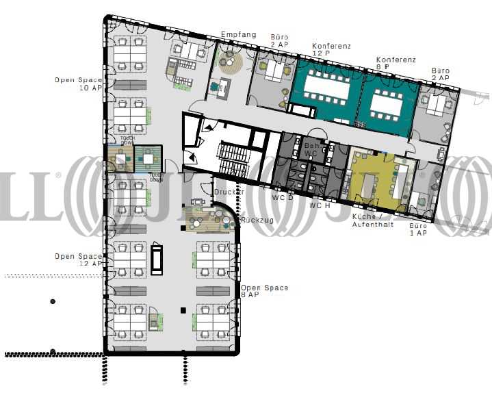
- Grundrisse
- Exposé herunterladen
- Ihr Kontakt
- Anfrage senden
Objekt
Der moderne NuOffice Komplex besteht aus drei Bauabschnitten, welches in Zusammenarbeit mit dem Fraunhofer Institut und der TU München realisiert wurde. Das NuOffice III wurde in 2014 fertiggestellt. Alle drei Bauteile haben eine in Holzoptik verkleidete Fassade und einen attraktiven Innenhof. Die Büroimmobilie zeichnet sich durch eine überzeugende Ökobilanz mit erstklassiger LEED Zertifizierung und einer hohen Flächeneffizienz aus.
Zertifizierungen
Energieausweis
Für diese Liegenschaft liegt ein Bedarfsausweis vom 04.08.2016 vom Eigentümer/Vermieter vor. Der wesentliche Energieträger der Liegenschaft ist Fernwärme. Endenergiebedarf: 93 kWh/(m²*a)Verfügbare Fläche
Lage und Verkehrsanbindung
Das NuOffice III liegt angrenzend im nördlichen Teil der Parkstadt Schwabing. In wenigen Minuten erreicht man mit dem Auto die Münchener Innenstadt. Die A9 ist in ca. 2 Fahrminuten zu erreichen. Die Tram (Linie 23) und der Bus (Linie 50) sind in 2-4 Gehminuten erreichbar. Hotels sowie ein großes Einkaufscenter mit allen Geschäften des täglichen Bedarfs sind in unmittelbarer Nähe zu finden.
- Hauptbahnhof, München, Fahrzeit: 15 min
- Straßenbahn/Tram, Domagkstraße, Linie 23, Gehzeit: 2 min
- Bus, Domagkstraße Linien 50, 150, Gehzeit: 4 min
- Bundesautobahn, A 9, Fahrzeit: 2 min
- Bundesautobahn, A 99, Fahrzeit: 8 min
- Flughafen, München, Fahrzeit: 24 min
Ihr Kontakt

Nicolas Salbeck
Ihr Kontakt















