Büros
ID M2237Provisionsfrei
Aktualisiert
Büroimmobilie - München, Ramersdorf - M2237
Ramersdorf, 81669, München, Bayern
21 € / m²
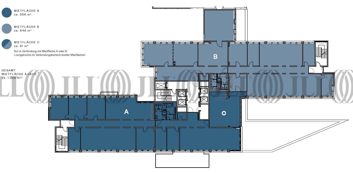
- Fläche556 - 1.845 m²
- VerfügbarkeitSofort
- Objekt
- Ausstattung
- Lage und Verkehrsanbindung
- Grundrisse
- Exposé herunterladen
- Ihr Kontakt
- Anfrage senden
Objekt
Der Bestandsbau wurde bis Mitte 2019 komplett saniert. Auf insgesamt zehn Ebenen und mit einem rundum Ausblick auf die Alpen werden flexible Raumkonzepte nach Mieterwunsch realisiert. Eine großzügige hauseigene Tiefgarage rundet das Angebot ab. Das Gebäude besteht aus zwei spiegelsymmetrischen Flügeln, die am Erschliessungskern miteinander verbunden sind. Inneren sorgen großformatige Fenster für ein offenes Raumgefühl.
Verfügbare Fläche
Lage und Verkehrsanbindung
Das Objekt ist im Münchener Osten gelegen, mit direkter Anbindung an den Ostbahnhof. Über den Mittleren Ring sind alle umliegenden Autobahnen und der Flughafen München schnell und bequem zu erreichen. Dienstleister des täglichen Bedarfs befinden sich in der Nähe.
- Hauptbahnhof, München Hauptbahnhof, Fahrzeit: 10 min
- S-Bahn, St.-Martin-Straße, Gehzeit: 6 min
- Bus, St.-Martin-Straße, Linie 54, Gehzeit: 3 min
- Bundesautobahn, A 8, Fahrzeit: 10 min
- Bundesautobahn, A 94, Fahrzeit: 10 min
- Flughafen, München, Fahrzeit: 40 min
Ihr Kontakt

Nicolas Salbeck
Ihr Kontakt
Marktinformationen
Mietmarkt
Ramersdorf, München
Gew. Ø-Miete
21 € / m²
siehe 0 passende MietobjekteErfahren Sie mehr* Durchschnittspreis auf Grundlage historischer Transaktionen.






