
Büros
ID M2193Provisionsfrei
Aktualisiert
Büroimmobilie - München, Perlach - M2193
Perlach, 81737, München, Bayern
15 € / m²
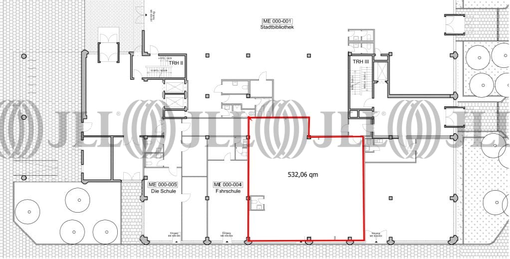
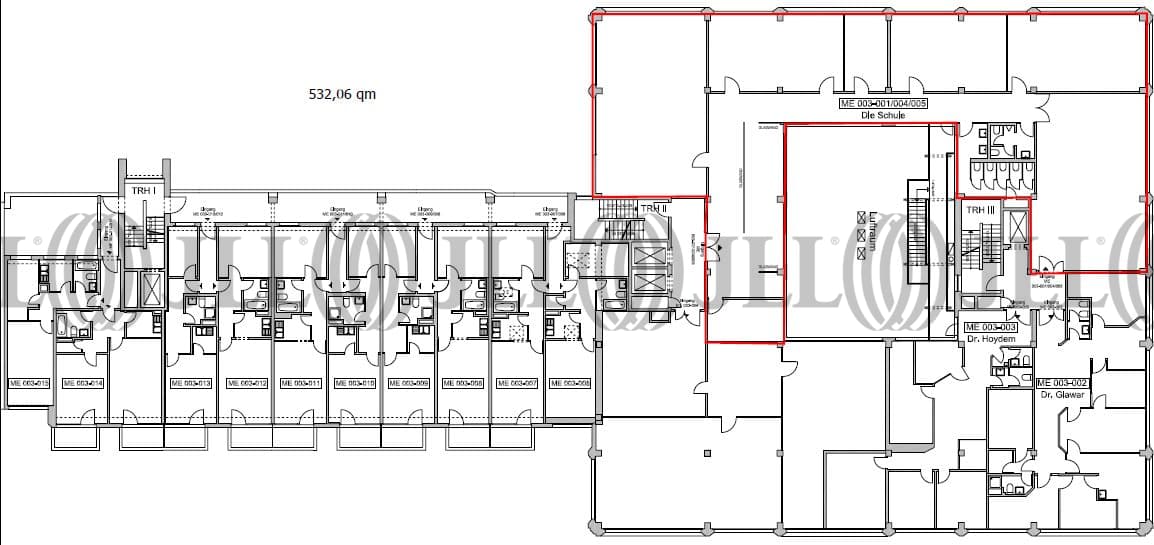
- Fläche338 m²
- VerfügbarkeitJuni 2026
- Objekt
- Ausstattung
- Lage und Verkehrsanbindung
- Grundriss
- Exposé herunterladen
- Ihr Kontakt
- Anfrage senden
Zertifizierungen
Energieausweis
Für diese Liegenschaft liegt ein Verbrauchsausweis vom 2020-12-08 vom Eigentümer/Vermieter vor. Die wesentlichen Energieträger der Liegenschaft sind Strom,Fernwärme,Nahwärme. Der Endenergieverbrauch Strom beträgt 26.00 kWh/(m²*a). Der Endenergieverbrauch Wärme beträgt 74.00 kWh/(m²*a).Verfügbare Fläche
Lage und Verkehrsanbindung
Das Objekt ist im Südosten Münchens, im Stadtteil „Neuperlach“ gelegen. Es befindet sich direkt neben dem Einkaufszentrum PEP. Die U-Bahn-Station „Neuperlach-Zentrum“ der Linie U5 sowie die Bus-Haltestellen der Linien 55/139/192/199/196/197 befinden sich in unmittelbarer Nähe. Die Autobahnen A8 (München-Salzburg) und A99 (Autobahnring) sind schnell und bequem zu erreichen. Gastronomie und Einkaufsmöglichkeiten für den täglichen Bedarf werden reichlich geboten.
- Flughafen, München, Fahrzeit: 25 min
- Bundesautobahn, A 8, Fahrzeit: 5 min
- Bus, Neuperlach Zentrum, Linien 139,199, Gehzeit: 7 min
- U-Bahn, Neuperlach Zentrum, Linie U5, Gehzeit: 2 min
- Hauptbahnhof, München, Fahrzeit: 26 min
Ihr Kontakt

Nicolas Harmuth
Ihr Kontakt