Büros
ID M2168Provisionsfrei
Aktualisiert
Büroimmobilie - München, Schwabing-Nord - Alte Heide - M2168
Schwabing-Nord - Alte Heide, 80807, München, Bayern
20 € / m²
- Fläche211 - 18.253 m²
- VerfügbarkeitSofort
- Objekt
- Ausstattung
- Lage und Verkehrsanbindung
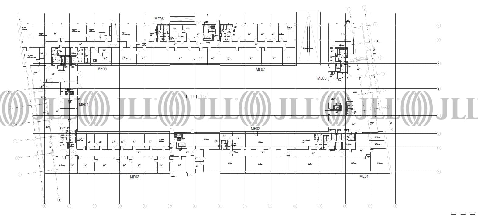
- Grundrisse
- Exposé herunterladen
- Ihr Kontakt
- Anfrage senden
Objekt
Das 2003 erbaute Bürogebäude verfügt über eine Vollglasfassade und ist um einen begrünten Innenhof in 2-hüftiger Bauweise angelegt. Über vier separate Eingangsbereiche mit Natursteinböden werden die oberirdischen Etagen erschlossen. In den kurzen Gebäudelängen befindet sich jeweils ein großes Treppenhaus mit je 2 Aufzugsanlagen, während sich in den beiden langen Gebäudeteilen jeweils mittig gegenüberliegend ein Treppenhaus mit einer Aufzugkabine befindet. Die Raumaufteilung der einzelnen Etagen ist variabel gestaltbar.
Zertifizierungen
Energieausweis
Für diese Liegenschaft liegt ein Bedarfsausweis vom 04.03.2020 vom Eigentümer/Vermieter vor. Die wesentlichen Energieträger der Liegenschaft sind Heizwerk, fossil, Strom. Der Endenergiebedarf Strom beträgt 26,9 kWh/(m²*a). Der Endenergiebedarf Wärme beträgt 110,7 kWh/(m²*a).Verfügbare Fläche
Lage und Verkehrsanbindung
Das Objekt ist im Münchner Norden, in der Parkstadt Schwabing gelegen. Über den Mittleren Ring sind sowohl die Münchener Innenstadt als auch die Neue Messe München schnell und bequem zu erreichen. Der Englische Garten ist ca. 5 Gehminuten entfernt. Mit dem nahegelegenen „Parkstadtcenter“ bieten sich Einkaufsmöglichkeiten, begleitet von Restaurants, Hotels, Kantinen und einem Fitnessstudio.
- Flughafen, München, Fahrzeit: 30 min
- Bundesautobahn, A 9, Fahrzeit: 3 min
- Bundesautobahn, A 99, Fahrzeit: 7 min
- Bus, Gertrud-Grunow-Straße, Linie 5, Gehzeit: 1 min
- Hauptbahnhof, München, Fahrzeit: 15 min
- U-Bahn, Alte Heide, Gehzeit: 10 min
Ihr Kontakt

Nicolai Reichert
Ihr Kontakt


