Büros
ID M2166Provisionsfrei
Aktualisiert
Büroimmobilie - München, Maxvorstadt - M2166
Maxvorstadt, 80335, München, Bayern
24 € / m²
- Fläche164 m²
- VerfügbarkeitSofort
- Objekt
- Ausstattung
- Lage und Verkehrsanbindung
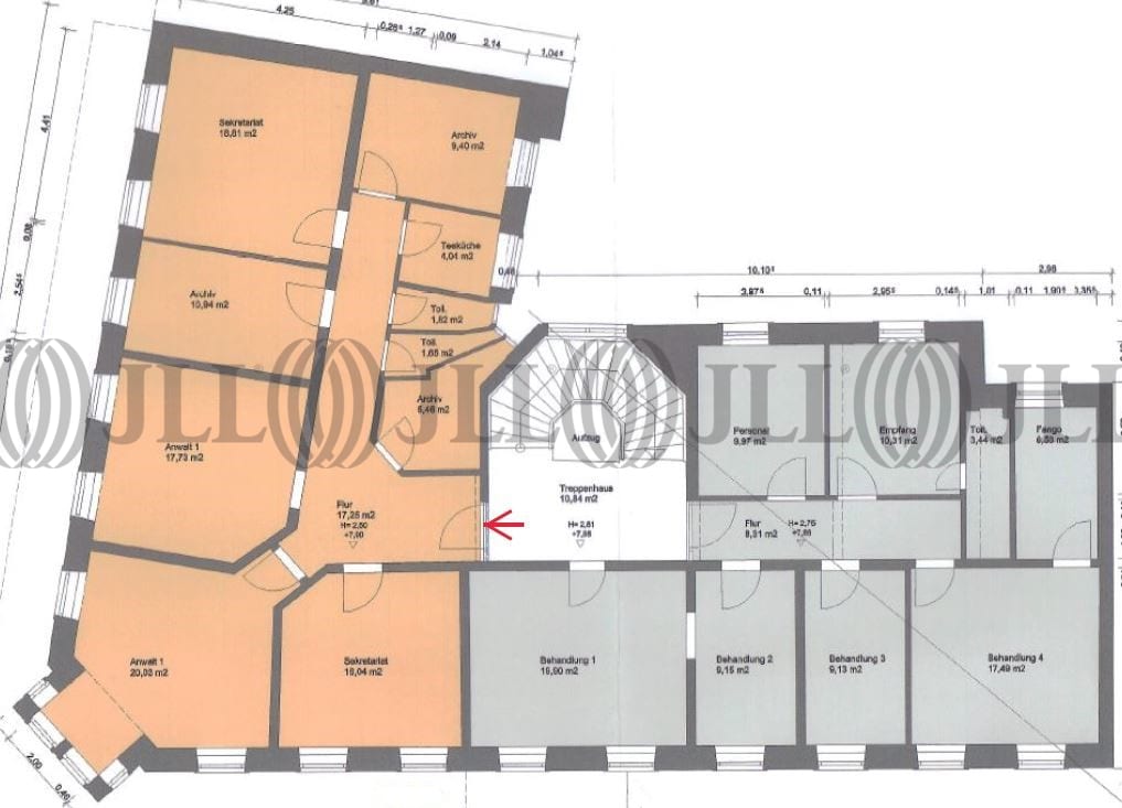
- Grundriss
- Exposé herunterladen
- Ihr Kontakt
- Anfrage senden
Zertifizierungen
Energieausweis
Für diese Liegenschaft liegt ein Verbrauchsausweis vom 25.07.2024 vom Eigentümer/Vermieter vor. Die wesentlichen Energieträger der Liegenschaft sind Fernwärme, Strom. Der Endenergieverbrauch Strom beträgt 84.20 kWh/(m²*a). Der Endenergieverbrauch Wärme beträgt 100.60 kWh/(m²*a).Verfügbare Fläche
Lage und Verkehrsanbindung
Das Objekt ist zentral in der Münchener Innenstadt gelegen, in unmittelbarer Nähe vom Hauptbahnhof und in nur 2 Minuten an der U/-S-Bahn Haltestelle. Über den Mittleren Ring sind alle umliegenden Autobahnen sowie der Flughafen München und die Neue Messe München schnell und bequem zu erreichen. Alle Geschäfte des täglichen Bedarfs sowie Restaurants, Ärzte, Banken, Postamt und Hotels befinden sich in unmittelbarer Nähe.
- Flughafen, München, Fahrzeit: 38 min
- Bundesautobahn, A 96, Fahrzeit: 10 min
- Bundesautobahn, A 95, Fahrzeit: 12 min
- Bus, Hauptbahnhof Nord, Linien 68, 100, Gehzeit: 1 min
- Hauptbahnhof, München, Gehzeit: 2 min
Ihr Kontakt

Tobias Schneider
Ihr Kontakt
Marktinformationen
Mietmarkt
Maxvorstadt, München
Gew. Ø-Miete
24 € / m²
siehe 24 passende MietobjekteErfahren Sie mehr* Durchschnittspreis auf Grundlage historischer Transaktionen.











