Büros
ID M2087Provisionsfrei
Büroimmobilie - Nürnberg, Altstadt und Engere Innenstadt - M2087
Altstadt und Engere Innenstadt, 90443, Nürnberg, Bayern
Kontaktieren Sie uns für den Preis
- Fläche144 - 1.261 m²
- VerfügbarkeitAuf Anfrage
- Objekt
- Ausstattung
- Lage und Verkehrsanbindung
- Grundrisse
- Exposé herunterladen
- Ihr Kontakt
- Anfrage senden
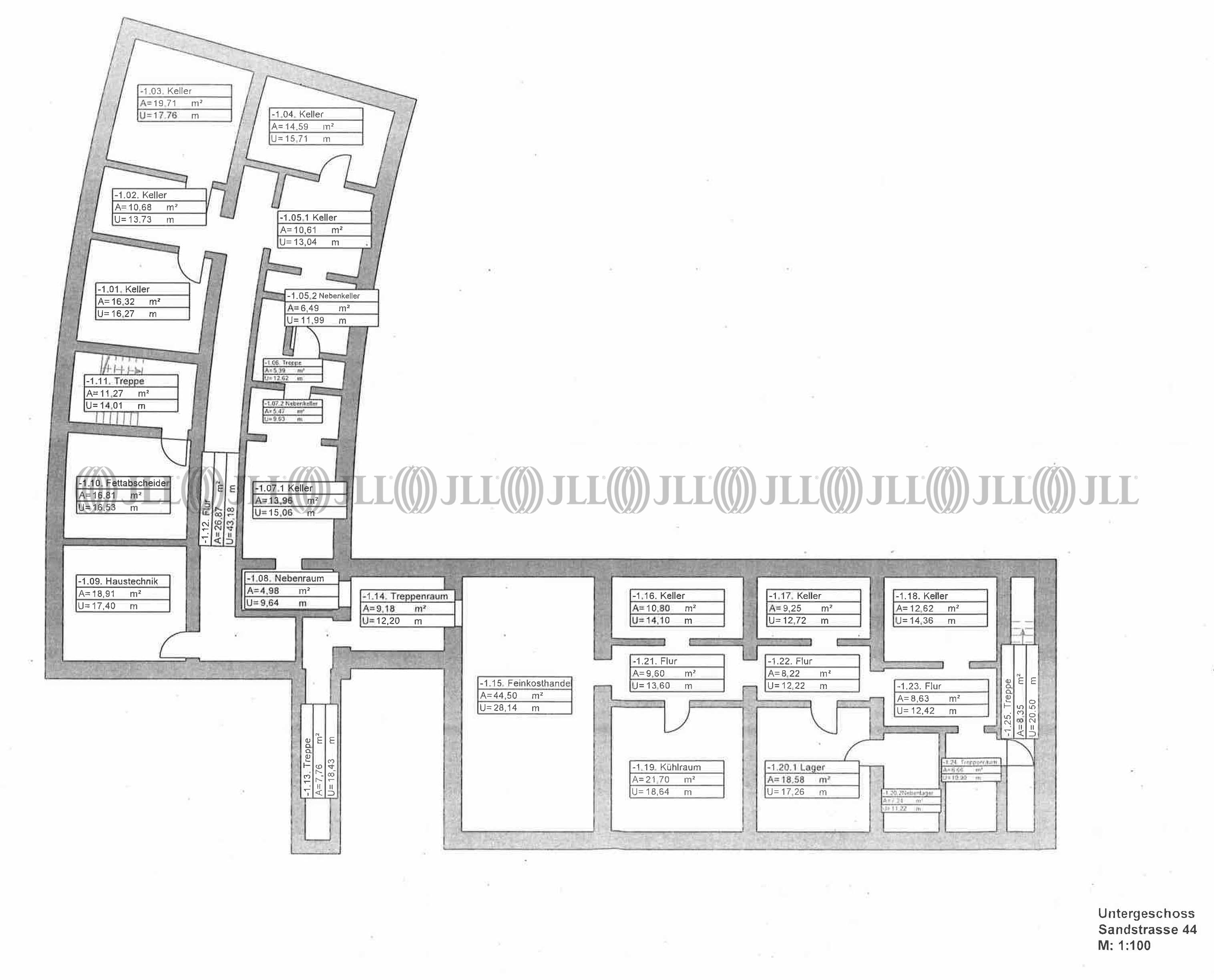
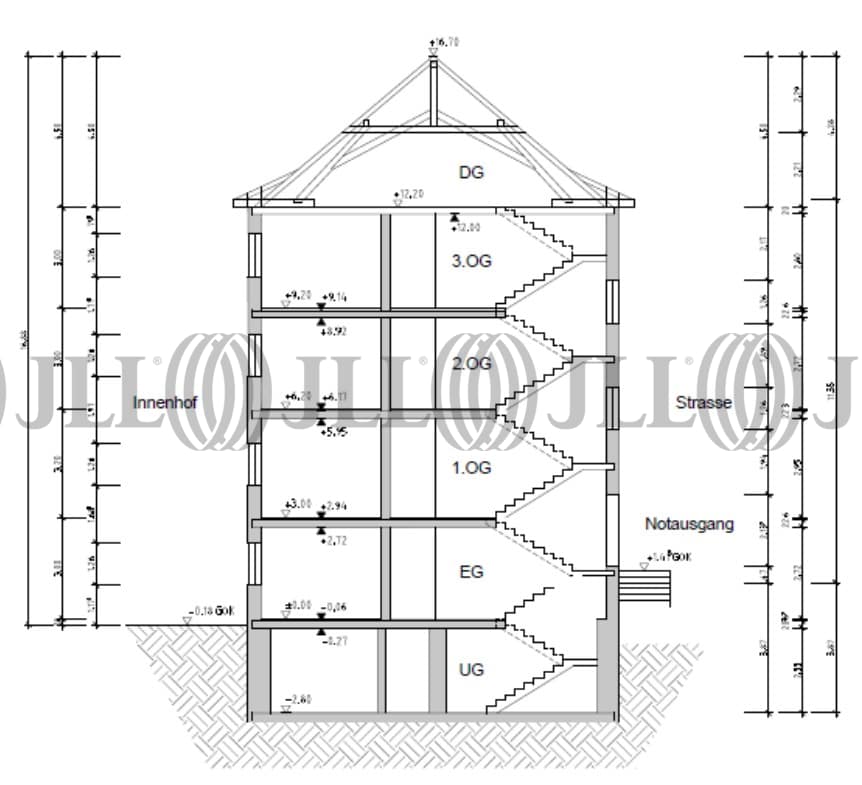
Objekt
Es handelt sich um ein rd. 1.400 m² großes Eckgrundstück, welches von Süd nach Nordost durch die Sandstraße eingerahmt wird und im Süden sowie im Westen durch die Gleisanlagen der Deutschen Bahn begrenzt wird. Es existieren zwei Bestandsgebäude auf dem Grundstück. Zum einem befindet sich ein noch verfügbarer Lokschuppen mit ca. 8m Deckenhöhen und ein ehem. Restaurant sowie ein geplantes und genehmigtes, nicht ausgeführtes Hotel mit ca. 24 Zimmern (ehem. Bürogebäude der Deutschen Bahn) auf dem Grundstück. Das Gebäude eignet sich auch hervorragend als solitäres Bürogebäude. Das Restaurant besitzt eine Gastro-Außenfläche sowie Ausbaureserven über ein komplettes Geschoss. Parkplätze stehen ausreichend im Parkhaus des Staatstheaters / Schauspielhaus vis-a-vis zur Verfügung.
Verfügbare Fläche
Lage und Verkehrsanbindung
Das Objekt befindet sich in zentraler Lage und verfügt durch die hervorragende Lage über eine ausgezeichnete Infrastruktur. So ist die Anbindung mit dem PKW ebenso optimal wie mit dem öffentlichen Nahverkehr (U-Bahnhof ist 3 Minuten entfernt und der Hauptbahnhof ist in ca. 5 Minuten zu Fuß erreichbar). In direkter Nachbarschaft zum Nürnberger Hauptbahnhof und der Oper gelegen besticht diese Immobilie mit zentraler Lage, perfekter Verkehrsanbindung und der Möglichkeit verschiedenste Geschäftskonzepte zu verwirklichen.
- Flughafen, Nürnberg, Fahrzeit: 17 min
- Bundesautobahn, A 73, Fahrzeit: 4 min
- Bus, Bushaltestelle Opernhaus Buslinien N6, N7, N9, N10, Gehzeit: 5 min
- Hauptbahnhof, Nürnberg, Gehzeit: 5 min
Ihr Kontakt

Julia Schreiter
Ihr Kontakt









