Büros
ID M2045Büroimmobilie - Nürnberg, Südöstliche Außenstadt - M2045
Südöstliche Außenstadt, 90471, Nürnberg, Bayern
Provisionspflichtig: bei Anmietung 3 Netto-Monatsmieten zzgl. gesetzlicher Umsatzsteuer.** der Wert kann je nach Vertragslaufzeit variieren.
7 € / m²
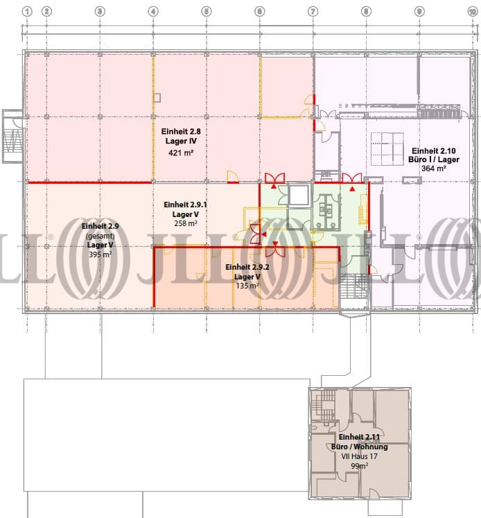
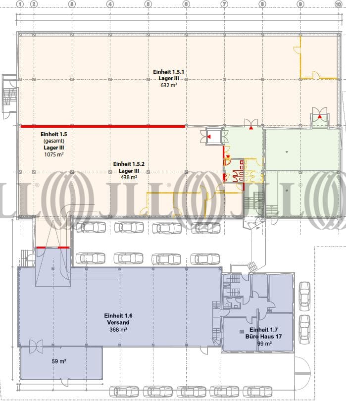
- Fläche99 - 1.213 m²
- VerfügbarkeitAuf Anfrage
- Objekt
- Ausstattung
- Lage und Verkehrsanbindung
- Grundrisse
- Exposé herunterladen
- Ihr Kontakt
- Anfrage senden
Objekt
Im Erdgeschoss sowie im Untergeschoss des Gebäudes befinden sich Lager und Produktion sowie die Versandabteilung mit überdachter LKW Zufahrt zum Be- und Entladen. Die Deckenhöhe beträgt in der Regel 3 Meter – 3,40 Meter. Eine hydraulische Aufzugsanlage, mittig im Gebäude, verbindet alle Geschosse miteinander. Im ersten und zweiten Obergeschoss des Gebäudes liegen die Büroräume der Firma. Repräsentative, klimatisierte Büro- und Besprechungsräume teilweise mit Außenterrassen sowie einen Showroom zur Präsentation der Produkte runden den hochwertigen Gesamteindruck des Gebäudes ab. Im Untergeschoss befindet sich eine Tiefgarage mit separater Zufahrt, Stellplätze um das Gebäude sind ebenfalls vorhanden.
Verfügbare Fläche
Lage und Verkehrsanbindung
Das Gewerbeanwesen liegt verkehrsgünstig in einem Gewerbegebiet, im Stadtteil Nürnberg-Langwasser. Die Lage bietet eine sehr gute Anbindung an das Nürnberger Hauptstraßennetz und die umliegenden Autobahnen. Die Autobahnauffahrt (Nürnberg-Fischbach) zu den Bundesautobahnen A3 und A9 in Richtung Würzburg – Regensburg oder München – Berlin ist in circa 5 Kilometern und nur wenigen Fahrminuten erreichbar. Eine Tankstelle befindet sich in der Nähe.
- Bundesautobahn, A 9, Fahrzeit: 8 min
- Bundesautobahn, A 6, Fahrzeit: 6 min
- Bundesautobahn, A 73, Fahrzeit: 7 min
- Bundesstraße, B 4, Fahrzeit: 4 min
- Bus, Bushaltestelle Nürnberg Langwasser Bad Buslinien 50, 56, 57, 96, Gehzeit: 3 min
Ihr Kontakt

Julia Schreiter
Ihr Kontakt









