Büros
ID M1990Premium JLL
Provisionsfrei
Büroimmobilie - München, Maxvorstadt - M1990
Maxvorstadt, 80636, München, Bayern
18,50 € / m²
- Fläche630 m²
- VerfügbarkeitAuf Anfrage
- Objekt
- Ausstattung
- Lage und Verkehrsanbindung
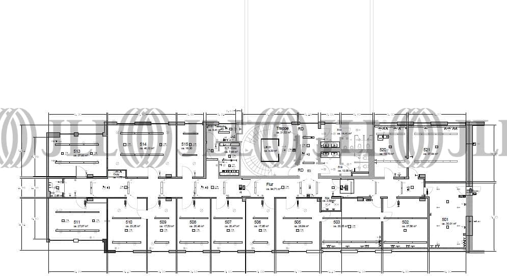
- Grundriss
- Exposé herunterladen
- Ihr Kontakt
- Anfrage senden
Objekt
Das mehrstöckige Bürohaus besticht von außen durch eine ansprechende und helle Fassade. Beim Betreten befindet man sich in einem hochwertigen Eingangsbereich der auf der rechten Seite einen Empfang beherbergt. Der Grundriss der Einheit unterteilt sich in zahlreiche Büroeinheiten und zwei große Besprechungsräume. Die gesamte Fläche bietet Platz für ca. 30 Mitarbeiter. Durch die hauseigene Tiefgarage sind selbst in dieser zentralen Lage 9 Tiefgaragenstellplätze verfügbar. Vollausgestattete Klimaanlagen stehen in den Besprechungsräumen zur Verfügung.
Zertifizierungen
Energieausweis
Für diese Liegenschaft liegt ein Verbrauchsausweis vom 2021-05-01 vom Eigentümer/Vermieter vor. Die wesentlichen Energieträger der Liegenschaft sind Strom,Fernwärme. Der Endenergieverbrauch Strom beträgt 38.90 kWh/(m²*a). Der Endenergieverbrauch Wärme beträgt 50.00 kWh/(m²*a).Verfügbare Fläche
Lage und Verkehrsanbindung
Die angebotene Bürofläche befindet sich im Westen Münchens. Die zentrale Lage zeichnet sich durch eine ideale Anbindung durch den ÖPNV und eine gute Erreichbarkeit mit dem Auto aus. Die bekannte Nymphenburger Straße befindet sich in der Nähe und beheimatet zahlreiche Geschäfte des täglichen Bedarfs, Gastronomien und auch einige Ladestationen für E-Autos.
- Hauptbahnhof, München, Fahrzeit: 5 min
- Hauptbahnhof, München, Gehzeit: 18 min
- U-Bahn, Maillinger Straße, Linien U1, U7, Gehzeit: 5 min
- Bus, Maillingerstraße, Linie 153, Gehzeit: 8 min
- Bundesautobahn, A 9, Fahrzeit: 15 min
- Bundesautobahn, A 96, Fahrzeit: 8 min
Ihr Kontakt

Nicolas Salbeck
Ihr Kontakt
Marktinformationen
Mietmarkt
Maxvorstadt, München
Gew. Ø-Miete
18,50 € / m²
siehe 24 passende MietobjekteErfahren Sie mehr* Durchschnittspreis auf Grundlage historischer Transaktionen.










