Büros
ID M1924Provisionsfrei
Aktualisiert
Büroimmobilie - München, Ramersdorf - M1924
Ramersdorf, 81541, München, Bayern
21,50 € / m²
- Fläche85 - 2.549 m²
- VerfügbarkeitSofort
- Objekt
- Ausstattung
- Lage und Verkehrsanbindung
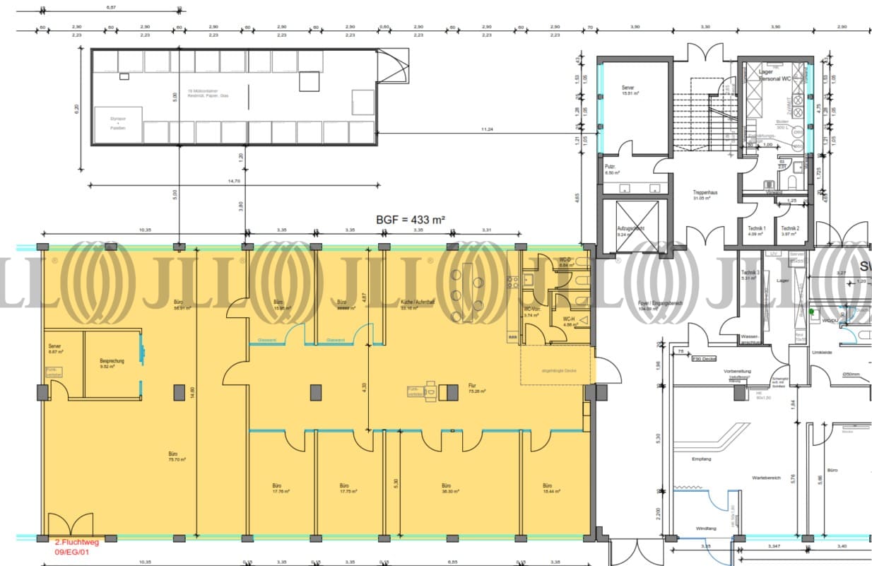
- Grundrisse
- Exposé herunterladen
- Ihr Kontakt
- Anfrage senden
Objekt
Die zeitlosen Büroflächen auf einem modernen und kreativen Campusgelände bieten ein gelungenes Gesamtkonzept, um den Mitarbeitern alles zu bieten, was in der aktuellen Arbeitswelt angesagt ist. Highlight ist der große Pool, welcher ein beliebter Treffpunkt bei Pausen und nach der Arbeit ist.
Zertifizierungen
Energieausweis
Für diese Liegenschaft liegt ein Bedarfsausweis vom 2022-05-30 vom Eigentümer/Vermieter vor. Die wesentlichen Energieträger der Liegenschaft sind Fernwärme,Strom. Der Endenergiebedarf Strom beträgt 31.10 kWh/(m²*a). Der Endenergiebedarf Wärme beträgt 122.50 kWh/(m²*a).Verfügbare Fläche
Lage und Verkehrsanbindung
Das Objekt liegt südöstlich in der Innenstadt, direkt angrenzend an den Stadtteil Haidhausen, als Teil eines Campus-Areals. Über den Mittleren Ring sind alle umliegenden Autobahnen sowie der Flughafen München und die Neue Messe München schnell und bequem zu erreichen.
- Flughafen, München, Fahrzeit: 33 min
- Bundesautobahn, A 8, Fahrzeit: 5 min
- Bundesautobahn, A 94, Fahrzeit: 7 min
- Bus, St.-Martin-Straße Ost, Linie 54, Gehzeit: 3 min
- S-Bahn, St.-Martin-Straße, Linien S2/S3/S7, Gehzeit: 6 min
- Hauptbahnhof, München, Fahrzeit: 12 min
Ihr Kontakt

Nicolas Harmuth
Ihr Kontakt
Marktinformationen
Mietmarkt
Ramersdorf, München
Gew. Ø-Miete
21,50 € / m²
siehe 0 passende MietobjekteErfahren Sie mehr* Durchschnittspreis auf Grundlage historischer Transaktionen.







