Büros
ID M1907Büroimmobilie - München, Johanneskirchen - M1907
Johanneskirchen, 81927, München, Bayern
Provisionspflichtig: bei Anmietung 3 Netto-Monatsmieten zzgl. gesetzlicher Umsatzsteuer.** der Wert kann je nach Vertragslaufzeit variieren.
21,89 € / m²
- Fläche140 m²
- VerfügbarkeitAuf Anfrage
- Objekt
- Ausstattung
- Lage und Verkehrsanbindung
- Grundriss
- Exposé herunterladen
- Ihr Kontakt
- Anfrage senden
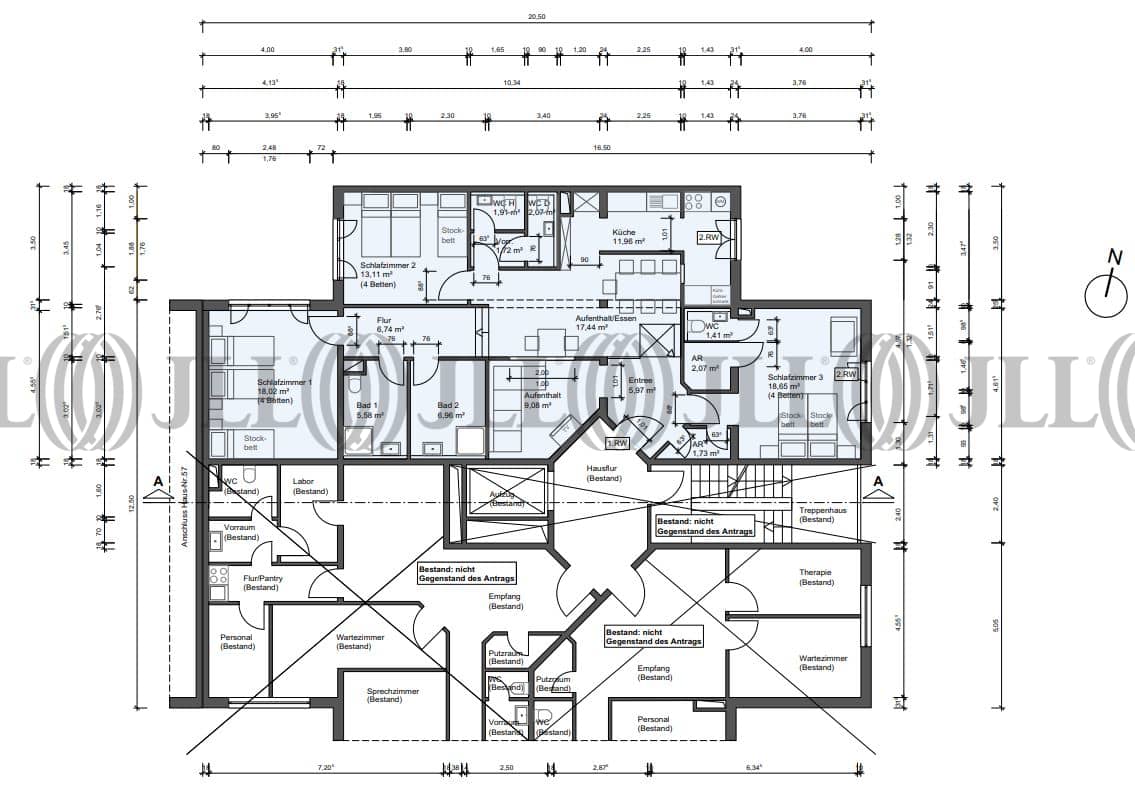
Objekt
Die angebotene Mietfläche befindet sich im 1. OG eines Ärztehauses mitten in Bogenhausen/Johanneskirchen. Im Gebäude sind bereits verschiedenste Praxisnutzer wie Allgemeinmediziner, Physiotherapeuten etc. ansässig. Die Fläche bietet 4 helle und großzügige Behandlungsräume, 4 WC´s sowie eine Dusche.
Zertifizierungen
Energieausweis
Für diese Liegenschaft liegt ein Verbrauchsausweis vom 24.10.2018 vom Eigentümer/Vermieter vor. Die wesentlichen Energieträger der Liegenschaft sind Fernwärme, Heizwerk, fossil, KWK, Nahwärme. Der Endenergieverbrauch Strom beträgt 0,00 kWh/(m²*a). Der Endenergieverbrauch Wärme beträgt 101,00 kWh/(m²*a).Verfügbare Fläche
Lage und Verkehrsanbindung
Das Objekt ist im Osten von München im Stadtteil Johanneskirchen gelegen. Die S-Bahn-Station „Johanneskirchen“ der Linie S8 ist nur wenige Minuten fußläufig entfernt und die Bush-Haltestelle Grimmeisenstraße steht direkt vor dem Objekt. Geschäfte des täglichen Bedarfs sind zahlreich in der näheren Umgebung vorhanden.
- S-Bahn, Johanneskirchen, Linie S8, Gehzeit: 10 min
- Bus, Grimmeisenstraße, Linie 154, Gehzeit: 1 min
- Bundesautobahn, A 9, Fahrzeit: 5 min
- Bundesautobahn, A 94, Fahrzeit: 6 min
- Flughafen, München, Fahrzeit: 25 min
Ihr Kontakt

Nicolas Salbeck
Ihr Kontakt








