Büros
ID M1881Premium JLL
Provisionsfrei
Büroimmobilie - München, Ramersdorf - M1881
Ramersdorf, 81541, München, Bayern
28,59 € / m²
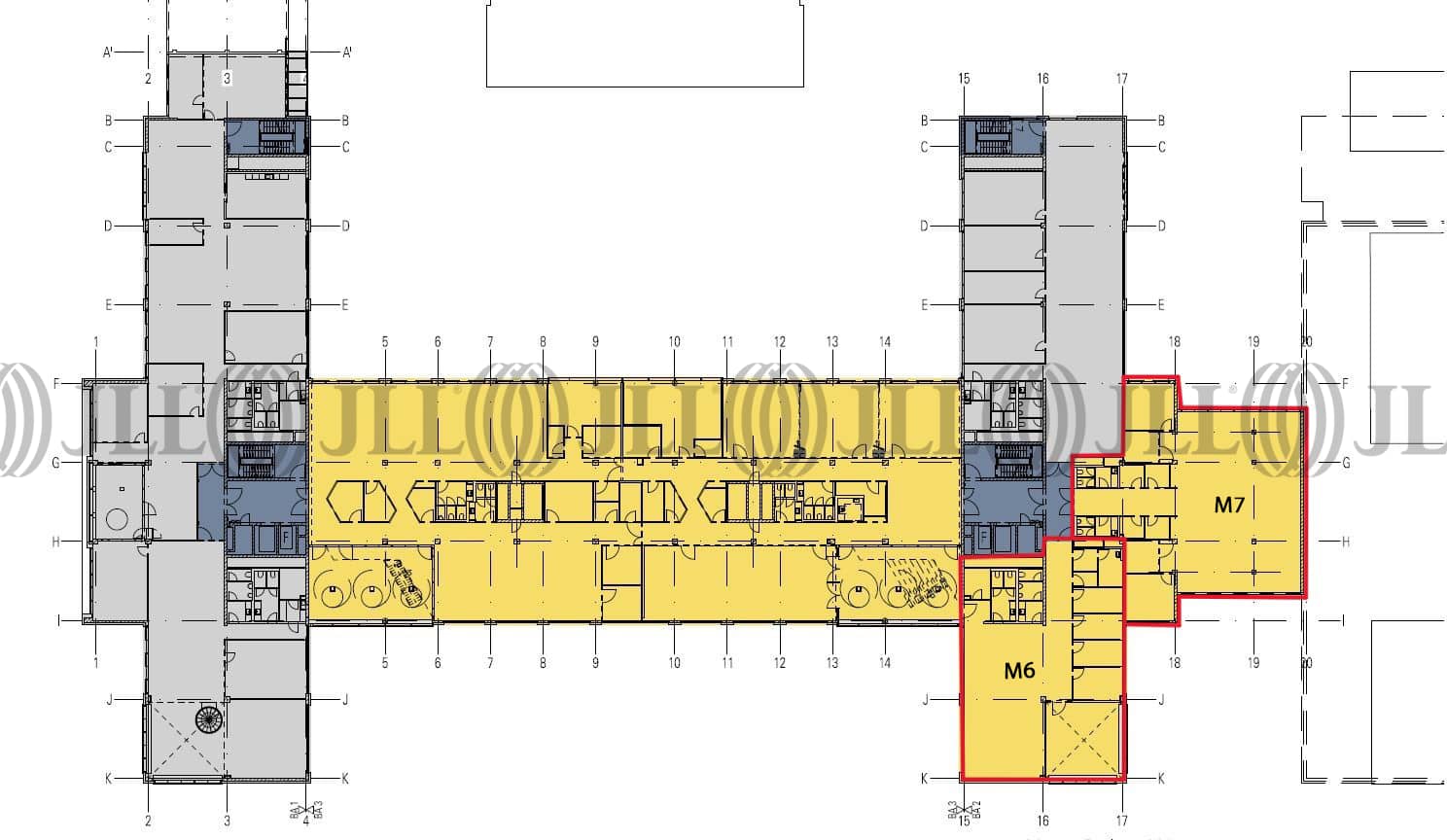
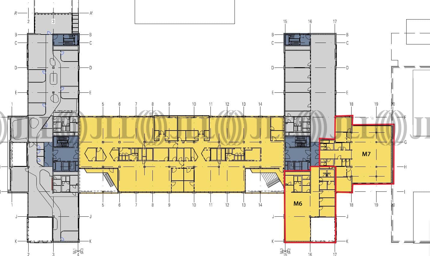
- Fläche339 - 766 m²
- VerfügbarkeitSofort
- Objekt
- Ausstattung
- Lage und Verkehrsanbindung
- Grundrisse
- Exposé herunterladen
- Ihr Kontakt
- Anfrage senden
Objekt
Die hier angebotene Bürofläche befindet sich auf dem Campus „Neue Balan“ und ist Teil der Neubau-Projektentwicklung des Geländes. Durch höchste Ausbauqualität gepaart mit einem nicht übertreffbaren Preis-/Leistungsverhältnis überzeugt die Fläche im direkten Vergleich. Mit ihrer sofortigen Verfügbarkeit und dem vorhandenen Mobiliar können sogar kurzfristigste Anmietwünsche realisiert werden. Abgerundet wird die Bürofläche durch unterschiedliche Expansionsmöglichkeiten im Gebäude und durch die vielfältigen Nahversorgungs- und Aufenthaltsmöglichkeiten auf dem Campus.
Zertifizierungen
Energieausweis
Für diese Liegenschaft liegt ein Verbrauchsausweis vom 2021-06-17 vom Eigentümer/Vermieter vor. Die wesentlichen Energieträger der Liegenschaft sind Strom,Nahwärme,Fernwärme. Der Endenergieverbrauch Strom beträgt 36.00 kWh/(m²*a). Der Endenergieverbrauch Wärme beträgt 91.00 kWh/(m²*a).Verfügbare Fläche
Lage und Verkehrsanbindung
Das Objekt liegt südöstlich in der Innenstadt, direkt angrenzend an den Stadtteil Haidhausen. Über den Mittleren Ring sind alle umliegenden Autobahnen sowie der Flughafen München und die Neue Messe München schnell und bequem zu erreichen. In der näheren Umgebung gibt es außerdem zahlreiche Einkaufsmöglichkeiten, Restaurants und Cafés.
- Flughafen, München, Fahrzeit: 34 min
- Bundesautobahn, A 8, Fahrzeit: 3 min
- Bundesautobahn, A 94, Fahrzeit: 5 min
- Bus, St.-Martin-Straße Ost, Linie 54, Gehzeit: 1 min
- S-Bahn, St.-Martin-Straße, Linien S2/3/4/7, Gehzeit: 4 min
- Hauptbahnhof, München, Fahrzeit: 12 min
Ihr Kontakt

Nicolai Reichert
Ihr Kontakt
Marktinformationen
Mietmarkt
Ramersdorf, München
Gew. Ø-Miete
28,59 € / m²
siehe 0 passende MietobjekteErfahren Sie mehr* Durchschnittspreis auf Grundlage historischer Transaktionen.








