Büros
ID M1869Provisionsfrei
Büroimmobilie - München, Ludwigsvorstadt - M1869
Ludwigsvorstadt, 80335, München, Bayern
25 € / m²
- Fläche450 - 2.200 m²
- VerfügbarkeitAuf Anfrage
- Objekt
- Ausstattung
- Lage und Verkehrsanbindung
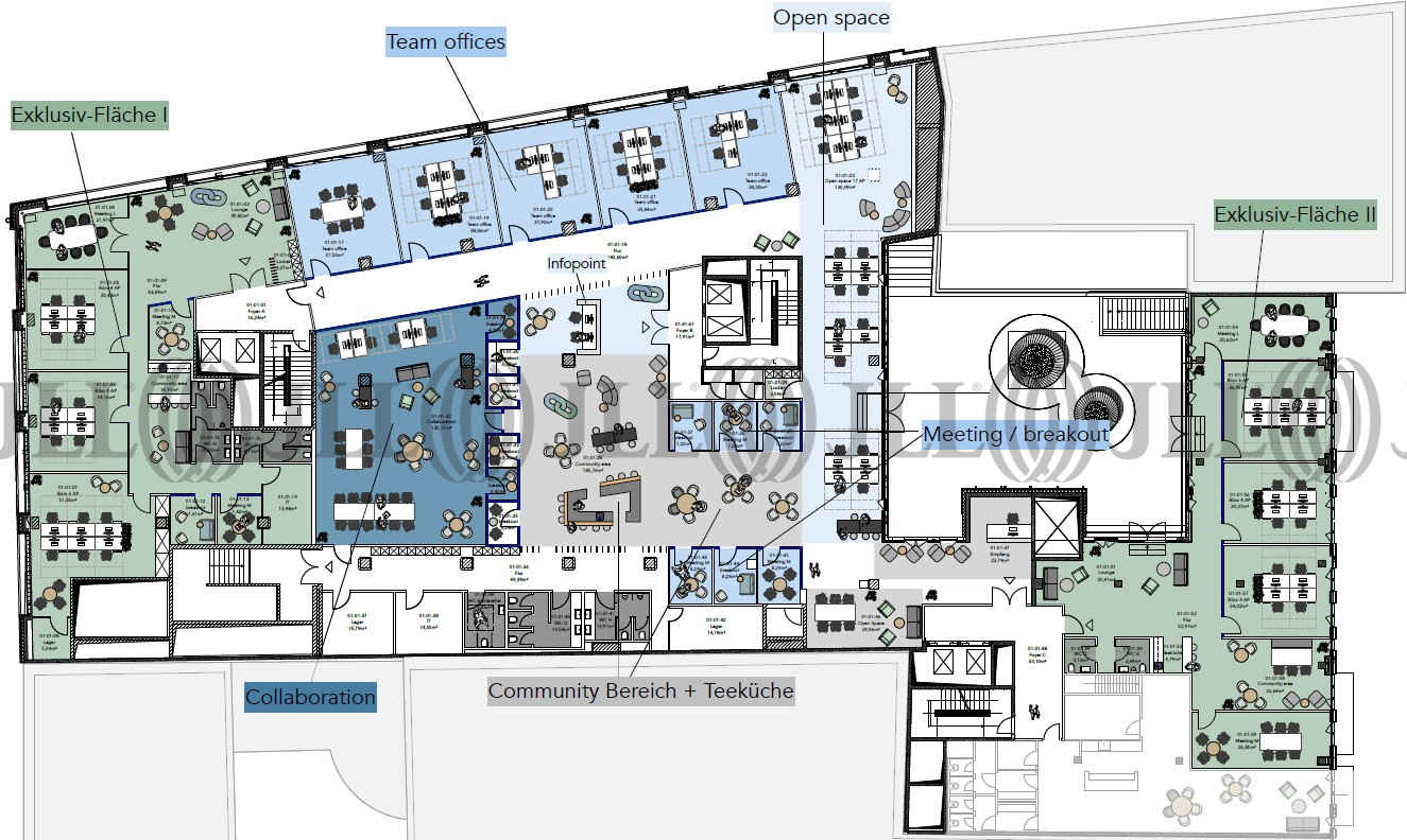
- Grundriss
- Exposé herunterladen
- Ihr Kontakt
- Anfrage senden
Objekt
Urbane Architektur und moderne Ästhetik – mit einem repräsentativen, klar beschilderten Eingangsbereich, der das Tor zu einem überzeugend hochwertigen und ansprechenden Ambiente für Office, Hotel und Praxis bildet. Variable Grundrisse für agiles Arbeiten und Flexibilität im Denken: Die modern und hochwertig ausgestatteten Büroflächen im TWENTY ONE CENTRAL erlauben eine individuelle Raumkonfiguration und vielfältige Bürolösungen.
Verfügbare Fläche
Lage und Verkehrsanbindung
Die Bayerstraße verläuft von der Schwanthaler Höhe bis ins Herz von München zum Karlsplatz (Stachus). Über den nahe gelegenen Mittleren Ring ist eine gute Anbindung an den regionalen und überregionalen Straßenverkehr gegeben. Durch die U- und S-Bahn-Station „Hauptbahnhof“ (Linie U4/U5, S-Bahn Stammstrecke) ist das Objekt optimal an den öffentlichen Personennahverkehr angeschlossen. Restaurants, sowie Geschäfte für den täglichen Bedarf befinden sich in unmittelbarer Umgebung und sind fußläufig erreichbar. Dienstleister des täglichen Bedarfs befinden sich in der Nähe.
- Hauptbahnhof, München, Gehzeit: 1 min
- U-Bahn, Hauptbahnhof, Linien U4/5, Gehzeit: 1 min
- Bundesautobahn, A 9, Fahrzeit: 12 min
- Bundesautobahn, A 94, Fahrzeit: 11 min
- Bundesautobahn, A 8, Fahrzeit: 12 min
- Flughafen, München, Fahrzeit: 25 min
Ihr Kontakt

Nicolai Reichert
Ihr Kontakt
Marktinformationen
Mietmarkt
Ludwigsvorstadt, München
Gew. Ø-Miete
25 € / m²
siehe 0 passende MietobjekteErfahren Sie mehr* Durchschnittspreis auf Grundlage historischer Transaktionen.



