Büros
ID M1742Premium JLL
Büroimmobilie - München, Lehel - M1742
Lehel, 80331, München, Bayern
Provisionspflichtig: bei Anmietung 3 Netto-Monatsmieten zzgl. gesetzlicher Umsatzsteuer.** der Wert kann je nach Vertragslaufzeit variieren.
25 € / m²
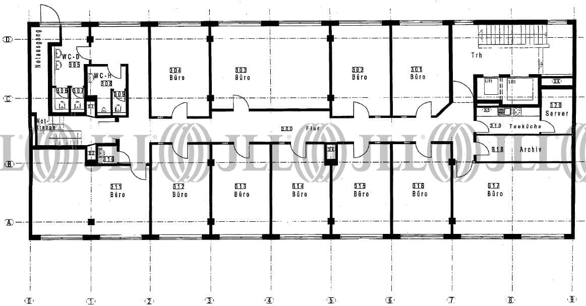
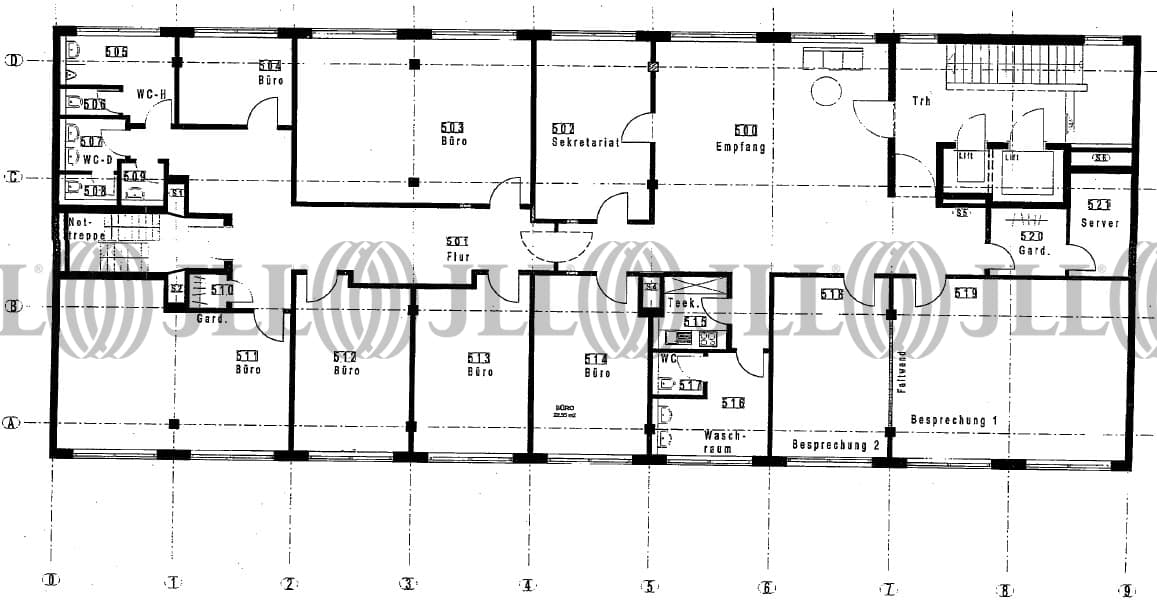
- Fläche440 - 1.346 m²
- VerfügbarkeitSofort
- Objekt
- Ausstattung
- Lage und Verkehrsanbindung
- Grundrisse
- Exposé herunterladen
- Ihr Kontakt
- Anfrage senden
Objekt
Dieses gemeinhin bekannte Bürogebäude in zentraler Lage am Isartor ist langfristig an einen Einzelnutzer vermietet. Nun besteht jedoch die seltene Gelegenheit, eines der Stockwerke im Rahmen eines Untermietvertrages zu beziehen. Zur Auswahl werden der 2., 3. und 5. Stock angeboten. Die Flächen bestechen durch eine hervorragende Ausstattung, einen effizienten Grundriss und eine ausgezeichnete Anbindung an den ÖPNV – die S-Bahn-Station „Isartor“ befindet sich direkt unter dem Gebäude. Alle Büroräume verfügen über ausreichend Raumtiefe, wodurch sich viele Flächenkonzepte umsetzen lassen. Zudem ist in allen Räumen eine Kühlung vorhanden und Stäbchenparkett verlegt.
Verfügbare Fläche
Lage und Verkehrsanbindung
Das Objekt befindet sich beim Isartor in der Münchener Altstadt. Die S-Bahn ist nur in einer Gehminute vom Objekt entfernt (Isartor). Von der Infrastruktur her ist es sehr günstig gelegen (Einkaufsmöglichkeiten oder Gastronomie sind nur paar Minuten entfernt). Dienstleister des täglichen Bedarfs befinden sich in der Nähe.
- Flughafen, München, Fahrzeit: 45 min
- Bundesautobahn, A 94, Fahrzeit: 10 min
- Bundesautobahn, A 8, Fahrzeit: 12 min
- Bus, Isartor/Zweibrückenstraße, Linie 132, Gehzeit: 2 min
- S-Bahn, Isartor, Gehzeit: 1 min
- Hauptbahnhof, Hauptbahnhof, Fahrzeit: 15 min
Ihr Kontakt

Nicolai Reichert
Ihr Kontakt





