Büros
ID M1732Provisionsfrei
Büroimmobilie - München, Ramersdorf - M1732
Ramersdorf, 81669, München, Bayern
25 € / m²
- Fläche537 - 1.385 m²
- VerfügbarkeitSofort
- Objekt
- Ausstattung
- Lage und Verkehrsanbindung
- Grundrisse
- Exposé herunterladen
- Ihr Kontakt
- Anfrage senden
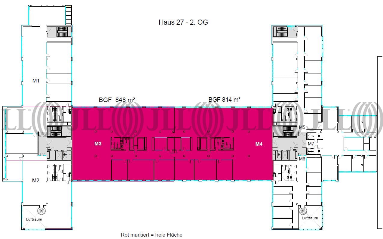
Objekt
HAUS 27 umfasst insgesamt acht Geschosse plus Staffelgeschoss. Für die Verschattung sorgen integrierte elektrische Außenjalousien. Die Grundtemperierung im ganzen Gebäude erfolgt über Betonkernaktivierung. Zusätzlich leisten Deckensegel ein angenehmes Heizen und Kühlen und tragen zur Optimierung der Raumakustik bei. Die Flächen können flexibel nach den individuellen Anforderungen der Mieter ausgebaut werden. Der Innenausbau erfolgt in Trockenbauweise oder mittels Systemglaswänden.
Zertifizierungen
Energieausweis
DGNB: Gold LEED: GoldFür diese Liegenschaft liegt ein Bedarfsausweis vom 17.06.2021 vom Eigentümer/Vermieter vor. Die wesentlichen Energieträger der Liegenschaft sind Fernwärme, Heizwerk, fossil, KWK, Nahwärme, Strom. Der Endenergiebedarf Strom beträgt 36.00 kWh/(m²*a). Der Endenergiebedarf Wärme beträgt 91.00 kWh/(m²*a).
Verfügbare Fläche
Lage und Verkehrsanbindung
Das Objekt liegt südöstlich in der Innenstadt, direkt angrenzend an den Stadtteil Haidhausen. Über den Mittleren Ring sind alle umliegenden Autobahnen sowie der Flughafen München und die Neue Messe München schnell und bequem zu erreichen.
- Flughafen, München, Fahrzeit: 35 min
- Bundesautobahn, A 8, Fahrzeit: 5 min
- Bus, Anzinger Straße, Linien 55/145/155, Gehzeit: 5 min
- S-Bahn, St.-Martin-Straße, Gehzeit: 6 min
- Hauptbahnhof, München, Fahrzeit: 15 min
Ihr Kontakt

Nicolai Reichert
Ihr Kontakt
Marktinformationen
Mietmarkt
Ramersdorf, München
Gew. Ø-Miete
25 € / m²
siehe 0 passende MietobjekteErfahren Sie mehr* Durchschnittspreis auf Grundlage historischer Transaktionen.













