Büros
ID M1729Provisionsfrei
Aktualisiert
Büroimmobilie - Regensburg - M1729
93053, Regensburg, Bayern
14,50 € / m²
- Fläche147 - 1.078 m²
- VerfügbarkeitAuf Anfrage
- Objekt
- Lage und Verkehrsanbindung
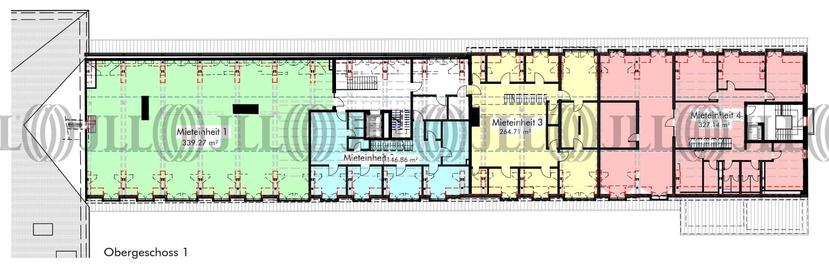
- Grundrisse
- Exposé herunterladen
- Ihr Kontakt
- Anfrage senden
Objekt
Das Bestandsgebäude mit insgesamt ca. 3.900 qm wird grundsaniert. Im UG soll eine System-Gastronomie angesiedeltwerden. Im EG und 1. OG sind Büroeinheiten geplant. Die Raumstruktur der historischen Säle muss aus Denkmalschutzgründen erhalten bleiben, insofern stehen im EG auch überwiegend Open Space-Flächen zur Verfügung, im OG ist eine kleinteilige Bürostruktur möglich. Im Büroneubau sind für das UG und EG Einzelhandelsflächen (Supermarkt, Drogerie), ab dem EG bis 3. OG Büroflächen mit insgesamt ca. 7.200 qm geplant. Diese werden als Loftbüros mit hohen Decken, offener Raumstruktur, beschichteten Hohlraumböden (Epoxitharz, Pandomo etc.), offener Installation unter der Rohdecke, Sichtbeton etc. ausgebaut.
In der zu errichtenden TG befinden sich 166 Stellplätze für Büros, 46 oberirdische Stellplätze sind für den Einzelhandel vorgesehen. Mit den Außenanlagen wird ein Platz mit hoher Aufenthaltsqualität geschaffen.
In der zu errichtenden TG befinden sich 166 Stellplätze für Büros, 46 oberirdische Stellplätze sind für den Einzelhandel vorgesehen. Mit den Außenanlagen wird ein Platz mit hoher Aufenthaltsqualität geschaffen.
Verfügbare Fläche
Lage und Verkehrsanbindung
Das NIK (ehem. Nibelungenkaserne) wird das zukünftige Zentrum des neu entwickelten, in Regensburg befindlichen TechCampus. Dieser befindet sich in unmittelbarer Nachbarschaft der Universität und der Technischen Hochschule OHT. Zahlreiche technologieorientierte Firmen und Forschungseinrichtungen haben sich auf dem Areal bereits angesiedelt bzw. werden sich weiter ansiedeln. Hier ist in den letzten Jahren ein neues Stadtquartier entstanden, dessen Entwicklung weiter fortschreitet. Das NIK ist vom Hbf über die Buslinien 6 (Tech Campus) und 11 (OHT) in 10 Min. erreichbar. Direkt am NIK entsteht eine Bushaltestelle. Über die A3 (FFM-NÜ-RB-Passau) und die A93 (MÜ-RB-Hof) ist der das NIK hervorragend angebunden (Ausfahrt Uni/Klinikum). Dienstleister des täglichen Bedarfs befinden sich in der Nähe.
- Flughafen, Nürnberg, Fahrzeit: 70 min
- Flughafen, München, Fahrzeit: 70 min
- Bundesautobahn, A 3, Fahrzeit: 5 min
- Bundesstraße, B 15, Fahrzeit: 4 min
- Bus, Bushaltestelle FOS/BOS Regensburg Buslinien 3,4, Gehzeit: 4 min
- Hauptbahnhof, Hauptbahnhof, Gehzeit: 25 min
Ihr Kontakt

Julia Schreiter
Ihr Kontakt




