
Büros
ID M1649Provisionsfrei
Büroimmobilie - München, Trudering - M1649
Trudering, 81829, München, Bayern
9,50 € / m²
- Fläche137 - 1.560 m²
- VerfügbarkeitSofort
- Objekt
- Ausstattung
- Lage und Verkehrsanbindung
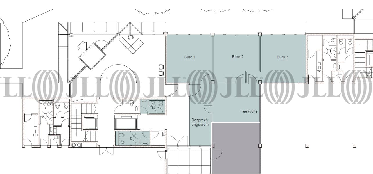
- Grundrisse
- Exposé herunterladen
- Ihr Kontakt
- Anfrage senden
Objekt
Das Objekt verfügt über 2 großzügige, repräsentative Eingangsbereiche.
Zertifizierungen
Energieausweis
Für diese Liegenschaft liegt ein Bedarfsausweis vom 2014-04-30 vom Eigentümer/Vermieter vor. Die wesentlichen Energieträger der Liegenschaft sind Erdgas schwer,Strom. Endenergiebedarf: 171.30000 kWh/(m²*a).Verfügbare Fläche
Lage und Verkehrsanbindung
Das Objekt liegt im Osten von München im Stadtteil Trudering im Gewerbegebiet Am Moosfeld. Die Münchener Innenstadt ist in ca. 30 Minuten mit ÖPNV und PKW zu erreichen.
- Flughafen, München, Fahrzeit: 30 min
- Bundesautobahn, A 94, Fahrzeit: 2 min
- Bundesautobahn, A 99, Fahrzeit: 6 min
- Bus, Bushaltestelle Stahlgruberring Buslinien 194, Gehzeit: 4 min
- U-Bahn, Moosfeld, U2/U8, Gehzeit: 6 min
- Hauptbahnhof, München, Fahrzeit: 25 min
Ihr Kontakt

Nicolas Harmuth
Ihr Kontakt
Marktinformationen
Mietmarkt
Trudering, München
Gew. Ø-Miete
9,50 € / m²
siehe 0 passende MietobjekteErfahren Sie mehr* Durchschnittspreis auf Grundlage historischer Transaktionen.