Büros
ID M1648Provisionsfrei
Büroimmobilie - München, Schwabing-Nord - Alte Heide - M1648
Schwabing-Nord - Alte Heide, 80807, München, Bayern
19,50 € / m²
- Fläche131 m²
- VerfügbarkeitSofort
- Objekt
- Ausstattung
- Lage und Verkehrsanbindung
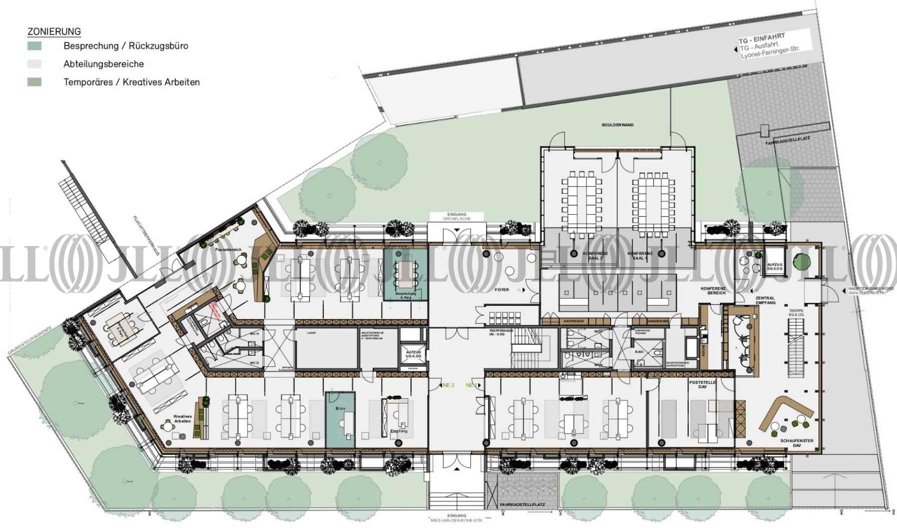
- Grundriss
- Exposé herunterladen
- Ihr Kontakt
- Anfrage senden
Objekt
Das Haus.Berge ist umgeben von viel Grün – und das mitten in der Stadt. Ihr neues Büro liegt am Südende des zentralen Parks in der Parkstadt Schwabing. Im Zuge der Revitalisierung wurde das Objekt um zwei Stockwerke erweitert. Dabei wurde der Fokus auf Nachhaltigkeit gelegt, denn es wurde viel Holz und eine Nachtauskühlung verbaut. So setzt sich das Haus.Berge deutlich von der umgebenden Bebauung ab. Rückwärtig grenzt es an den ruhigen Parkhof des Nachbarobjektes.
Zertifizierungen
Energieausweis
Für diese Liegenschaft liegt ein Bedarfsausweis vom 18.12.2020 vom Eigentümer/Vermieter vor. Die wesentlichen Energieträger der Liegenschaft sind Fernwärme, KWK, Strom. Der Endenergiebedarf Strom beträgt 17 kWh/(m²*a). Der Endenergiebedarf Wärme beträgt 126 kWh/(m²*a).Verfügbare Fläche
Lage und Verkehrsanbindung
Das Objekt liegt in der Parkstadt Schwabing direkt an der Autobahn A9 und dem Mittleren Ring. Der Flughafen München sowie die Neue Messe München sind in ca. 20 bis 25 Minuten mit dem Pkw zu erreichen. Eine Tankstelle befindet sich in der Nähe. Dienstleister des täglichen Bedarfs befinden sich in der Nähe.
- Flughafen, München, Fahrzeit: 23 min
- Bundesautobahn, A 9, Fahrzeit: 1 min
- Bundesautobahn, A 94, Fahrzeit: 13 min
- Bus, Freiligrathstraße, Buslinien 140, 141, Gehzeit: 7 min
- Straßenbahn/Tram, Anni-Albers-Straße, Gehzeit: 5 min
- Hauptbahnhof, München, Fahrzeit: 18 min
Ihr Kontakt

Tobias Schneider
Ihr Kontakt












