Büros
ID M1585Provisionsfrei
Aktualisiert
Büroimmobilie - München, Schwabing-Nord - Alte Heide - M1585
Schwabing-Nord - Alte Heide, 80807, München, Bayern
Kontaktieren Sie uns für den Preis
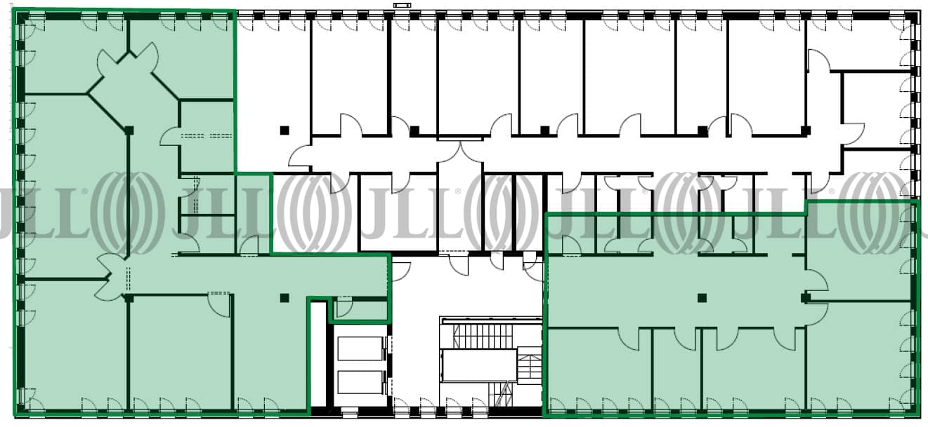
- Fläche225 - 4.996 m²
- VerfügbarkeitSofort
- Ausstattung
- Lage und Verkehrsanbindung
- Grundrisse
- Exposé herunterladen
- Ihr Kontakt
- Anfrage senden
Verfügbare Fläche
Lage und Verkehrsanbindung
Attraktive Lage im Herzen der Parkstadt Schwabing. Gute Anbindung an den ÖPNV (Tram/Bus und U-Bahn) sowie eine ausgezeichnete PKW Anbindung (direkter Anschluss an Autobahn A 9 sowie Frankfurter Ring). Mit dem PKW ist der Flughafen in nur ca. 20 Minuten erreichbar. Zahlreiche Einkaufsmöglichkeiten sowie Restaurants direkt vor Ort im Erdgeschoss des Objektes (Mallbereich).
- Hauptbahnhof, München, Fahrzeit: 20 min
- Bus, Gertrud-Grunow-Straße, Linien 50, 150, N40, Gehzeit: 4 min
- Bundesautobahn, A 9, Fahrzeit: 5 min
- Bundesstraße, B 2R (Mittlerer Ring München), Fahrzeit: 5 min
- Flughafen, München, Fahrzeit: 25 min
Ihr Kontakt

Nicolas Salbeck
Ihr Kontakt



