Büros
ID M1287Provisionsfrei
Büroimmobilie - München, Haidhausen - M1287
Haidhausen, 81675, München, Bayern
21,50 € / m²
- Fläche250 m²
- VerfügbarkeitSofort
- Objekt
- Ausstattung
- Lage und Verkehrsanbindung
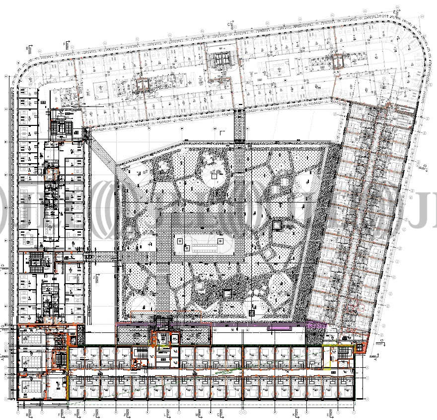
- Grundriss
- Exposé herunterladen
- Ihr Kontakt
- Anfrage senden
Objekt
Funktionale und flexibel gestaltbare Einheit mit ca. 250 m², ideal für kleine bis mittlere Unternehmen – Tiefe Gebäudegrundrisse perfekt geeignet für neue Arbeitswelten wie Open-Space-, Kombi- oder Zellenbüros. Zugang zu begrüntem Innenhof nutzbar als Kommunikations- oder Ruhezone.
Zertifizierungen
Energieausweis
LEED: GoldFür diese Liegenschaft liegt ein Bedarfsausweis vom 2016-04-22 vom Eigentümer/Vermieter vor. Die wesentlichen Energieträger der Liegenschaft sind Fernwärme,Strom,KWK. Der Endenergiebedarf Strom beträgt 29.70 kWh/(m²*a). Der Endenergiebedarf Wärme beträgt 72.00 kWh/(m²*a).
Verfügbare Fläche
Lage und Verkehrsanbindung
Das Anwesen liegt im Münchner-Osten und ist sowohl über den Leuchtenbergring (Mittlerer Ring) als auch über die Einstein-/Bothestraße erreichbar. Eine Tankstelle befindet sich in der Nähe. Dienstleister des täglichen Bedarfs befinden sich in der Nähe.
- Flughafen, München, Fahrzeit: 35 min
- Bundesautobahn, A 94, Fahrzeit: 1 min
- Bundesautobahn, A 8, Fahrzeit: 10 min
- Bundesautobahn, A 9, Fahrzeit: 8 min
- Bus, Einsteinstraße, Linien 187,190,197,N74, Gehzeit: 2 min
Ihr Kontakt

Nicolai Reichert
Ihr Kontakt





