Büros
ID M1125Provisionsfrei
Aktualisiert
Büroimmobilie - München, Schwabing-Nord - Alte Heide - M1125
Schwabing-Nord - Alte Heide, 80805, München, Bayern
9,99 € / m²
- Fläche276 - 2.817 m²
- VerfügbarkeitSofort
- Objekt
- Ausstattung
- Lage und Verkehrsanbindung
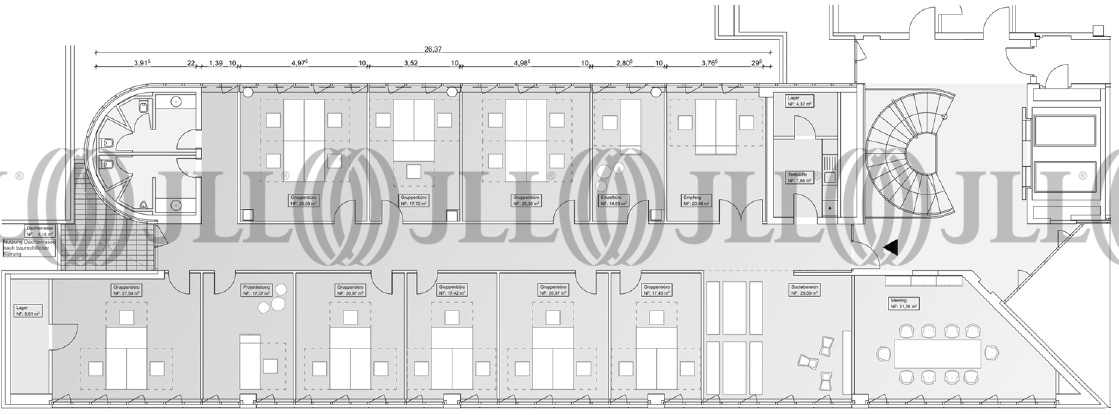
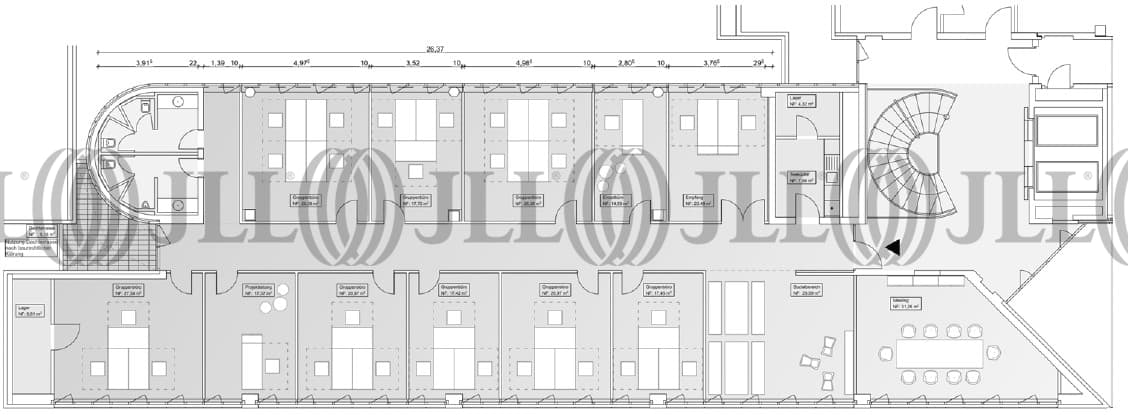
- Grundrisse
- Exposé herunterladen
- Ihr Kontakt
- Anfrage senden
Objekt
Das Bürogebäude ist mit einer elegante Naturstein-/Glasfassade ausgestattet sowie einem repräsentativen und großzügigen Treppenhaus mit schöner, gewschungener Treppe.
Zertifizierungen
Energieausweis
Für diese Liegenschaft liegt ein Verbrauchsausweis vom 30.10.2020 vom Eigentümer/Vermieter vor. Die wesentlichen Energieträger der Liegenschaft sind Erdgas schwer, Strom. Der Endenergieverbrauch Strom beträgt 33.50 kWh/(m²*a). Der Endenergieverbrauch Wärme beträgt 113.20 kWh/(m²*a).Verfügbare Fläche
Lage und Verkehrsanbindung
Das Objekt liegt im Münchner Stadtteil Schwabing Nord und ist durch die U-Bahn-Station Nordfriedhof (Linie U6) an die ÖPNV Anbindung in die Münchner City sichergestellt. Auch der Individualverkehr ist durch die unmittelbare Lage am Mittleren Ring sowie der A9 bestens angebunden. Selbst der Münchner Flughafen ist in nur 25 Minuten mit dem Auto oder dem Airport-Bus erreichbar. Die Haltestelle befindet sich direkt vor dem Objekt. Viele Einkaufsmöglichkeiten, Restaurants und Sportanlagen befinden sich im direkten Umfeld.
- Flughafen, München, Fahrzeit: 25 min
- Bundesautobahn, A 9, Fahrzeit: 3 min
- Bundesautobahn, A 99, Fahrzeit: 10 min
- Bus, Bushaltestelle Alte Heide Buslinien 50, Gehzeit: 10 min
- U-Bahn, Nordfriedhof, Gehzeit: 2 min
- Hauptbahnhof, München, Fahrzeit: 12 min
Ihr Kontakt

Tobias Schneider
Ihr Kontakt




