Büros
ID M1024Provisionsfrei
Büroimmobilie - Nürnberg, Altstadt und Engere Innenstadt - M1024
Altstadt und Engere Innenstadt, 90489, Nürnberg, Bayern
10,50 € / m²
- Fläche245 - 490 m²
- VerfügbarkeitAuf Anfrage
- Objekt
- Ausstattung
- Lage und Verkehrsanbindung
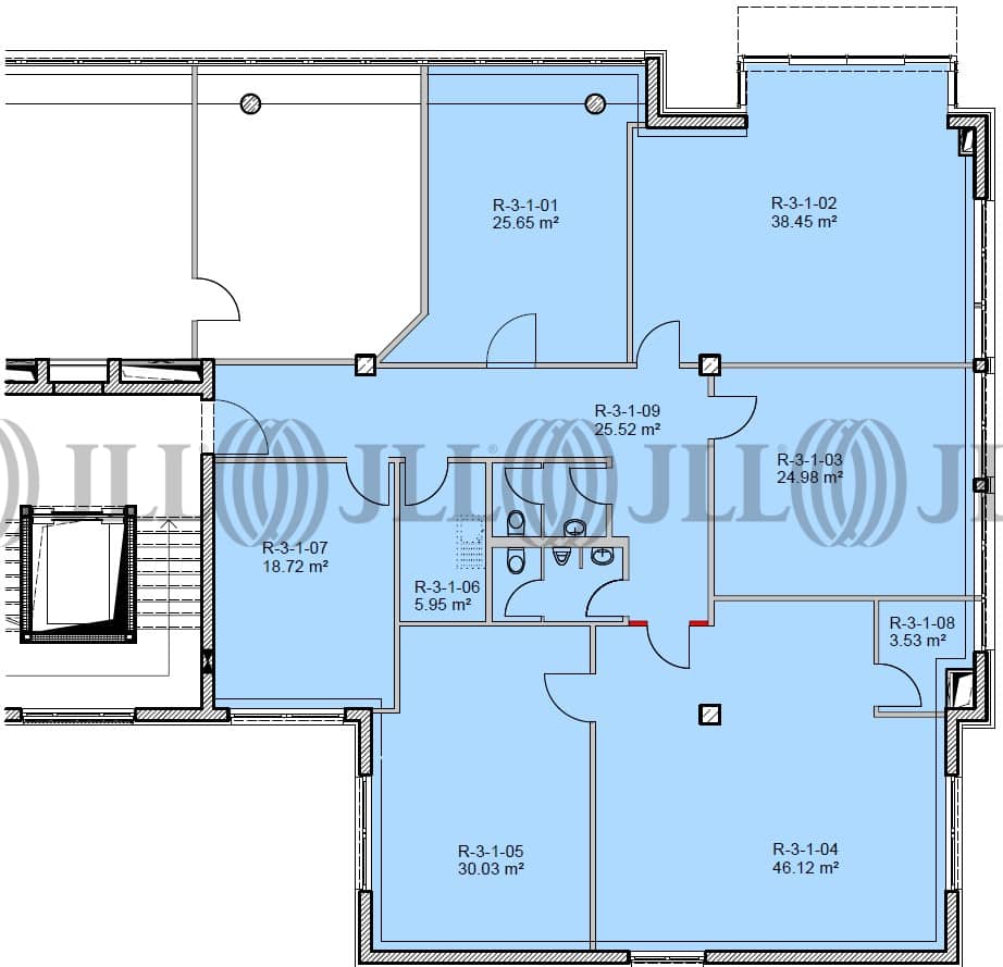
- Grundrisse
- Exposé herunterladen
- Ihr Kontakt
- Anfrage senden
Objekt
Das repräsentative Büro- und Geschäftshaus befindet sich direkt am verkehrsgünstig gelegenen Stresemannplatz. Das Gebäude hat mit seiner innovativen, architektonischen Architektur den Stresemannplatz entscheidend geprägt. Des Weiteren verfügt es über eine zugangsgesicherte, hauseigene Tiefgarage, die über den Personenaufzug erreichbar ist.
Der zum Stresemannplatz gerichtete Glasturm garantiert als prägnantes Element hohe Aufmerksamkeit und der ebenerdige Eingangsbereich lädt Kunden freundlich ins Objekt ein. Nahversorger(Marktkauf, Norma, Rossmann, etc.) befinden sich in unmittelbarer Nähe.
Im Objekt befindet sich bereits ein Zahnarzt und ein Physiotherapeut.
Der zum Stresemannplatz gerichtete Glasturm garantiert als prägnantes Element hohe Aufmerksamkeit und der ebenerdige Eingangsbereich lädt Kunden freundlich ins Objekt ein. Nahversorger(Marktkauf, Norma, Rossmann, etc.) befinden sich in unmittelbarer Nähe.
Im Objekt befindet sich bereits ein Zahnarzt und ein Physiotherapeut.
Zertifizierungen
Energieausweis
Für diese Liegenschaft liegt ein Verbrauchsausweis vom 2009-07-20 vom Eigentümer/Vermieter vor. Die wesentlichen Energieträger der Liegenschaft sind Erdgas schwer,Fernwärme. Der Endenergieverbrauch Strom beträgt 12.00 kWh/(m²*a). Der Endenergieverbrauch Wärme beträgt 96.00 kWh/(m²*a).Verfügbare Fläche
Lage und Verkehrsanbindung
Das Geschäftshaus verfügt über eine perfekte Verkehrsinfrastruktur. Direkt vor dem Gebäude befindet sich eine Straßenbahnhaltestelle. Der U-Bahnhof “Rathenauplatz” ist in nur wenigen Minuten zu Fuß erreichbar.
- Hauptbahnhof, Nürnberg, Fahrzeit: 2 min
- Straßenbahn/Tram, Stresemannplatz, Gehzeit: 2 min
- Bus, Rathenauplatz, Buslinie 36, Gehzeit: 7 min
- Bundesautobahn, A 3, Fahrzeit: 5 min
- Flughafen, Nürnberg, Fahrzeit: 12 min
Ihr Kontakt

Meike Schünemann
Ihr Kontakt












